
作为生在河北、长在河北的本土企业,东胜集团今年已经迈入蓬勃发展的第24个年头。24年来,东胜一直秉承着“为政府解忧,为百姓谋福,为城市发展尽力”的使命,以综合实力为支撑,以专业优势为保障,全面高效地推进着城市更新业务。
在“京津冀协同发展”政策的指引下,东胜集团布局京津冀地区,深耕石家庄市场,专注做好安居工程建设,打造了东胜·天御、东胜·时间山、东胜华彩城、东胜·未来云、东胜·紫御府、东胜广场、东胜·土门关驿道小镇、东胜·紫御康城(张家口)、东胜·紫御宏著(廊坊)、东胜·龙岗天域(邢台)等一系列代表项目,创新研发能够满足百姓居住、工作、生活、成长的“一生之城” ,全方位参与城市共建,为百姓提供美好生活。
东胜集团城市更新代表项目(东胜华彩城、东胜天御、东胜未来云、东胜紫御府)
作为一家有着地产、商业、物业、康养、旅游、景区、教育7大板块的综合性开发企业,东胜集团自有的产业资源已经形成了强大的产业生态圈。在城市更新的过程中,东胜集团充分打通并嫁接各产业板块优势,在住有所居、学有所教、老有所养、病有所医上持续用力,全面改善了居民的生产生活环境,优化城市发展格局。
去年以来,石家庄全力实施城市更新行动,强力推进“6+2+2”城市更新重点项目建设,让大家真切感受到了城市面貌的改变。胡雪青表示,响应市委市政府的号召,东胜集团的城市更新项目也在如火如荼的开展。例如承载着省市政府的重托和社会万众的期待的石家庄市重点民生工程——棉五社区改造项目东胜·天御、东胜·时间山正在火热朝天地建设当中。
承载着棉五社区的荣耀,东胜·天御在产品设计、场所精神和空间营造丝毫不敢怠慢,邀请知名大师加持,如室内设计矩阵团队、园林设计公司安道国际、建筑设计公司滙张思,以极简主义营造铝板和玻璃幕墙,并通过弧线表现手法,打造弧线美学作品。
东胜·天御实景图
建筑面积约1500㎡美学会所已经提前交付,会所兼具会客、 健身、SPA 等功能,让居者在此开启空间美学、生活方式、圈层社交的全方位延伸;168-300㎡的环幕大平层,层高高出普通住宅约40厘米,7.2米社交宽厅、270度观景飘窗,23米阔景阳台,充分洞察满足业主对私密空间尺度感和功能性的诉求。
一年春作首,奋进正当时。东胜集团与城市共奋进24载,也必将以更为积极的态度投身推动“跃升之年、展示之年”的火热实践中,脚踏实地做好每一个项目、打磨每一件产品、提升每一项服务,用实力和成绩展现本土企业的使命担当。

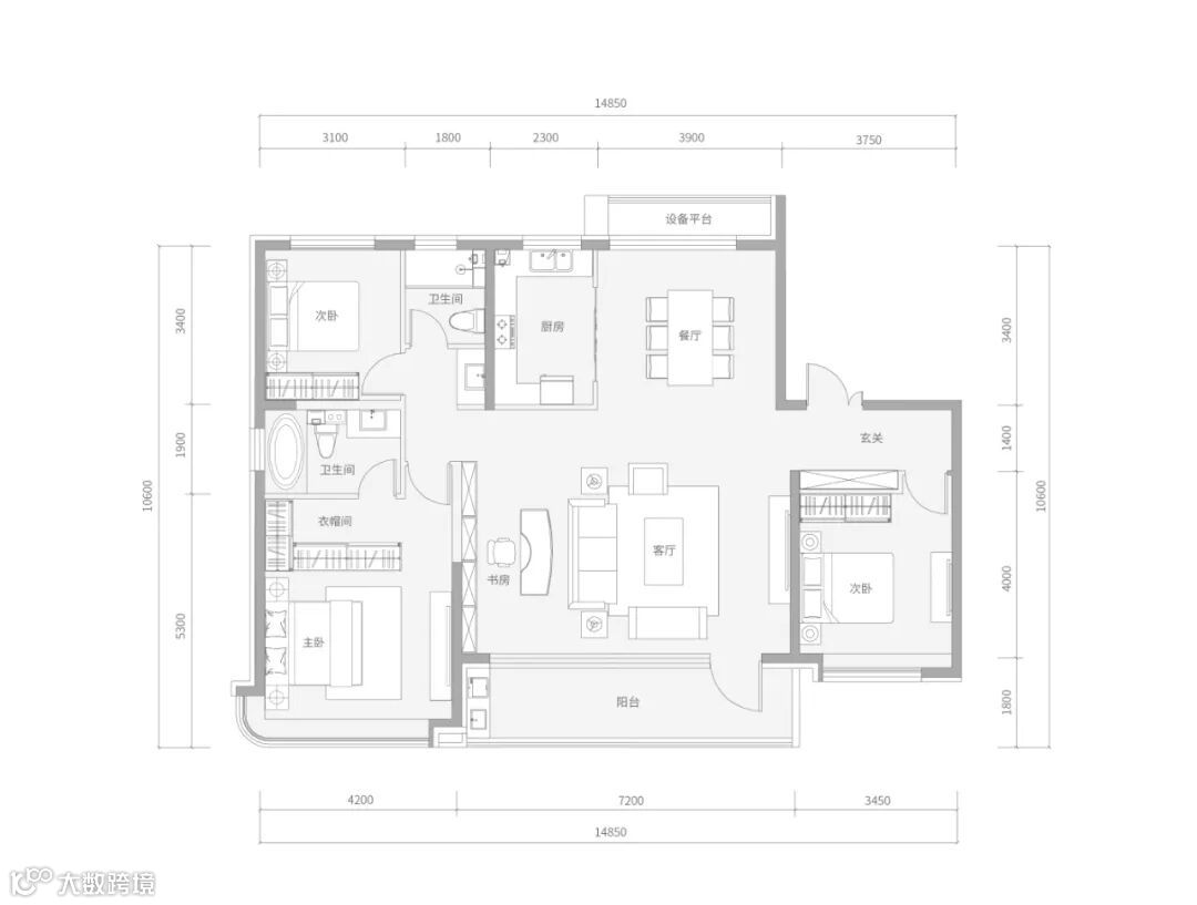
东胜·天御建筑面积约200㎡户型图
东胜·天御建筑面积约300㎡户型图


