标龙·蓝色智谷 镇江市扬中产业园 单层 双层 及多层大平层厂房出售 800平起售
项目地址:江苏省镇江市扬中市红星路和港隆路交汇处

一、项目介绍
扬中市标龙产城实业发展有限公司,标龙·蓝色智谷产业园位于扬中市经济开发区红星路和港隆路交汇处,项目规划260亩,其中一期规划165亩,总投资12亿,总建筑面积约20万方。
产业园根据“产业集群、产城融合、资源共享、产融互动”的运营模式,以汽车零部件、医疗器械、高端装备制造等高新技术产业为主导产业,搭建上下游集群的生态产业链,规划建设集产业集聚区、商务服务区、仓储物流区、城市生活区、产业研发中心等多功能区为一体的智能产业园区,以助力中小企业发展、培育孵化千亿级产业平台为己任,将园区打造成为长三角区域标杆平台。
一期项目集总部商务办公、中试研发、标准智能化厂房及综合配套为一体,可以满足不同企业生产研发需求。园区建成后预计引入80家优质企业,可提供岗位约4000个,为扬中及周边城市制造业创造高效发展平台,营造良好营商环境,助推扬中经济圈发展。

(项目鸟瞰效果图)
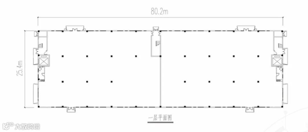
二、项目产品
项目一期占地166亩,建筑面积约12.6万平方米,容积率1.56,绿化率10.19%左右。机动停车位约432个,非机动车位约900个,规划建筑厂房30栋,1栋综合服务中心(单层钢结构厂房、2层框架厂房、多层框架厂房)。
钢结构厂房,层高10-12m,研发办公楼为两层,层高8m+4m;
二层框架厂房,首层8m,二层5-8m;
多层框架厂房,首层8m,二层及以上层高4.5m;
底层荷载1000公斤/㎡,二层及以上荷载500-800公斤/㎡;
柱距约8~9m;
园区主入口位于红星路,园区主入口最宽处16米,出入口非常大气,内部一般道路宽度为12m左右,转弯半径满足17m左右大型货车通行,常规中大型货车都能无障碍通行。。

产品核心优势:面积段齐全、道路宽广、超宽柱距、户型多元、独立产权
三、项目区位
扬中市处镇江市东部江心,黄金水道——长江中下游,水陆交通便利,238省道,231省道、阜溧高速公路、沪宁高速公路、江宜高速公路、沪蓉高速公路,连淮扬镇铁路环伺。
项目位于扬中市省级经济开发区,S238以西,扬中大道以南。

区域亮点
①区位交通:
扬中区位优势非常明显,作为连接大江南北的交通节点,扬中已形成“一岛五桥”的格局,真正成为连接大江南北的“中心链核”。市内道路四通八达,整个岛城已经建成了“半小时经济圈”。扬中距常州奔牛国际机场、扬州泰州机场30分钟车程,距南京禄口国际机场只需1.5小时,到上海浦东国际机场只有3小时的公路车程。扬中拥有镇江港兴隆港区,距国际货运港口镇江港、泰州港分别为6公里和2公里,可与40多个国家136个港口通航,具有便捷的铁路、公路、水路运输条件,在人才、资金、技术、信息等方面可充分接受上海、南京及苏州等大中城市的直接辐射。

②区域定位:
江苏省扬中市总面积332平方公里,其中陆地面积228平方公里。常住人口为31万人,占镇江市的9.83%,扬中产业特色鲜明,是远近闻名的“电气岛”、“光伏岛”,“长江制造业走廊”其中电气领域更是中国最大的工程电气原料市场,并被授予“中国工程电气名城”,位列2020中国县级全面小康指数第8位。2021年度全国综合实力百强县市。
【人力成本】:人均月工资4200元,用工成本低廉;
【扬中房价】:价格在5500-12000元/平米之间,居住成本低;
四、主导产业
高端装备制造、医疗器械、电子信息、汽车零部件等产业
五、项目配套
距离城市商业中心仅7公里,十公里内配套齐全,周边景观公园、商圈临近,生活休闲配套一站式,紧邻当地繁华街道,衣食住行,触手可及。
园区配套:
园区内更是配备完善生活配套、邻里中心、员工宿舍、员工食堂、企业服务中心、产城融合,提升员工幸福感和归属感。
【润龙服务】:标龙产城旗下子公司,江苏润龙运营有限公司

周边配套:
【社区】:扬中市经济开发区兴隆社区
【超市】:超隆超市
【医院】:扬中市人民医院、扬中市中医院
【银行】:扬中农村商业银行、中国建设银行、中国农业银行、中国邮政储蓄银行
【学校】:『幼儿园』:兴隆幼儿园;『小学』:兴隆中心小学;『中学』:兴隆中学;
六、产品户型

A1-1户型(两层双拼框架结构厂房)
面积段:2层框架结构,单层建筑面积约600-2800㎡
层高:1F层高8m,2F层高5m

A1-2户型(两层双拼框架结构厂房)
面积段:2层框架结构,单层建筑面积约560-1130㎡
层高:1F层高8m,2F层高8m

A2户型(三层双拼框架结构厂房)
面积段:3层框架结构,单层建筑面积约500-2600㎡;
层高:1F层高8m,2-3F层高4.5m

A3户型(四层双拼框架结构厂房)
面积段:4层框架结构,单层建筑面积约1000㎡,整栋建筑面积约8000㎡;
层高:1F层高8m,2-4F层高4.5m

B户型(三层独栋框架结构厂房)
面积段:3层框架结构,单层建筑面积约500-1800㎡
层高:1F层高8m,2-3F层高4.5m

C1户型(双拼钢结构厂房)
面积段:钢结构,单层建筑面积约1390㎡,整栋建筑面积约3400㎡
层高:钢结构层高12m,办公研发楼1F层高8m,2F层高4m

C2户型(四拼钢结构厂房)
面积段:钢结构,单层建筑面积约800㎡,整栋建筑面积约4000㎡
层高:钢结构层高10m,办公楼1F层高8m,2F层高4m

七、品牌优势
【集团布局】
标龙产城控股是按照“产业集群、产城融合、资源共享、产融互动”的运营模式,打造的制造业集聚平台和中小微企业服务运营商。目前,公司已在南通、丹阳、扬中、泰兴、连云港、山东等10座城市城市布局12个产业园项目,产值规模达到32亿,其中如皋、丹阳项目已经交付投产。





公司旗下拥有产城开发、润龙运营、标龙设计院、机电安装公司、标龙建设九分公司、标龙新能源等6大分公司,聚焦八大核心产业,以强大的建筑基因和全产业链优势,建筑、产业“双轮驱动”,实现“空间提供商+服务赋能者+时间合伙人”的产业园模式。

标龙产城矢志以实业兴邦,放眼全国,深耕长三角、拓展环渤海、辐射珠三角,计划在2025年打造60座产业园,开发总量达2000万方,服务企业超8000家。

【运营服务】
江苏润龙运营管理有限公司成立于2021年3月,注册资金5000万,是标龙产城旗下全力服务标龙产业园的专业运营管理公司。公司秉承“开拓产业园服务新价值,让创业发展更美好”的使命,以客户为中心,践行“助力产业发展”的服务宗旨,提供全方位的产业发展服务,致力成为值得信赖的产业服务运营商。
镇江扬中厂房招商中心 13391219793
企业选址咨询接洽考察对接
镇江扬中厂房招商中心 13391219793
扫一扫,加入【产业招商学习交流群】

阅读更多


