中南高科-永清创智云谷
守护中国创新,服务创新中国
服务中国制造业的超级平台



【区位】中南高科·永清创智云谷产业园位于廊坊市永清县高新技术开发区,距离北京60公里,天津60公里,雄安新区60公里,大兴国际机场20公里,处于临空经济圈范围内。
【交通】距离京台高速出口4公里,天津--大兴机场高铁站2公里,京雄城际快轨永清站10公里,国道105。
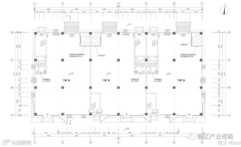
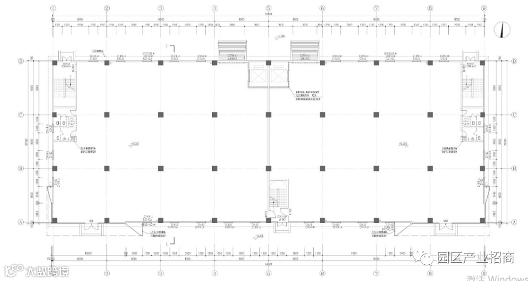
【产品】生产、办公、研发一体化工业厂房
【定位】新一代信息技术,智能制造,电子信息
【服务】政务服务,税务服务,人力资源服务,课程服务,金融服务等
【户型】三层半框架联排,1400~5600㎡
【单层】400-600-800-1000平米
【层高】首层挑高7.2米,二层4.2米,三层3.9米,四层3.6米,赠送露台
【承重】首层承重3吨/㎡,标准层承重450公斤/㎡(特殊需求可定制)
【年限】产权50年,有产权证,可注册环评
【付款】全款,分期,贷款





拿地、买厂房、租厂房
园区产业招商中心 400-0123-021
扫一扫,加入【产业地产学习交流群】



