江苏汇方智能产业园
位于省级开发区(泰兴滨江经济开发区),占地80亩,建筑约7.7万方。


一、产品信息
三层 可以独栋、双拼、四拼、户型。
层高:8/5.9/5.9/3.9m(四层为赠送面积)
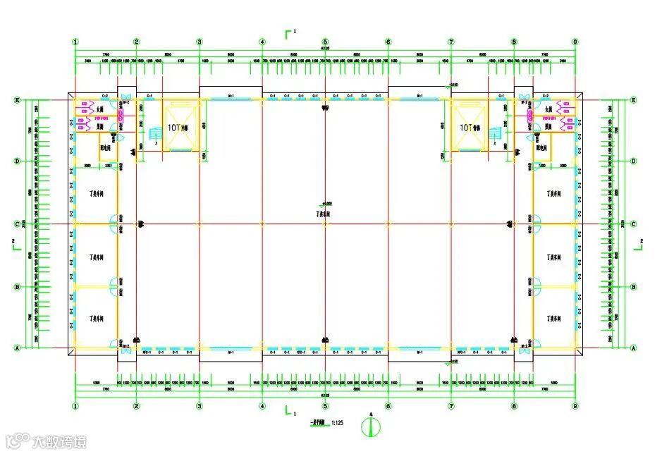
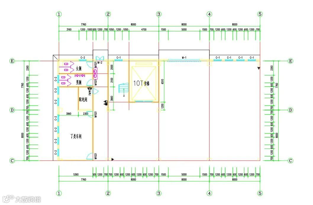
柱距:8✖15.7m(两跨:单跨15.7m)
承重:3/0.8/0.8/0.25T
预留电梯井:可安装10T的电梯
道路:所有道路宽11m
栋距:东西22m,南北15m
消防等级:丁类
建筑面积段:
独栋9216/双拼4715/四拼2358m2
独栋6144/双拼3203/四拼1602m2
占地面积 :
独栋3011/双拼1505/四拼752.5m2
独栋2002/双拼1001/四拼500.5m2
二:要求
税收160/m2
行业包括:机械加工、汽车零部件、半导体、医疗器械、新能源等。(有特殊环评要求,可一事一议并协助沟通)
三:配套及周边
自有物业,紧邻大型商超,小区环绕,距离常泰高速出口10公里左右,5km范围 福泰广场,经开区医院,经开区管委会,大型五金配件市场。
四:入园流程及付款方式
签订意向合同:意向金20万/套一一收集资料,申报政府一一签订正式合同一一首付30%起,可银行按揭分期付款。

五:户型三层(详建户型图如下)

建筑面积9216m2(独栋)

面积:4715m2(双拼)

面积:2358m2(四拼)

面积:6144m2(独栋)

面积:3203m2(双拼)

面积:1602m2(四拼)
泰州泰兴厂房出售 13391219793
企业选址咨询接洽考察对接
【产业招商学习交流群】扫一扫,自动获取入群二维码



