
金域澜岸二期202㎡
专案地址:广东·潮州
主案设计:周靖
设计团队:高端设计组
工程团队:工程二组
户型风格:中式风格
主要材料:木饰面、大理石、瓷砖、不锈钢、墙布
主要色调:白色、木色、红色
设计公司:名匠装饰·潮州分公司
设计师/DESIGNERS
中国室内装饰协会(CIDA)注册设计师
中国室内装饰协会会员
高端设计组设计总监
资质荣誉:
毕业于南昌大学室内设计系
2008-2010年在江门新会名匠任主笔设计师
2011-2013年在江门台山名匠任专家设计师
2013-2017年在江苏泰州星艺担任设计总监
2015年被评为江苏地区十大创意金牌设计
2016年被评为华东地区优秀设计总监
2017年获得第十一届大金室内设计大赛“空间设计奖”
2019年荣获WYDF2019年度大中华区百大杰出设计青年
现任潮州名匠高端设计组设计总监
经典案例:
碧桂园、嘉信华府、华润国际、金域澜岸、海博熙泰、海逸一号、嘉和名苑、金石自建别墅等。
助理设计师|苏漫萍
△ 原始结构图
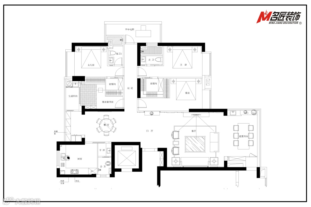
△ 平面布置图
“
居于一室,最好的样子,便是半俗半雅。感受生活烟火的俗与趣,品赏诗般居室的美与雅。
”
一入门,随着米灰色地面的视线延伸,盘龙壁饰背衬着似水墨荡漾开的石纹墙面,大气而古雅的气息扑面而来。
客厅,两幅低调而意境深远的水墨写意山水相对而立,色彩理性而克制,于云烟袅袅间扬起隔江千万里的大气染透了黑白的山水。在一阵浅暖色基调中舒缓空间氛围,中式韵味的流淌,令观者顿觉置身其中,深感放松而沉浸。
顶灯投射出的弧形光影,似重峦叠嶂的山峦;金色线框的勾勒、红棕色盆栽的点缀、醒目的金色摆件,相辅相成,与空间氛围相呼应,秋意浓郁。整室浑然一幅画作,别有一番风味。
就餐环境以清为欢,抹去了繁复的设计,一半是归素底色,一半是隐逸奢华。
餐厅采用借景的手法,通过四花型挂画,将幽静素雅的山峦景致引入室内,平和墙面的单调,彰显别有韵致的东方情调。淡雅简美的中性色调与色泽醇厚的木质桌椅交相辉映,一盏精致吊灯的照映,使空间呈现出大气、舒适、自然之感。
开敞的落地窗设计,模糊了室内外的边界,最大限度地开放了空间与光线的自由流动,将阳光与景色引入室内,将更多的空间交予人与人之间。由内到外,品味生活与空间之美。
云朵层层、翩飞鸟儿、山峦绵延,共同串联成一盏别有灵动气息的灯饰。葱郁的绿松、石材的肌理,赋予空间更加饱满的观感;清雅气质与东方元素相融共存,叙述着空间与诗意的故事。
泡一壶好茶,携三两好友,于悠悠茶香间,感受和煦、自然光景,浸润人心。
室内窗纱清透,引入朦胧光影,为床品镀上柔和微光,焕发舒适质感。柔和的中性色调,东方风格的水墨壁画、中式灯饰、墨纹地毯等元素的嵌入,为这一方天地营造清幽而忘忧、古韵却不古板的空间格调。
置身其中,感受阵阵素雅柔和的东方气韵萦绕,品鉴传统风韵与现代舒适的融合之美。
留白,传递中式人文、情韵之雅。摒除一切冗杂,大面积简明而纯粹的浅色色调,流线型吊顶尽展一气呵成的曲线魅力,奠定空间低调气质,东方的静谧灵韵与现代的简约利落相互结合,则达成空间氛围的统一。
任窗外车水马龙喧杂,屋内仍是一隅归属与清净。
女儿房以打造静雅生活方式为主题,删繁就简,摒除过多复杂,贴合居住者日渐成熟的品味。着眼每一处,都透露着舒适的质感,一抹橘红的点缀,为素雅的空间添染几许明媚。
床头的绿意盎然,优雅的雕塑点缀、散发诗意的吊灯,再加之午后的一片惬意光影,明亮而温婉的气质格调跃上心头。
木色调的运用,赋予空间温润质朴的文艺气息,诗意悠长。无过多的线条表述,轻柔纱帘揽光入室,消除了空间的闭合感,勾勒出静与净的惬意时光。
于书卷中游历人生四海,平息内外浮躁,享受恬静放松的居感。

气质人居|海博熙泰192㎡
橙色点缀家的魅力|海博熙泰131㎡
至臻生活,与美好相遇|金域澜岸二期154㎡



