最新消息:光明首个真正新规"好房子"「天境云玺」该项目是新标准下的"深圳最大盘"之一,也是真正意义上的新规产品,大花园社区、限楼高80米、3.1低容积、纯商品房(无回迁、保障房)最终可能卖个4万左右,真的是buff叠满啊,在当前光明市场绝对算是一个王炸产品了!
户型图已经流出,目前正在基坑开挖阶段,目前临时展厅即将开放,将于年后入市…
长按扫码进【天境云玺】交流最新信息及获取购房返利优惠!
长按扫码进【天境云玺】交流最新信息及获取购房返利优惠!
从效果图上看,外立面预计会采用大面积玻璃幕墙+铝板结合,大园林内部可发挥更大的设计潜力,比如园林雕塑、水景、架空层泛会所等,将以更高品质标准打造。

项目将打造9栋小高层大园林社区,采用围合式布局,户型约83-166㎡新规3-4房,新规使用率超100%!

园林中央16层板楼(楼王),面积约166㎡ 大户型,2梯2户,主打高品质舒居;
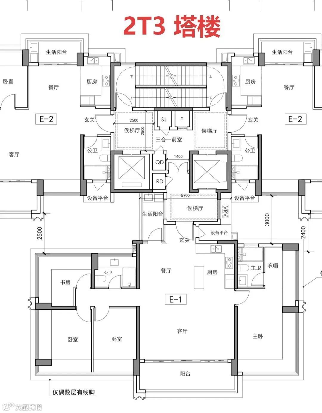
其余8栋26层2T3-6户塔楼,适配83-139㎡ 不同面积段的刚改户型。
过程版户型图也已曝光,大户型2T2户,专梯入户,户型采用南北通透双阳台设计,主卧沿用新规270°大飘窗,通风采光效果绝佳。
小户型产品种类多样,区别于市面上的大部分产品,看起来十分有亮点。有板式通透横厅、竖厅产品,方正的竖厅也做到了通透。
T6塔楼还有一户客厅双面采光,通透双阳台的板式户型,估计出来就是爆款。
次卧也都用上双飘窗,通风采光效果很好,得房率很高,只是对视问题不可避免。




长按扫码进【天境云玺】交流最新信息及获取购房返利优惠!
长按扫码进【天境云玺】交流最新信息及获取购房返利优惠!
今年(6月27日),光明中心区宅地(宗地号A509-0074)由深振业、天健、深建辰投资联合体以底价19.94亿竞得。成交楼面价18380元/㎡。
(深圳市振业(集团)股份有限公司、深圳市前海天健房地产开发有限公司、深圳市建辰投资发展有限公司)
其中,深圳市建辰投资发展有限公司成立于2021年2月24日,是深圳市光明区建设发展集团有限公司100%持股的国有独资企业。
根据出让文件,该宗地住宅部分为普通商品住房,按照“价高者得”的原则确定竞得人。无保障性住房配建、无70/90户型政策限制、无最高地价限制、不设住宅部分售价限制、意向竞买人须提供《关于“交房即发证”的承诺函》,承诺提供“交房即发证”服务。另外有以下条件:
1、宗地住宅102347㎡、商业1500㎡允许分割转让;
2、须自《出让合同》签订之日起1年内开工,4年内竣工。
项目于8月20日取得基坑支护及土石方工程施工许可,即将进入施工建设阶段。
工业用地的“变身记”
该地块原属[光明高新技术产业园区东片区]法定图则中的工业用地(M1)及公共绿地(G1)。
2025年4月14日,深圳市规划和自然资源局光明管理局发布规划调整方案,将原工业用地拆分为4块用地,其中最大地块转型为二类居住用地(R2),并新增3条支路(华周路、华科路、华明路)优化区域路网。
调整后,住宅用地面积3.5万平方米,容积率3.7,需配建9班幼儿园(3800㎡)、托育机构(600㎡)及社区体育活动场地,幼儿园产权归属。
根据出让约束条件,竞得者须在签订合同后1年内开工、4年内竣工,并承诺提供“交房即发证”服务。商业部分仅1500平方米可分割转让,其余配套需无偿移交。
地铁、学校、商业、公园,都在周边
买房最需要关注的地铁、学校和商业这三项配套,都分布在项目步行范围内。
◎地铁
高德地图测距,项目距离6号线光明大街站1公里,一站可抵达凤凰城地铁站换乘13号线前往南山核心地区
◎学校
旁边是华夏中学跟华南师范大学附属光明星河小学,东周学校,周边也分布有多所学校,包括有南方科技大学附属光明学校、深圳小学、四大名校之一的深圳外国语楼村分校等多所市属名校分校

◎商业
附近有星河COCO City,这座集中式商业将成为整个星河天地新升级的标志建筑,也会为这个超过7000户的大社区带来优质的商业配套。
目前基本成型了,预计今年就能开业, 一个地铁站还有万达跟蓝鲸世界等大型商业。
▲COCO City
附近还分布有新地中央广场约3万㎡的购物中心和绿地新都会约4.3万㎡的购物中心。
1.8公里外,体量约10万㎡的龙光蓝鲸世界跟万达广场已经开业。
◎公园
作为深圳最年轻的行政区,光明不仅实现城市定位的历史性跨越,文化生活方面更在加速崛起。
除了已经开放运营的虹桥公园、光明文化艺术中心等网红打卡地外,在建的科学公园、深圳科技馆(新馆已开放)、深圳国际美术馆(暂定名)等也在日趋完善,再一次擦亮深圳文化名片,备受全城瞩目。
地处核心居住区,居住价值显著
该地块位于光明街道核心居住区,正对华夏中学,斜接金地峰境瑞府,与网红新盘星河天地仅一路之隔。该宗地块也是近年公布拟出让宅地清单中,面积最大的一宗,区位优势、配套资源较为突出。
配套集群充沛光明文化艺术中心,以及深圳科技馆新馆、科学公园等文体设施已经陆续开放运营;生态资源方面,紧邻翠湖公园及光明小镇,人均绿地面积达54.18㎡。
整体而言,居住的价值,远超光明区平均水平。
光明新房与二手房市场:冰火两重天
项目所在的光明大街板块,曾是深圳打新“日光”常客。
周边项目印证了光明新盘的热度。2020-2021年,金地峰境瑞府一二期均开盘“日光”,均价5.13万-5.14万/㎡,吸引超1500批客户抢购。
但四年后的2025年,光明中心区的二手市场又是另一番景象。
全区挂牌均价仅4.2万/㎡,除龙光玖龙台等少数项目成交价达5万-6万/㎡外,多数小区价格徘徊在3万-4万/㎡。
2023-2024年光明累计供应超2万套新房,未来大量同质化户型(89-120㎡三四房)转入二手市场,将进一步压制房价天花板。
具体是否热销,还需最终定价!

【免责声明】本文部分信息和图片来源网络,如有相关内容侵权,请联系删除。本文所述内容和意见仅供参考,不构成市场交易依据和投资建议。

