目的:细胞治疗主要用于肿瘤治疗,具有显著疗效。但由于尚处商业化初期,从CMC研究到产业化生产各环节均需严谨把控。
方法:结合细胞治疗产品生产工艺与实际项目案例,重点分析GMP厂房、设施及设备工程设计要点,涵盖平面布局、空调系统、公用设施及设备配置。
结果:通过建设专属GMP车间,提升细胞治疗产品制备的效率与质量。
结论:细胞治疗产品因其特性决定了工艺复杂性和辅助系统的特殊要求,GMP车间设计须综合考虑场地、品种、批次、工艺阶段等因素,确保产品安全合规。
前言
细胞治疗在恶性肿瘤、心肌梗死、晚期肝硬化等疾病中展现出广泛应用前景,受到全球制药企业及监管部门高度关注。尽管其在肿瘤治疗中作用突出,但作为新兴领域,细胞治疗产品的制备仍处于商业化初期,技术链条长、风险高,从靶点发现到临床转化,再到CMC研究和产业化生产,每一步都至关重要。
不同于化学药或传统生物制品,细胞治疗产品具有“活细胞”属性,存在个体差异大、无法终端灭菌、易污染等特点,因此其GMP车间建设必须严格遵循法规,并结合产品特性和工艺流程进行专业化设计,以保障产品质量与患者安全。
本文基于国家相关规范和技术指导原则,结合实际项目经验,从厂房布局、空调系统、公用设施及关键设备等方面,系统解析细胞治疗产品GMP厂房的设计要点。
生产工艺
典型的细胞治疗产品生产工艺分为三个阶段:质粒载体制备、病毒载体制备和细胞终产品制备。
2.1 质粒载体制备工艺
以复苏携带质粒的工程菌为起点,经细菌扩增、收获、裂解破碎后释放质粒,去除宿主蛋白、基因组DNA和内毒素,纯化获得超螺旋质粒,最终通过除菌过滤得到质粒中间品。
2.2 病毒载体制备工艺
将生产细胞扩增至所需规模,采用瞬转工艺时加入质粒与转染复合物包装目标病毒,收集病毒上清液,经纯化去除牛血清白蛋白、DNA、杂蛋白等杂质,浓缩至规定滴度后,除菌过滤获得病毒载体中间品。
2.3 细胞终产品生产工艺(以自体CAR-T为例)
从患者体内获取免疫细胞,分离分选获得T细胞,激活后利用病毒载体感染,扩增培养至目标数量,收获并清洗CAR-T细胞。非冷冻制剂加入生理盐水等辅料后分装至输血袋;冷冻制剂则添加冷冻保护剂,分装至冻存袋,经程序降温后于液氮中保存。
产品生产的特殊性
细胞治疗产品作为“活细胞”制剂,相较于传统药品具有一系列独特属性:
- 供者材料来源于人体,可能存在传染病病原体风险;
- 材料来源多样,质量受个体差异影响大;
- 生产批量不一,组织模式灵活,与临床需求紧密联动;
- 对温度与时限敏感,运输与操作过程要求严苛;
- 含营养成分,一旦污染易导致微生物快速繁殖,且无法终端灭菌;
- 自体或配型使用的产品若发生混淆,可能导致危及生命的严重后果。
上述特点决定了其在GMP环境下的生产必须具备更高的防污染、防差错能力。
GMP厂房平面布局设计
细胞治疗产品GMP厂房应根据工艺流程划分功能区,包括质粒载体生产区、病毒载体生产区、细胞终产品生产区、质量控制区、贮存区及辅助设施区。各区域应独立设置空间、人流物流通道及专用设备,最大限度避免交叉污染与操作差错。
4.1 生产区
4.1.1 质粒载体生产区
划分为菌种接种区、发酵与粗纯区、精纯与灌装区(见图1)。各区域人物流独立,发酵区废弃物须经高压灭菌后方可外排。若三区合并设计,宜采用双走道单向流布局,废弃物通过专用污物通道经灭菌后传出。
图 1 质粒载体生产区功能分区图
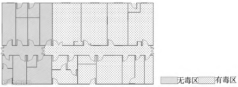
4.1.2 病毒载体生产区
分为无毒区(细胞复苏与扩增)和有毒区(转染、纯化、浓缩)。两区严格隔离,人物流独立。有毒区建议采用双走道单向流设计,废弃物经污物通道高压灭菌后排出。
图 2 病毒载体生产区功能分区图
4.1.3 细胞终产品生产区
全过程不可除菌过滤,需在无菌环境下进行,布局依工艺密闭性而定:
(1)非密闭工艺:采用双走道单向流设计(见图3),核心操作区(如细胞培养、灌装)嵌入洁净走廊。人员经更衣进入,操作完成后从退出走廊退更,废弃物经灭菌后传出,成品通过专用通道转移。
图 3 非密闭工艺条件下单向流设计示意图
(2)密闭工艺:若使用密闭系统或隔离器操作,可采用单走道布局,降低空间要求。
4.2 质量控制区
细胞治疗产品检项繁多,质控区设计需满足最大产能需求,并防范污染与生物安全风险。通常设化学实验区、微生物实验区、生物检定实验区及配套辅助用房,各区域物理隔断,互不干扰。
- 化学实验室区:配备仪器分析室、理化室、天平室、标准溶液室等功能间,支持化学指标检测。
- 微生物实验区:设微生物限度、无菌检查、内毒素、支原体检查及阳性菌室五大功能区,配套菌种室、培养室、灭菌室等,各区域独立运行,配备专用空调系统。
- 生物检定实验区:设PCR检测室、细胞检测室、常规生物鉴定室,配套准备室与试剂室,其中PCR室需独立人流、物流与空调系统。
4.3 贮存区
应设有足够空间分类存放待检、合格、不合格、退货或召回的原辅料、包装材料、中间产品及成品。含有传染性病原体的供者材料和细胞产品须单独隔离储存,配备专用设备并设置明显标识。
4.4 辅助设施区
主要包括空调系统、洁净气体系统、纯化水/注射用水系统、配电系统、空压系统等,为生产提供基础支持。
空调系统设计
- 洁净度要求:质粒与病毒载体最终产品可除菌过滤,其灌装需在C+ISOLATOR或B+A级环境;发酵区(密闭罐)可在D级,纯化区需C级。细胞产品全程不可除菌过滤,制备间应在C+ISOLATOR或B+A级,其余区域为C级。
- 压差与气流:洁净区与非洁净区之间、不同级别洁净区间压差不低于10Pa;必要时相同级别不同功能区也应保持梯度压差。
- 系统划分与回排风:
- 细胞、病毒、质粒生产应分别设置独立空调系统;
- 涉及传染性病原体的操作区域应独立设置并保持负压;
- 单个细胞操作间配独立空调时可适度回风,但每批生产后须彻底消毒灭菌并验证无残留;
- 多个操作间共用系统时应设计排风;
- 高风险阳性区排风须经高效过滤后排放至室外。
公用设施系统设计
- 纯化水系统:用于洁净服、工器具、洁具清洗及人员洗手。
- 注射用水系统:因接触材料多为一次性无菌耗材,用量较少,亦可外购使用。
- 纯蒸汽系统:用于B级区工器具及无菌服的灭菌。
- CO₂气体系统:为CO₂培养箱供气,通过气瓶间汇流排输送。
- 非洁净公用系统:冷冻水与蒸汽为空调系统提供冷热源,调节温湿度;压缩空气用于气动阀门动力;配电系统需为低温冰箱、冰柜等关键设备配备UPS电源,防止断电影响产品质量。
设备
- 生物安全柜:非密闭工艺中广泛使用,根据病毒或菌种特性选用Ⅱ级A2或B2型。
- 隔离器:包含传递舱、操作舱、观察舱、培养舱等功能模块,内置A级层流,采用顶送底回气流设计,集成VHP干法灭菌技术,配备在线尘埃粒子与浮游菌监测系统,实现全过程动态监控,保障无菌操作。
- 细胞培养设备:传统摇瓶难以满足商业化需求,生物反应器成为主流。其优势包括:
- 高细胞产量,实现密度数量级扩增;
- 精准控制与实时监控,便于数据追溯;
- 密闭体系,可与上下游无菌对接,确保质量安全可控。
结语
在国家政策大力支持下,随着多款细胞治疗产品获批上市,行业已进入快速发展期。然而,如何实现从实验室研发到标准化、可控化生产的跨越,如何实现低成本、高质量的商业化生产,仍是当前面临的核心挑战。
细胞治疗产品因其“活细胞”特性,决定了其工艺流程复杂、辅助系统要求特殊。GMP生产车间的工艺布局与设施设计,必须充分考量场地条件、生产品种、批次规模、工艺路线及研发阶段等多重因素。唯有科学规划、合规设计,才能保障产品的安全性、有效性与合法性,推动产业可持续发展。

