大数跨境
0
0

影音与星空交相辉映【蔚蓝卡地亚】定制影院案例

影音与星空交相辉映【蔚蓝卡地亚】定制影院案例 东和盛泰智能影音
2024-03-06
1
导读:音光交融创享全感官盛宴拥有一处独立隐私的空间:属于全家娱乐、休闲放松的相处方式;给全家舒服静谧的独处时间;为生

音光交融

创享全感官盛宴


拥有一处独立隐私的空间:

属于全家娱乐、休闲放松的相处方式;

给全家舒服静谧的独处时间

为生活品质提升品位;

帮爱好找到安家立所的地方。


成都-蔚蓝卡地亚

牧马山蔚蓝卡地亚位于成都牧马山中央纯高端低密区,联合美国Dahlin道林、TCDL香港陈建中等优秀专业团队,打造国内全新居所理念——俱乐部式名邸。以经典传世建筑、欧式四季美景、俱乐部配套与定制服务,成就格调蔚蓝生活。

牧马山蔚蓝卡地亚正式亮相销售以来,受到客户的热捧和高度认可,牧马山蔚蓝卡地亚始终深受广大客户的信赖认可,未来,蔚蓝卡地亚将延续这份难得之爱,努力为客户创造100%增值人生的蔚蓝生活体验。


项目基本情况

业主希望在这个家庭影音室里,可以允许自己一人,独享一个专业的电影院,也可以邀请亲朋戚友欢唱淋漓、载歌载舞,又可以让家里上了年龄的长辈,用起年轻人的这个空间,能得心应手好操作。



业主对于影音室的设计有明确的规划,和很多需求客户一样,在设计前期做到货比三家,面临零零总总的多家影音公司的竞争,要么不够专业,要么服务不能保障,终于在朋友的口碑相传中,东和盛泰凭借多年影音智能相关案例经验,成功虏获业主芳心,投入影音室的整体构建设计中。


构建过程

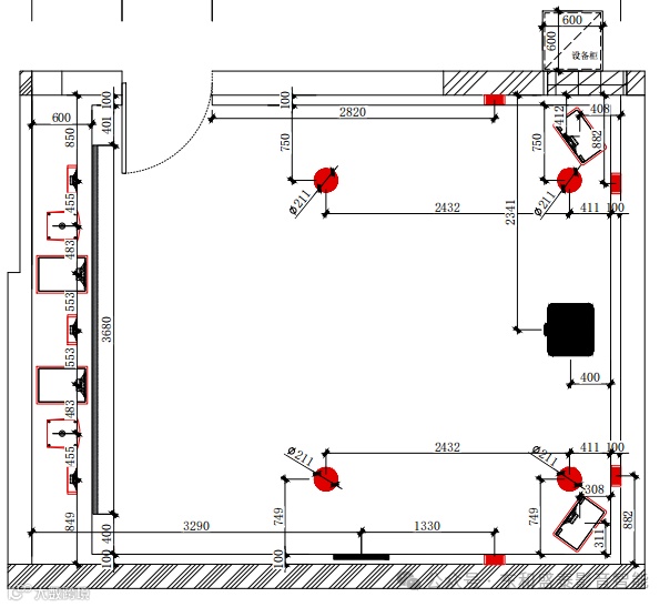
在构建影音室之前,需先了解这个空间的大概信息:

本案利用地下负一层一个独立空间打造,这一空间长5.88米,宽4.68米,总体面积27.5㎡。长方形的原始毛坯结构,空间较为封闭,没有窗口,很好的具备了打造影音室的先天条件,以较大程度地减少了外界噪音和干扰。

针对现场情况,我们也是出了好几个意向方案。

一、业主方对于现场造型完成度要求非常高,而常规影音设备会破坏造型,我们建议采用透声画框幕布让音箱都隐藏起来的方案被业主接纳!

二、全部选用影院专业的座椅沙发,并在后排做阶梯,抬高后排视野,以形成前后两排的的座位,不被遮挡,并更大程度的为人员观影提供更多座位。

三、为了从整体有更加宽广的视觉享受,我们建议在空间顶部做嵌入式的天花吊顶,加入星空顶设计元素,选择神秘悠远的艺术造型,从而从根本上延伸空间感觉,让深邃的、静谧的观影体验时刻围绕,空间不再被局限。

四、电源和布线:合理的电源布局和布线,以满足各种设备的供电需求,并充分考虑投影仪、音响系统、影片播放器等设备的位置和布线方式,以求美观和简洁。

五、业主希望尽量让空间简约化,但太素的墙面显得过于单调,我们保留原始素雅要求,但在这基础上,在墙壁左右两侧做简易的灯带造型,以左右对称的设计,形成规律的、有序的灯光设计,一方面起到了照明作用,另一方面让影音室质感提升,简约中带有设计感。

六、控制系统:安装智能控制系统,集成音响、投影设备、声音和照明等功能,方便通过单一遥控器或手机应用程序来控制房间内的各项功能。


器材分享

选择Klipsch THX认证音箱,为缔造完美音效打下坚实基础

无限接近,乃至超越商业影院的音响效果,是一众集成商的终极目标。要实现这一切,需要各方付诸努力——从选品、安装到调试缺一不可。这里我们推荐来自Klipsch(杰士)的THX认证音箱系列,它们经过严苛测试认证,最大限度接近THX商业影院所能呈现的效果,为在家庭中实现完美音效打下坚实基础。

THX认证是家庭影院追求高品质音效的实现手段之一。Klipsch是最早与THX展开合作的音箱品牌,通过合理选型(比如依据空间大小)、科学规划和严谨的调试安装,就有机会获得想要的高品质音效。当然,选择THX认证音箱,是最基础和不可或缺的一步。

影院系统:

主中音箱:美国杰士THX-8000-L*3只

环绕音箱:美国杰士THX-502-L*4只

天空环绕:美国杰士CS-16C II*4只

低音炮:美国杰士SPL-120*2只

功放:天龙AVC-X6700H*1台

投影:爱普生CH-TW7400*1台

幕布:JK160寸画框透声*1幅

播放器:亿格瑞A9III*1台

卡拉OK系统:

前置专业音箱:JBL KES710*2只

后置专业音箱:JBL KEM3100*2只

专业功放:FLKS MAX1600*1台

效果器:派对屋 A8*1台

点歌器:视易K73*1套

无线话筒:BBS G99*1套

智能控制系统:

埃克斯LK200*1套

本案自动化系统的引入,不但提升了使用的便利性,而且还让视听效果得到提升,空间的灵活性、科技的巧妙运用以及对细节的关注,让业主对于影音室设计有了更深层次的理解,也为业主创造了一个既时尚、舒适又功能齐全的影音空间。


设计心得


在影音室设计的过程中,东和盛泰深刻领悟到空间规划与科技融合的重要性。通过精心选择声学材料,成功创造了一个音质卓越的空间,令音乐和电影效果更为震撼,将观影体验推向新的高度。影音设备的巧妙布局和投影技术的运用,使得整个空间都充满了科技感,为业主提供了沉浸式影音享受。


【声明】内容源于网络
0
0
东和盛泰智能影音
本公司多年来专注于智能影院的设计展现,完美音质的极致绽放!旗下代理有丹麦皇冠,丹麦达尼,丹麦丹拿,美国JBL,美国杰士,美国Martin logan,雅马哈,马兰士,天龙等数十个高端品牌。
内容 36
粉丝 0
东和盛泰智能影音 本公司多年来专注于智能影院的设计展现,完美音质的极致绽放!旗下代理有丹麦皇冠,丹麦达尼,丹麦丹拿,美国JBL,美国杰士,美国Martin logan,雅马哈,马兰士,天龙等数十个高端品牌。
总阅读27
粉丝0
内容36