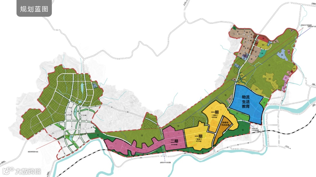
华南永信达服装产业智慧新城,是绿色制衣全产业链智造基地,是粤港澳大湾区产业转移典范案例。园区以成链式牛仔制衣、洗水为纽带,科学规划布置纺纱、浆染、织布、加工及配套企业,构建联系紧密、流通顺畅、节能环保的立体式产业配套集群。





























产业园规划与概念设计:








































揽世空间设计华南永信达服装产业智慧新城,是绿色制衣全产业链智造基地,是粤港澳大湾区产业转移典范案例。园区以成链式牛仔制衣、洗水为纽带,科学规划布置纺纱、浆染、织布、加工及配套企业,构建联系紧密、流通顺畅、节能环保的立体式产业配套集群。





























产业园规划与概念设计:







































