银幕亮起
梦幻启航
)
ABOUT AUTUMN
成都后花园别墅
(
如约而至
)
在现代生活中
私人影音室不仅仅是
满足日常生活需求的功能性空间
更是提升生活品质
体现个人品味的重要元素
项目基本信息
项目类别:别墅私家影院
设计公司:成都东和盛泰智能影音
项目地址:成都后花园别墅
空间信息:影音室 38㎡
位置及周边概括性描述:项目坐落于成都金牛区,以其“低容积率,高绿化度”著称。影音室位于别墅的负一楼,由东和盛泰提供整体设计,整合空间的声学设计及器材配搭设计于一体,做到了令客户省心一站式设计。
业主使用需求:本案业主在别墅建设的时候,由于家人都爱看电影,平时碰到时下热播影剧在电影院上映,也会携带家人们观看首映。鉴于如今家庭影院的发展需求,业主和家人商量后决定在自己家装一间私人影音室,兼顾家人们平时接待亲朋好友的需要。
方案配置-美国杰士7.2.4全景声影院
主音箱:RF-7 III*1对
中置音箱:RC-64 III*1只
环绕音箱:RP-502S II*4只
天空环绕:PRO-180RPC*4只
低音炮:捷力 E112*2只
功放:安桥 TX-RZ70*1台
画框幕布:焦点 MPS-180寸透声*1幅
构建过程
本案是地下室空间的设计打造,用作影音室,精益求精设备系统带来最好的体验效果。好的声音表现,离不开器材和专业装修之间的相互配合,此项目严格遵循按照专业影音装修要求而设计。
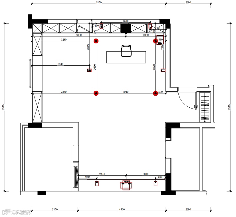
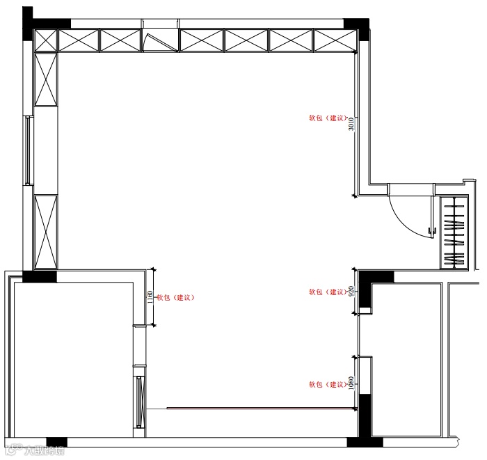
先来介绍影音室空间,长8.57米,宽4.5米,影音器材围绕的面积约38㎡空间。密闭的空间,有利也有弊,好处在于:较暗的光线能够在欣赏影片的时候,只要做简单的遮光处理就能达到良好的欣赏环境;除此之外,负一楼有先天的隔音效果,能够帮助看电影时屏蔽掉一些其他的声音。但同时也存在着一些弊端,由于是封闭的地下室,可能会出现阴暗潮湿的环境,所以在装修前,要做好防水、防潮、防白蚁的处理。
施工前,施工单位根据东和盛泰出具的施工细节图纸,对例如线材的处理方式、走向、音箱的悬挂或摆放的位置,新风、地暖、电极防潮等做细化,指导过程清晰明朗细致,相互配合做好整期施工工作。
一间专业的影音室,在声学设计方面必须考虑到两个大方向:声学效果和隔音效果。避免声音的内外影响是声学设计的重要因素,即使是独栋别墅的地下室,不会有影响邻居的烦恼,也要考虑室外声音对观影效果的影响,因此必须两者兼顾。
经过调试的别墅影院:快速紧凑的低频表现,宽广的动态范围,每个位置都能聆听到“皇帝位”的音效,对白清晰且准确,精确的声音定位,平滑全高清的声像移动,极具空间感的环绕声场,平衡的音色均实现并全面超越了影院级别,令业主赞不绝口。
器材分享-美国杰士
Klipsch RF-7 III音箱:高端音响新标杆
探索美国杰士Klipsch RF-7 III音箱的卓越性能,这款全新无源落地音箱,以其精湛的工艺和卓越的音质,成为家庭影院音响的典范。
🔊 特征亮点:
1. 全新1 3/4“钛合金压缩驱动器,为高音表现注入力量。
2. 90x90压模橡胶Tractrix号角,优化高频响应,拓宽声场。
3. 重新设计的双声腔箱体,确保声音的纯净与清晰。
4. 双Tractrix导向孔,增强低音效果,带来深沉的听觉体验。
5. 双10“陶瓷铝低音扬声器,压铸铝框架,确保低音的震撼与稳定。
6. 高级家具级木饰面,融合美学与音质,提升家居品味。
🔧 技术创新:
全新高音单元设计,1.75”钛膜压缩驱动单元与相位塞的结合,提升高音与号角喉部的相位一致性,优化高频声压线性。
全新Tractrix号角设计,圆形号角喉管搭配方形开口,实现更好的高频响应和延展性,增强声场和动态效果。
压缩成型橡胶结构,增加高频阻尼,减少杂音,提升声音细节的还原度,呈现最自然的声音效果。
双声腔设计,让每个10”单元和导向孔独立运作,减少箱体驻波,提升中频声效的线性度。
低音单元采用重型铸铝框架,消除共振,双短路环磁铁结构设计,消除电磁流动噪音,改善锥盆运动线性度。
🌍 美国设计,美国制造:
杰士RF7III音箱的设计融合了美国工艺与技术创新,每一个细节都体现了对音质的不懈追求和对美的独特理解。
Klipsch RC-64 III中置音箱:
美国杰士使用RC-64 III中置声道扬声器获得具有传奇色彩的高性能Klipsch声音。采用全新钛压缩驱动器,90x90压缩模压橡胶Tractrix喇叭,重新设计的双声腔箱体,铸造框架Cerametallic低音扬声器和优质家具级木饰面- RC-64 III中央声道扬声器提供真实的生活、电影质量的声学。
全新1 3/4“钛压缩驱动器
90x90压缩模压橡胶Tractrix号角
2 1/2路网络交叉设计
四 6.5“铸造框架Cerametallic低音单元
高级家具级木板贴面
在美国组装
90° x 90° Tractrix® Horn
经过重新设计的Tractrix号角使用圆形喇叭喉部与方形喇叭口配对,进一步改善高频响应和延伸,同时增强成像和动态。压缩模压橡胶结构增加了高频阻尼,以减少粗糙度并改善细节。这可以创造出最干净,最自然的声音
Klipsch RP-502S II 环绕立体声音箱
90°X 90°硅复合材料混合TRACTRIX HORNHorn加载最大化效率,提高细节,同时将高频聚焦到收听区域。专有的Tractrix®几何结构可将高频波最有效地传输到收听区域。相位塞和压缩模制硅面确保了平滑的频率响应。当组合在一起时,会产生最干净、最自然的声音。第二代增加了喇叭尺寸,以获得更大的声场和增强的指向性。
(LTS)钛隔膜TWEETER独家线性行驶悬架最大限度地减少了变形,从而提高了详细的性能。LTS高音扬声器是以前参考系列的标志,使其成为世界上一些最好扬声器的核心部件。
排气高音扬声器设计排气高音扬声器外壳减少了产生不必要谐波的驻波,从而提高了高频再现的细节和清晰度
全新设计参考首映系列的标志性特点CeramilliC™ 低音扬声器非常坚固,重量轻,失真最小,效率最高。新的音圈直径增大了70%,从而改善了功率处理和更大的锥形控制,从而实现更大的线性度和完美的再现。新的铝短路环减少了失真,增加了功率处理,新的电机结构提高了运输响应,具有更高的速度和精度。
Klipsch PRO-180RPC
随着整宅的音响系统越来越普及,Klipsch设计的PRO-180RPC满足对于高品质吸顶喇叭的市场需求,以打破一直以来对于安装位置的局限性。
声道好搭、好玩、好调:捷力 JL Audio E-112 低音炮
一、音质表现
E112低音炮的音质是其最大的亮点。它能够下沉到20赫兹以下的低频,且声音够大、够响,能够带来震撼的音效体验。无论是看电影还是听音乐,都能感受到其深沉有力的低频表现。
二、功能特点
低通高切功能:E112配备了低通高切功能,可以根据不同的音箱和音频需求进行调节,确保音质的平直衔接。
动态表现:在动态表现方面,E112同样出色。它能够轻松应对各种音乐场景,无论是激昂的摇滚还是柔和的古典音乐,都能呈现出完美的音质效果。
三、外观设计
E112低音炮的外观设计简约大方,工艺精湛。其整体造型美观大方,能够很好地融入各种家居环境,为家庭影院增添一份美感。
客户自购的JVC DLA-N899
采用了焕然一新的设计理念,不仅大幅缩减了机身的体积与重量,使其能够轻松适配各类视听室及客厅环境,更在紧凑的机身内集成了JVC众多尖端投影技术,其画面性能相较于JVC以往的原生4K机型,实现了显著提升,堪称当前原生4K激光家庭影院投影机中的“小钢炮”。搭配焦点MPS系列150寸微孔透声幕,简直是天作之合。
设计心得
打造一间专业舒适的家庭影院
需要考虑到方方面面
精准测量、精心设计、精细规划
都可谓缺一不可
如何在自己家中
创造出令人满意的观影环境
便是专业定制设计服务的意义
关注我们
(
成都东和盛泰智能影音
)

