项目区域
位置交通
位于上海市浦东新区富特北路520号
步行可达地铁轨交6号线航津路站
紧邻外环高速,靠近五洲大道,可便捷到达城市各处
30分钟车程至张江药谷、45分钟车程至浦东国际机场、52分钟车程至虹桥火车站
项目特点
位于外高桥保税区
区域规划确保稀缺的环评审批资源
约8,500平方米的四层独栋
层高、承重和电量条件均可满足高规格生化实验室
遗留高标准生化实验室及其附属设施(部分)
由于该楼一直由美药典自用,房屋及设施的状况维护良好
项目参数
|
项目 Item |
备注 Details |
|
项目地址 |
富特北路520号 |
|
项目建筑面积 |
8,435.13平方米 |
|
单层建筑面积 |
1F: 1,683.00平方米 |
|
土地用途 |
工业用地 |
|
土地使用期限 |
2012 – 2042年 |
|
竣工日期 |
1996年 (2013年升级改造) |
|
房屋类型 |
工厂 |
|
项目层数 |
4 |
|
项目层高 |
1F: 4.8米 2-4F: 4.2米 |
|
楼板荷载 |
5千牛/米 |
|
项目总供电量 |
双路供电 2台1250KVA变压器 |
|
电梯数量 |
2客1货 |
|
电梯载重 |
客梯1吨 货梯2吨 |
|
实验室目前使用功能 |
通用微生物实验室 化学分析实验室 食品检测实验室 生物科学实验室 |
项目照片
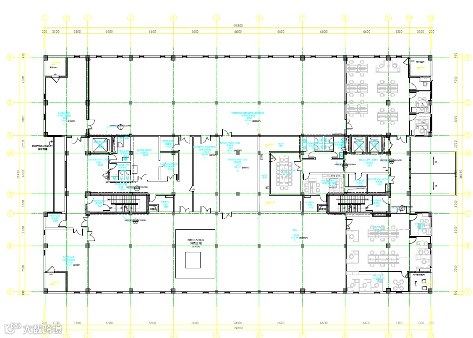
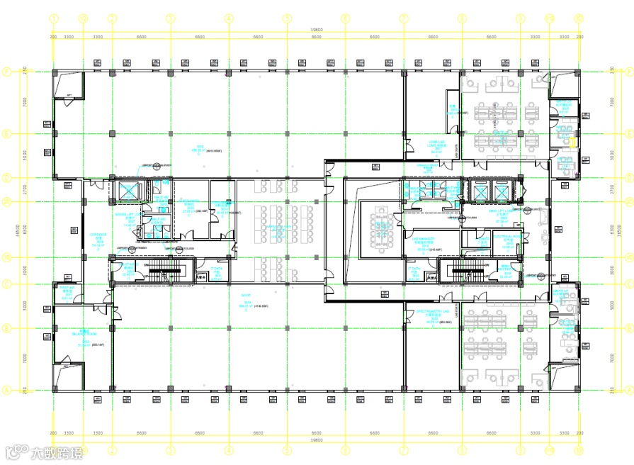
平面布局
1F
2F
3F
4F
Carlos Shen 沈诚
+86 185 0167 6468
carlos.shen@colliers.com
Sarah Xu 徐羽捷
+86 182 1706 8586
sarah.xu@colliers.com
找物业?寻客户?看报告?
请关注高力国际产业及物流地产
微信公众号!
点击下方“阅读原文”获取双语项目介绍文件

