按照OCIMF《ISGOTT》、《MOORING EQUIPMENT GUIDELINES》及《VESSEL INSPECTION QUESTIONAIR》要求,系缆绞车制动器应定期(不超过6个月)试验、定期维护和检查,且试验记录应保存在船上。
1 试验的设备包括
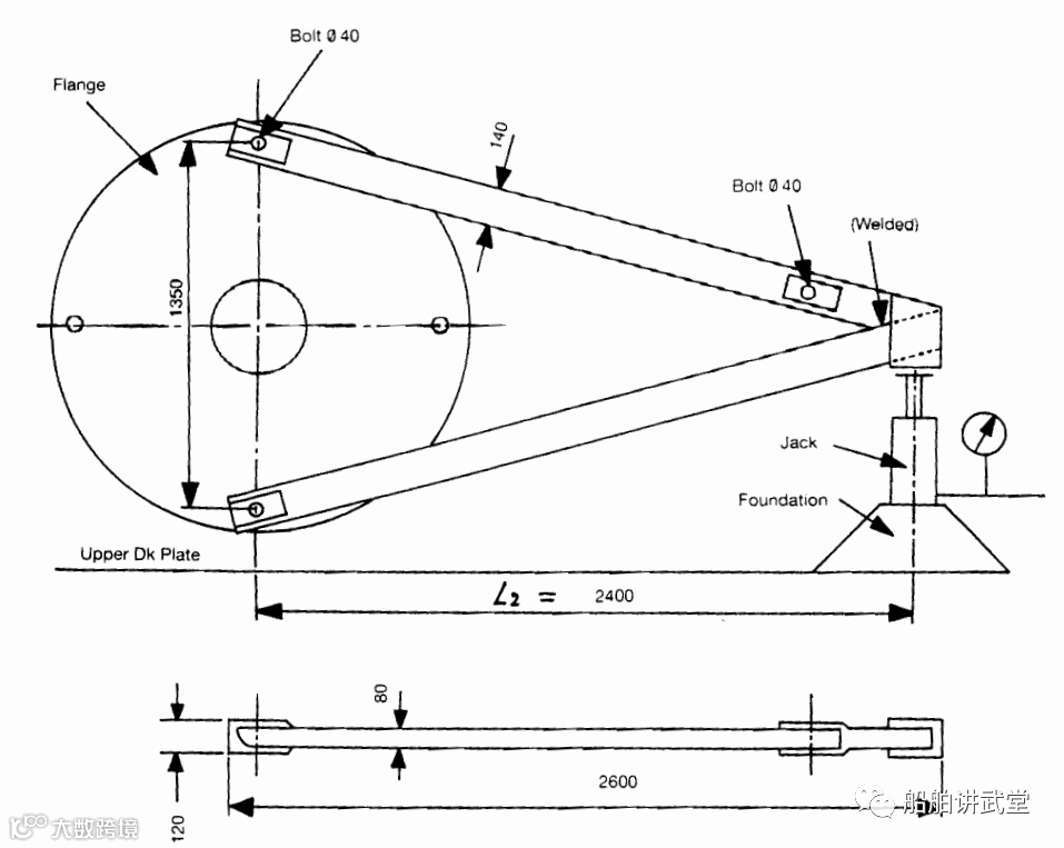
带压力表的千斤顶(JACKWITH GAUGE)
带螺丝的钢质托架(BOLTEDBRACKET)
钢质垫座(FOUNDATION)
缆车盘钻两个与托架相配的螺孔
注意:千斤顶送上船时必须检查其压力表的范围(0——50MPA或0——100MPA)及活塞的截面积数据(以便于将压强读数换算成力)

2 试验前准备工作
——查阅资料,了解本船所配缆绳的破断力(MBL)
——查阅资料,了解本船系缆制动器的额定制动负荷力
——实地测量,取得本船缆车内盘绳筒至中心轴的半径(L1)
——实地测量,取得千斤顶托架中心至中心轴的横距(L2)
3 试验要求
绞缆机的刹车必须具有缆绳破断力60%的制动能力。由于使用过程中有损耗,将造成制动能力下降,所以新设备必须设计到缆绳破断力80%的制动能力,但要有可调节到60%破断力的能力。所以,通常试验时,以缆绳破断力60%为低限,最高达到80%破断力即可,即刹车制动力达80%缆绳破断力时缆绳可以自动滑出。
4 试验时须注意的一个问题——缆绳在缆机卷筒上的盘绕方向
无论是无分隔的单卷筒绞缆机还是分隔式双卷筒的绞缆机,如果缆绳在其卷筒上的盘绕方向错误,都会使制动器的制动能力大为减小。重要的是,要注意到所盘绕的系缆是顺着制动器的固定端将其拉出(拉力方向是沿刹车带顺着其固定端)。(请参照OCIMF《EFFECTIVEMOORING》“CorrectReeling”段)
有鉴于此,试验时,千斤顶顶力方向也应备加注意,即顶力与缆绳正确拉力方向一致。
5 实例

以下是JS35轮艏部缆车刹车力试验的实例:
查阅资料,缆绳MBL=400Kn
实测得,L1=31cm L2=98.5cm
所供千斤顶活塞截面积:0.003968m2
由此可得:要求的千斤顶顶力(REQUIREDFORCE)分别为:
F1= 60%MBL´L1/L2=75.6Kn
F2=80%MBL´L1/L2=100.8Kn
则,要求的千斤顶读数(REQUIREDGAUGE DATA)分别为:
MPa1=75.6¸(0.003968´1000)=19MPa
MPa2=100.8¸(0.003968´1000)=25MPa
实际试验过程中,在千斤顶读数为19MPa时,刹车制动效果很好,说明刹车已满足60%MBL的制动能力。继续增加千斤顶顶力,至千斤顶读数为24MPa时,刹车开始滑动,此时刹车力F=24´0.003968´1000´L2/L1=302.6Kn。为缆绳MBL的75.6%,符合要求。
刹车试验记录说明
1. 每一缆车一张记录表,缆车编号应从前至后,从右到左编排。
2. 测试结果(Rendering Force)应标示在缆车上,每半年测试1次。
3. 本记录簿由大副记录和保管,用完后保存3年。

绞缆机编号: |
|||||
装配缆绳的日期 / 缆绳破断力(MBL): |
|||||
装配的缆绳材料、尺寸: |
|||||
内容 日期 |
L1(m) |
L2(m) |
千斤顶活塞 截面积S(m2) |
千斤顶读数 (MPa) |
实测制动力F (kN) |
注:F=MPa×S×1000×L2/L1
来源:船舶讲武堂

免责声明:本文仅代表作者个人观点,与思舶网无关。文章及图片、视频来源于网络,版权归原作者所有,如有侵权,请与我们联系删除,其原创性以及文中陈述文字和内容未经本站证实,对本文以及其中全部或者部分内容、文字的真实性、完整性、及时性本站不作任何保证或承诺,请读者仅作参考,并请自行核实相关内容。



