极简别墅

一层客厅
苏州曾有一园,名“也园”,主人是个姓熊的布商。关于此园的文字止偶然散见于明遗民的随笔之中。有些名气,盖因此园虽不及拙政园、沧浪亭规模,但小而精雅之故。人初不知园名何意,主人乃告:苏州的园林,大多非富即贵,不敢与之比。蜗居虽小,也勉强算得一园,故名“也园”。


一层客厅
丽丰棕榈彩虹花园的样板房项目,属于联排别墅。虽称别墅,面积不大。在性质上属于“也园”一类,因此不妨称其为“也是一墅”。


一层客厅
设计师在接手项目的时候,首先考虑的是如何设计一个剧情。针对未来可能的使用客户,设计一组相应的人物角色——年龄大概在三十岁上下,比较富裕,可能有过留学的背景。



一层餐厅
两口之家,父母不常在身边。追求时尚和表象的西式生活,但还没来得及建立属于自己的品味——这是一个年轻时代的缩影——对一切都好奇,对一切都想尝试,一个逐梦的年龄。
设计师希望通过这种情节代入的方式来设计一个居住空间,使之完成后具有“人居”的气息,有人的痕迹,而不是一个单纯的样板房。





艺术装置
表现这一切,首先要有一些合适的物来体现主人的生活状态。作为一个联排别墅的主人,不能让他车库里停放着几部超跑的可能。
设计师以摩托作为描述这个影子主人个性的主要物件。Harley或者Triumph都不太符合我们主人的气质——一个太悠闲,后者太沉着。那么就用一辆Ducati吧,凌厉而张扬的“大鬼”。
然后再放一个3D打印的美式机车模型——那意味着年轻人不可捉摸的小小的贪心。还需要些代表所谓时尚的东西做些铺垫,于是在墙上有了一个Nomon的挂钟,B&B的女人躯体躺椅,都是“牌子”,当然,还要那么一两个现代艺术雕塑。
有了这些,主人的大致形象已经能描绘得出来了。一个小小的脚本安排好了,空间的设计也有了方向。



二层老人房
设计师在设计的过程中,首先对建筑的原始结构做一些小小的改动:一楼的客厅外扩了一部分;三层的大露台截取一部分做了一个阳光房;负一层与车库打通,将原建筑的工人房拆除,将之移至负一层最靠里的翼侧,形成一个带天窗的多功能房,而将整合后的部分,以如琥珀一般将一辆红色的Ducati“大鬼”包进大玻璃罩为视觉和空间氛围的重点,改造成一个带有娱乐性质的玩赏空间。




二层儿童房
整体设计,设计师以黑白灰为设计格调,但纯粹的黑白灰关系会使住宅环境给人以冷冰冰的感受,因此设计师同时将变幻的黄色和灰色调子作为穿插,既让空间流畅简洁,又赋予其温馨的居住气氛。
一方面通过使用灯光和材质的变化营造同一色系和不同色系的微妙变化,另一方面通过相应的线条将立面和天花作不对称切割,将灯具作为能够活泼空间关系的点和线融入到空间当中,赋予空间活泼的趣味。




三层主人房
设计师结合个人的设计经验与建筑本身的特点等诸多因素综合考虑,最终取得一个相对平衡的结果。设计师通过设计探索,对生活方式的可能性的讨论——在假想中建立一个模型,在现实中这个空间会存在居住的多样性。设计师为我们呈现生活中的可能性,而这种可能性是建立在对人和生活状态分析的基础之上。









负一层


负一层车库

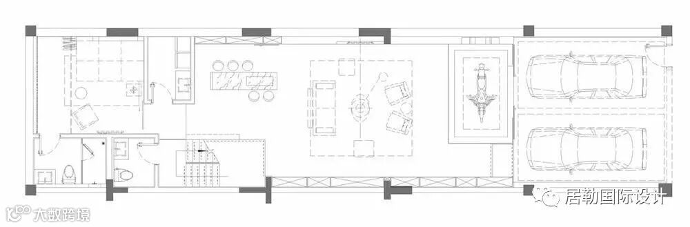
平面图

△一层平面图

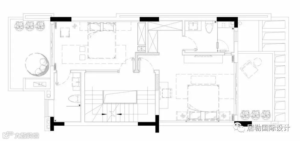
△二层平面图

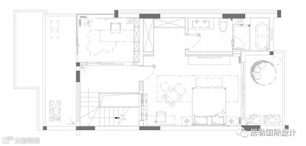
△三层平面图









