
BANC RIver Luxury
Banc 河畔奢华公寓
Banc 是澳大利亚一家名为IDEAL的开发公司的豪华公寓,它最大的特点就是位于河滨附近,建筑的外立面有着河流般动感的曲线。


Banc位于澳大利亚布里斯班绝佳的地理位置,住户要去市区和主要商业区都非常方便。另外,在 Banc 的公寓里,居民们可以欣赏风景秀丽的河边风景,和周边便利的购物中心。
建筑设计和室内设计分别由澳大利亚WMK和SJB事务所完成。

阳台内的金属孔板造型可以有效阻止阳光直射进室内,并创造一种奇妙的光影变化。

Sky Mansion
Sky Mansion 是位于顶楼的复式公寓,豪华的程度丝毫不输给五星级酒店的总统套房。
面积达到惊人的 455㎡,有 5 间奢侈装潢的卧室。
主套房十分精致,可移动衣柜、私人阳台、高级浴缸一应俱全。

▲ 455㎡ 平面图

挑高的主人套房包括步入式衣柜,私人阳台和主人套房,配有双梳妆台和独立浴缸。
为了体现尊贵,有专用的直达电梯,可以优先其他所有人直接进入住所。


客厅贯穿整个户型的东西向,会客、起居、餐厨房区域,横跨整个顶层。
另外,从公寓的每个角落都有极佳的景观。



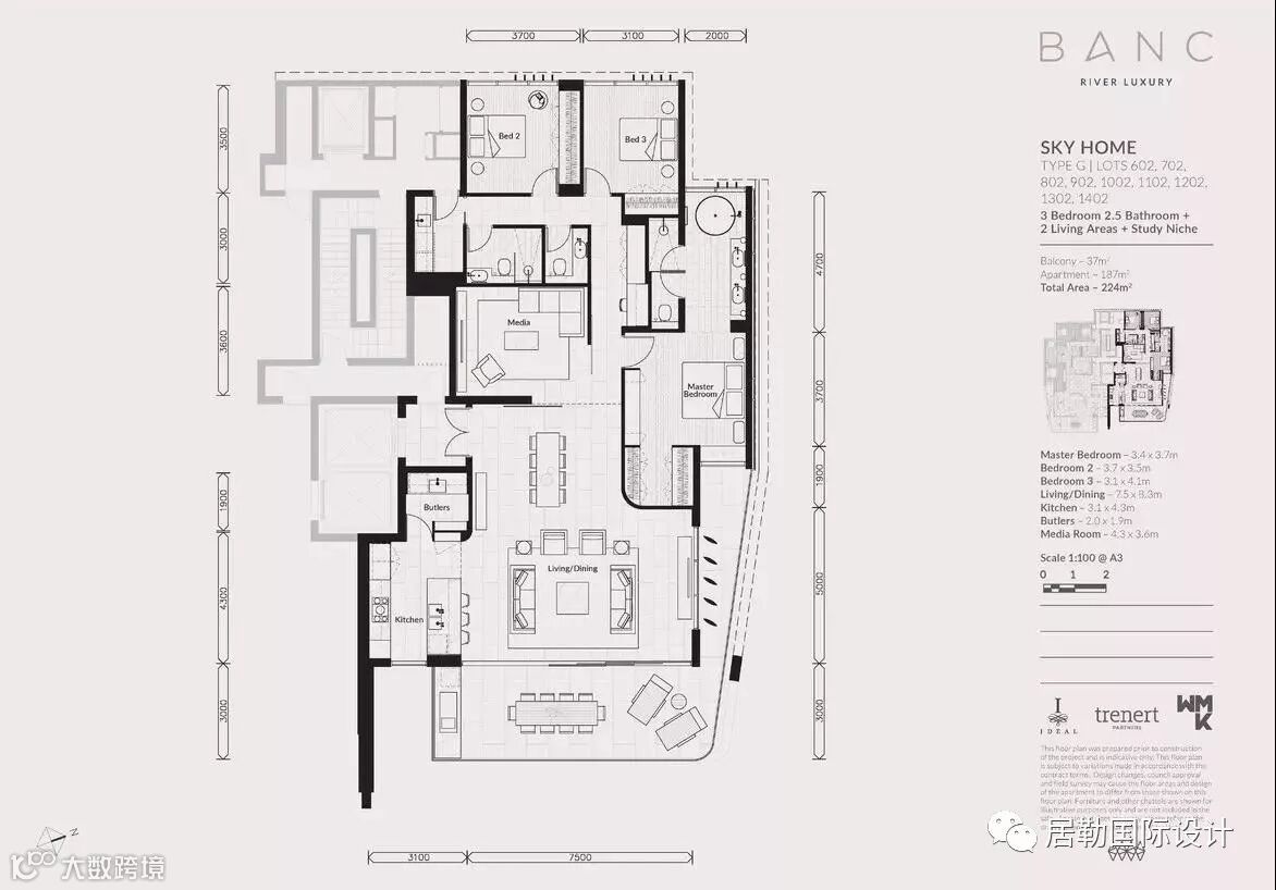
Sky Homes
Sky Homes 比起 Sky Mansion 面积要小上一些,但奢华程度并无不同。
布局横跨三间卧室,两个生活区和宽敞的包裹式阳台,提供高达 37㎡ 的室外空间。

▲ 224㎡ 平面图

▲ 231㎡ 平面图
温暖优雅的内部设计有着非常独特的细节,宽敞的生活区和餐饮区,再通过滑动门,可以让室内与室外完全相融。



Garden Homes

Garden Homes 是户型最小的房型,并且在相对低的楼层,客厅和卧室的对面有着大露台,室内运用了更佳轻快的色调。




「奢华」不仅体现在公寓的装潢上,还体现在生活方式体验上。
能看到高档私人餐厅、屋顶泳池、高级鸡尾酒吧、咖啡馆……

—— THE END ——









