在苏黎世的Seefeld(塞费尔德)地区,
有一栋拥有170年历史的古建筑。
它位于城市的核心区域,
并被政府规定为“历史保护建筑”。
想要用现代眼光进行重新改造,
并没有想象的那么容易。
如何在尊重历史原貌的基础上,
赋予其新的生命,
成了设计过程中最大的难题。
改造前
▼

底层为工作室的多户住宅房屋
改造后
▼

里面包括5间小公寓,和4处可居住的工作室
粗粝古朴的石墙历史悠久,
后来又被涂上了一层石膏。
为了让石墙的天然肌理得以生动展现,
设计师敲掉了原来的石膏层。

原始建筑材料的保留,
与现代生活方式进行对接,
不但为旧建筑注入时代的精神和生命力,
也完美地体现了层级资产阶级房屋的面貌,
位于顶层的5、6号公寓
▼

朴实无华的混凝土、原木和石膏,
共同打造出一个让心灵沉淀的完美角落。
20厘米厚的框架木窗直接安装在石板上,
为室内带来了充足的自然光源。


房间的动线划分比较明朗,
只放置了一些简约的功能性家具。


最洗练的设计语言,
描绘出最丰富动人的空间效果。
裸露的石墙,
没有人工刻意的雕琢,
既展现出自然之美,
又凸显艺术感。




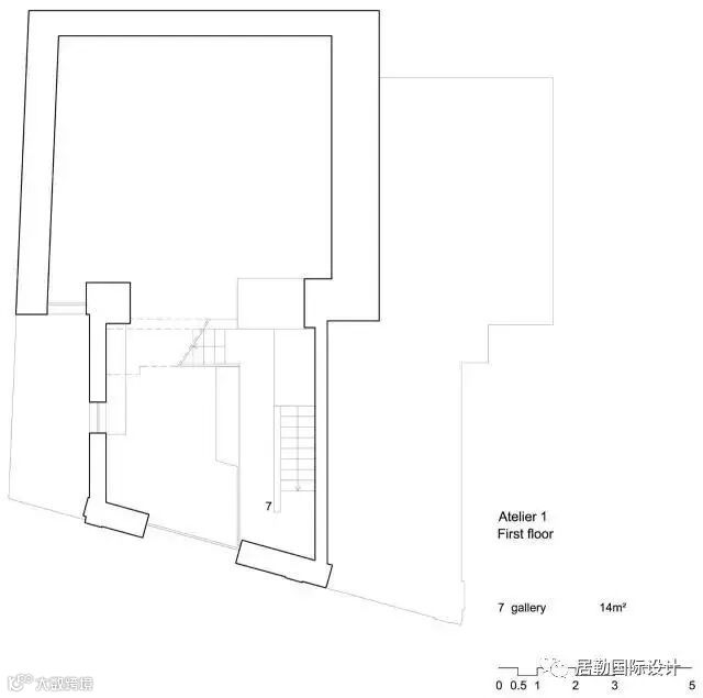
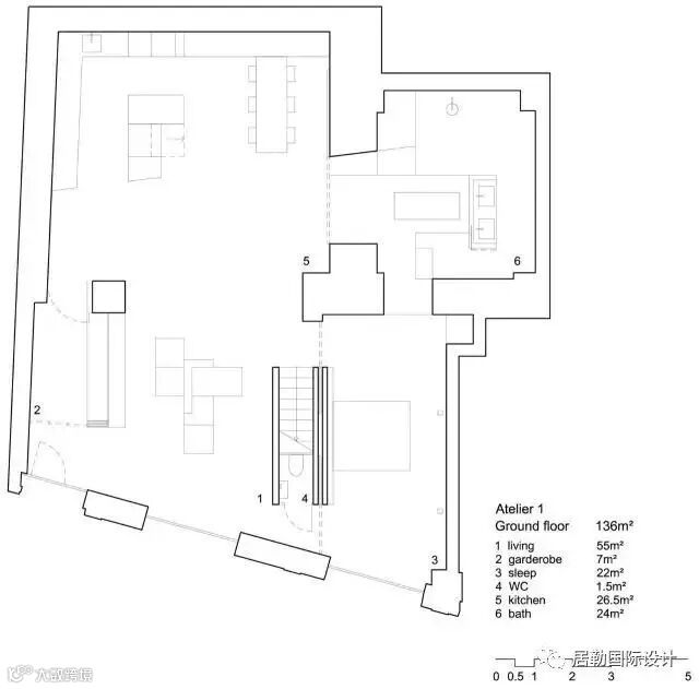
1号工作室
▼


石拱门和混凝土的结合,
奠定了整个空间的基调。

由于设计师对于建筑材质的运用熟稔于心,
使得空间内部层次更加丰富。
独特的光效渲染出一种诗意,
又散发着自然、简约的时尚风情。


这样的空间给人一种治愈的力量,
无需宣之于口,只需静静感受......



2 号工作室
▼

粗糙的材料组合,
让人感受到浑然天成的历史痕迹。


正确把握这些材料的个性特征,
使之与空间特点相吻合,
不但能消除材质本身带来的坚硬和冰冷,
而且会带来不期而遇的惊喜。


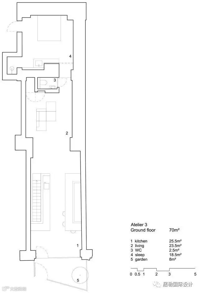
3 号工作室
▼


4 号工作室
▼



所有的空间元素都不加雕饰地呈现出最原始,最天然的面貌,看似漫不经心,实则凝结着设计师非凡的创造力和想象力。









