优雅极致
“世界就像一场想象得到的,种种颜色的奢华盛宴。树木的新鲜、水面的波光、水果的明丽、熊熊篝火的灿烂,这些颜色中的任何一种,都是亲切的......
白是来自混沌中心最独特与鲜明的形象,白是这一独特性最极端的例子。它不是一种混合的实体,它甚至根本就不是一种颜色。”

本案位于成都国际城南天府新区的麓山国际社区,以传统美式生活别墅为主,一些空间结构与国人的现代生活方式存在较大的差别。
在这样的基础和前提下,一个原本600平米的精装美式别墅,变成了如今1000平的现代主义别墅。整体明净通透的白为主调,铺陈开一曲流动的艺术乐章。

入户油画来自画家张木
壁灯品牌:Artemide
将生活放入空间,使之流动起来
推开门一眼既见的美人鱼雕塑,造型优雅知性,迎接每一位来客。


吊灯品牌:EICHHOLTZ
白色蜿蜒而上的楼梯,经过了去芜存菁,摒弃原有楼梯所具有的尖角,修整弧度与线条弯直,只留通透玻璃与哑光金扶手。旖旎婉转回旋间,仿佛永恒凝固的美好旋律,每一级台阶都是一个音符,每一寸扶手是一段节奏,与钢琴厅形成动静相谐的舞曲。



茶几品牌:Classion
单椅品牌Poliform
钢琴厅作为了承贯入户与室内之间的自然过渡地带,午后的时光在指尖流淌的音符里徜徉,纯净的乐曲萦绕在整个屋子,或轻松活泼,或抒情优美,或浪漫风情,满含艺术生活的热忱。



沙发品牌:Flexform,单椅品牌:Knoll
落地灯品牌:Ligne Roset,西厨灯具品牌:Tom Dixon
油画来自西班牙画家Bea López
客厅依然延续白净的空间调性,白色可以激发人们对于包容力、现代感、高级感等各种各样的联想。这些元素又和谐统一于白色这一色彩中。既是生活的容器,亦是另一种空白的开始。




日常是生活孕育优美意识的温床
日常的仪式感代表着一种心理上的某种锚定,把行动与感觉相联结,在这样做的时候,感觉自然而有静默的力量。在平淡生活中试图赋予行为以特殊的意义,这是对自我生活的专属性解读。


油画来自青年艺术家侯俊杰
餐桌品牌: Casamilano,餐椅品牌:Minotti
烛台来自设计共和
模糊了传统意义上“餐厅”的概念,而是根据特定的生活方式,设计两端主人位,并可同时容纳14人就餐的宴会厅,满足不定期的不同主题酒会派对,营造高级的生活仪式感。拍摄时适逢圣诞时节,于是有了一桌的烛台、松果、彩灯、常青树…一派独特精巧的节日装扮。


觥筹交错间,炉火升腾,谈论与雄辩交相上演,这里是男士的社交场。以天然石皮为局部墙体,精良立体的质地,彰显考究的硬朗气场。
冰雪梦想家北极熊虽只静卧,也不能掩盖其体量与特质所带来的野性与刚烈本性。将空间的场域与特定的生活方式架构于一体,营建差异化独特空间气质。

沙发品牌:Flexform
茶几品牌:Poliform



简单生活的知性和感性
由单纯的两色色块来组合成温暖如初、静谧闲适的主卧室。简单生活的要义,大多数时候在于居住者对空间的体验和互动关系,愈简单愈有生命力。生活的气息也在简单的空间中变得饱满,充满涵义。


床品牌:Poliform,休闲椅品牌:B&B Italia
床头灯品牌:Oluce,落地灯品牌:Flos

少女力Max的房间,所用家居几乎全是温润的圆弧触面,干净一色的墙面与明丽清爽的家饰用品,整面的透明玻璃窗恰好引入无敌的自然景致,让粉与白在日光的晕染下更加婉转可人。

床品牌:Poliform,床头柜品牌:Kartell
吊灯品牌:Flos,梳妆椅品牌:Cor
单椅品牌:FrtizHansen,台灯品牌:Artemide
落地灯品牌:Gubi



为居住成员休闲、交谈、娱乐而打造的家庭厅,成为了家庭成员情感互动的场所,让生活重回本来的意义——完全中性的氛围色彩与家居造型,这里是可容纳多元存在的扩大化公共区。

沙发、茶几品牌:Muuto
单椅品牌:Carl Hansen
落地灯品牌:Gubi


生活轨迹。其实就像“下了一个晚上的雪,第二天清晨醒来时,平坦的街道上,目光所及之处都落满了雪,积雪铺在那里,形成一个蓬松的白色平面,没有人踩过的痕迹。脚踩在松软的雪地上,足迹变成半透明的冰渗透到黑色的泥土里,在雪地上留下一串串脚印,这是我们对于足迹的最初记忆。”
因此,空间保留的点滴记忆,印刻着居住者的一颦一笑。这或许是,人与空间最好的互证关系。
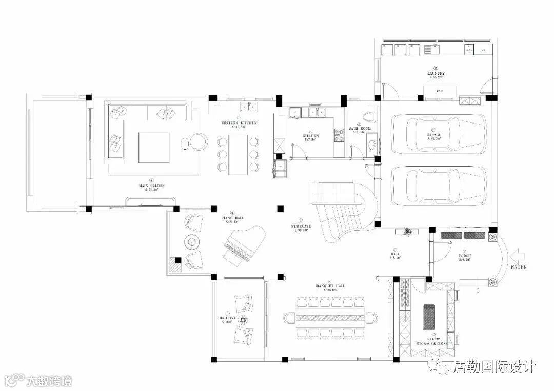
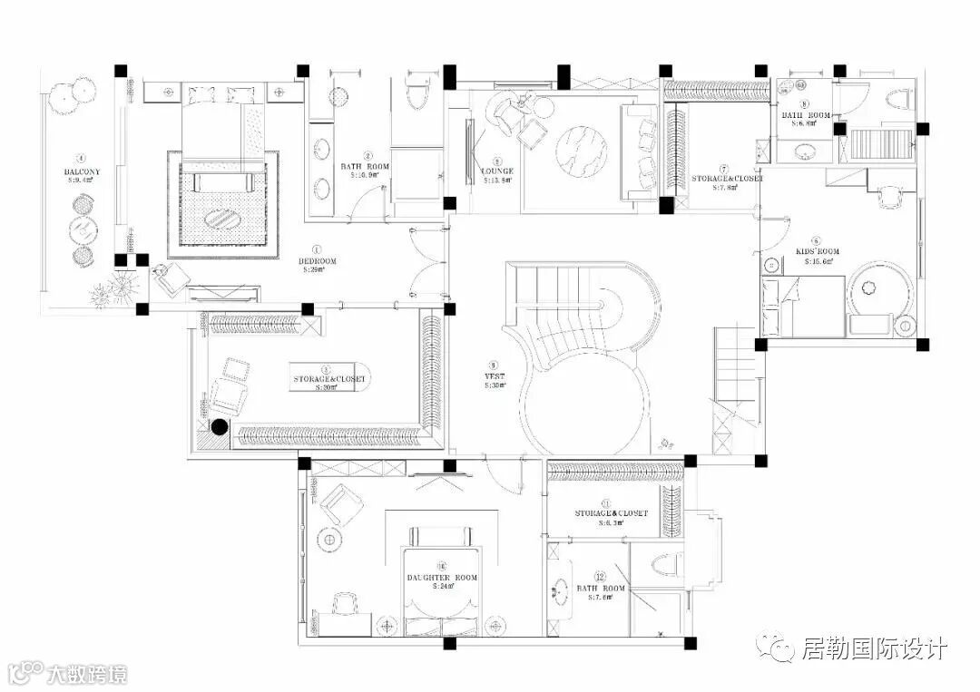
平面图
▽

一层平面图
二层平面图

负一层平面图
阁楼平面图









