
篱落疏疏一径深,树头花落未成阴。
儿童急走追黄蝶,飞入菜花无处寻。
起伏多变的场地条件让项目拥有了丰富多变的产品类型,因地制宜的设计原则让每一款产品具有独一无二的气质。


朱漆大门、花藤果香,晨间薄雾散去洒下的斑驳光影,还有角落里那颗硕果累累的柿子树,儿时去爷爷奶奶家小住的时光总是令人兴奋和怀念的。


当年追逐黄蝶的小女孩已然拥有了自己的家庭,购置的新家传承了这种美满和朴实的情感。城市小区的“一碗汤的距离”已然难得,在这里却能转化为“一步楼梯的距离”,三代同堂、共享天伦是最理想的状态。






花园层是属于老人自己的一方天地,院中石磨土灶、松竹围绕,重现往昔回忆。子女需要举办派对时又可以室内外分割开来,与子女同住一个屋檐却仍保持着彼此独立,随时享受自在时光。



一二层是晚辈们的主要生活空间,宽敞的客厅不仅是谈天小叙的温馨场所,孩子们也可以在等候父母下班共进晚餐的间隙在此玩耍小憩。






外祖母亲手做的饭菜是永远无法忘怀的味道,味蕾会唤醒每一个人对于幸福的感受。


男女主人和一双儿女的房间则在最上层。孩子的卧室布置得各有个性又落落大方充满童趣,大人的房间则是将家的温馨发挥到极致。







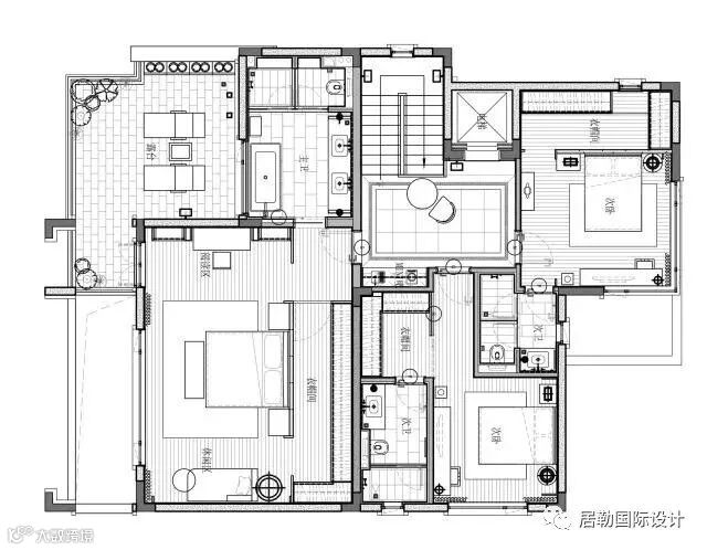
花园层平面图
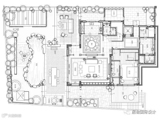
一层平面图
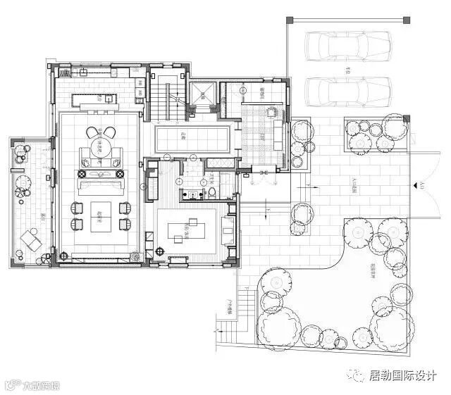
二层平面图

儿时,在花间奔跑,吹拂而来的风是最温柔的记忆。如今,花间堂便是儿时追逐的那只翩翩黄蝶,在回忆中纷飞,在生活中化为更长久的芬芳。




