设计师以总体设计的思考路径,从建筑外观开始,对空间、软装、家具、艺术品、景观逐一梳理,互为调度。

建筑外观(北面)
建筑外观(南面)

建筑地块属坡式地形,里厢面湖,地理条件确定了她的设计物语。从世界回到御所,开一扇窗,融通建筑与自然景观的气韵,是设计师对建筑进行二次改造的着墨点。
旋转楼梯

从负层回到公共生活区,设计师立地挑起一段素白线段,演绎手法顷刻扭转成艺术式的无用之用,宛如一件雕塑装置。拾步而上,可从地层露台进入客餐区。
负层庭院休闲区

叩开门把,走出一步即可放眼烟波,耳闻鸟啼。人的精神状态从户内踏出户外,始知仍有新的可能。
从门厅到庭院早餐区,愉悦的空间情绪一再延伸。阳光洒进,细嗅兰花渗出的香气,脑颅中的氧气分子自在充盈。


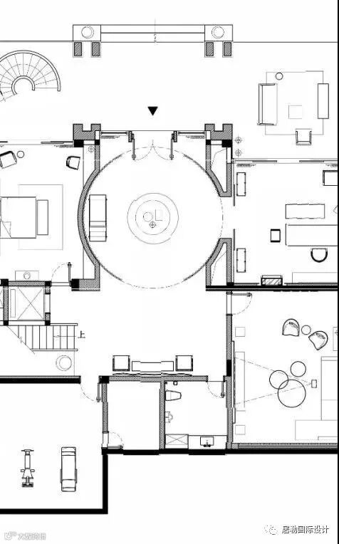
负层门厅
负层门厅是室内与室外之间的气韵枢纽,节奏木线环迴连送,虚合成一个圆形空间。
门厅中央放置定制花座,置入适度的仪式感。女主人喜爱自然,懂得生活,摆弄不同时节的花草绿植是她和自然的对话。



客餐统观
首层为主要的公共生活空间,色调洗脱为中性的灰调。空间融通客、餐、厨三个生活场所,由此,家具成为空间戏法的筹码。


相对、睦邻,间隔、联合,中心、散点,正对、侧倚,配合摆件器物,这人与人,人与物,人与事的关系舒缓妥帖,落于空间。


客厅一角
家具以传统木作精神为里,现代美学范式为表,尊重材料的本质。原木、石材、真皮、纺布、黄铜,致密、温润、光滑、铿锵,地球万物自有其存在意义,不宜过多人工修饰。





西厨天花处理为节奏木线光棚,让建筑与自然间觅得气韵交汇处。餐厅是一家人共同抚慰脏腑的暖调空间,圆形餐桌让彼此的眼神温柔相触。



二层过道
二层是私人休湉空间,设计手法渐趋轻松,清幽气氛游走其中。


主卧
别致的梅花册页屏风在床头缓缓打开,线条蔓延,清幽气息在时光中绽放。

卫生间
化妆间遵照材料本体的美学感觉,再把自然光,四时变化的景致纳入,就会是一个灵性通透的空间。


书房
书房是家人阅读、工作、休闲的地方,以符合主人的需求为要。


