
家,是你与我的御所。容鞣人生风华,回到家,应是此生自在之地。

案子坐落于珠三角一面湖泊的南面,原为一所平凡的乡间别墅。
设计师从建筑外观开始,对空间、软装、家具、艺术品、景观逐一梳理,互为调度。


建筑地块属坡式地形,里厢面湖,地理条件确定了她的设计物语。从世界回到御所,开一扇窗,融通建筑与自然景观的气韵,是设计师对建筑进行二次改造的着墨点。


从负层回到公共生活区,设计师立地挑起一段素白线段,演绎手法顷刻扭转成艺术式的无用之用,宛如一件雕塑装置。拾步而上,可从地层露台进入客餐区。


叩开门把,走出一步即可放眼烟波,耳闻鸟啼。人的精神状态从户内踏出户外,始知仍有新的可能。



门厅中央放置定制花座,置入适度的仪式感。女主人喜爱自然,懂得生活,摆弄不同时节的花草绿植是她和自然的对话。


首层为主要的公共生活空间,色调洗脱为中性的灰调。空间融通客、餐、厨三个生活场所,由此,家具成为空间戏法的筹码




家具以传统木作精神为里,现代美学范式为表,尊重材料的本质。原木、石材、真皮、纺布、黄铜,致密、温润、光滑、铿锵,地球万物自有其存在意义,不宜过多人工修饰。


客厅一角放置当代雕塑,激发空间能量,让空间气场跃动,灵思涌现。



西厨天花处理为节奏木线光棚,让建筑与自然间觅得气韵交汇处。餐厅是一家人共同抚慰脏腑的暖调空间,圆形餐桌让彼此的眼神温柔相触。



茶室是主人以茶会友的地方,主客落座,茶汤缓缓流入丹田,抚慰心灵。主人不喜萧冷的禅风,只期文化气韵自然发生,润木烟石,一器一物,自在法度。


二层是私人休湉空间,设计手法渐趋轻松,清幽气氛游走其中。



化妆间遵照材料本体的美学感觉,再把自然光,四时变化的景致纳入,就会是一个灵性通透的空间。



负一层平面图

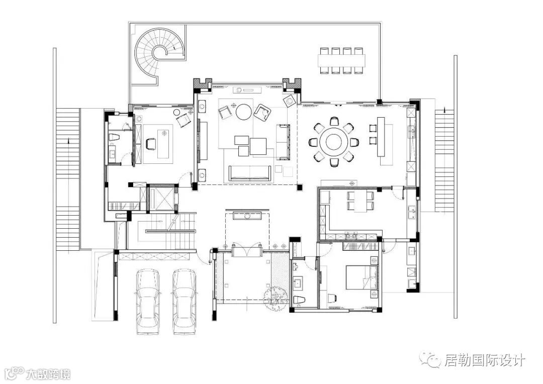
地层平面图

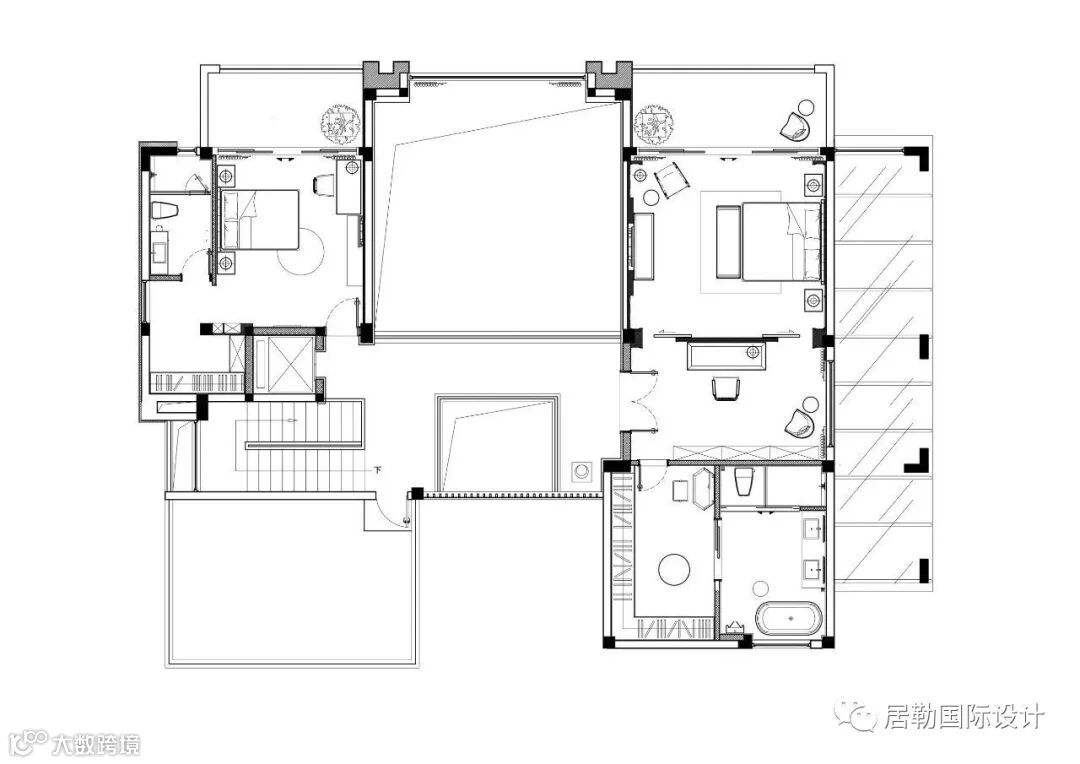
二层平面图

建筑手稿







