围炉 · 夜话

设计师将“人的体验和观感”作为切入点,以产品的全局性思维把控空间,挖掘人最原始的心理层面,让身心与空间产生真正的对话。


取“围炉夜话”的意象作为贯穿整个设计的主题,是为了满足人对温暖最本能的渴望。客厅以大面积的灰色调铺陈叙事,为传统性质的样板空间注入沉静而抚慰人心的力量。


墙上的现代都市风格画作,来自德国艺术家格哈德·里希特。他的“无主题艺术”,同设计师所追寻的“没有特定风格的表达”不谋而合。




当黑夜接替白昼,家人在炉边围坐,一天的疲惫自会卸去。在安宁之中,种种烦闷都会消散。



与客厅连通的厨房是偌大的开敞空间。灰绿色大理石材质岛台,为空间增加了几分细致入微的质感

当一缕清早的阳光洒入室内,窗外的绿植映射出欣欣向荣的生命力量,在这里,一份温馨的早餐预示着新一天的开启。




大面积玻璃石材工艺,为浴室空间营造明亮整洁的空间氛围。不加赘余的线条,是对物料本真的尊重,传达屋主人对于美、真、淨的偏爱。


极简的风范,来自对纯粹、直观自然之美的执念,让低调的美感充盈在每一个角落。


女孩房间是米色系和治愈粉色系的巧妙结合。波普风的拼接地毯和挂画,一改常规女孩房温柔乖巧的印象,进而彰显的是更为大胆活泼的形象。



每一个精心挑选的摆件,都在各自表达着情绪,承载着有关现在和未来不可言说的小秘密。


夹层花艺区,是日常为精神供给养料的狭小空间。墙纸饰面吸纳自然的色彩、肌理,在其中打理各色花艺,定气凝神间纯粹的观感被无限放大。


拾级而下至地下层空间,这里是一切隐秘的汇合处。




深色木框架构建了坚实的背景墙。漫反射的灯光自上而下投射,映出每一件物体的质朴模样,为幽暗空间营造神圣气氛。


透过一条火焰摇曳的狭长缝隙,可以瞥见另一引人入胜的画面。从侧面走道绕过,便能收获豁然开朗的畅快感。


天光自高处挑空倾泻而下,石墙似一块大画布,光线如同水墨晕染的层次向下渐而浓重。


白色沙发是空间气质的具象化身,自有一股不食烟火的灵气。另一侧墙面陈列着马术用具,和悄然伫立的经典藤编椅自成一体,是对贵族精神由内向外的凝视。

当炉火的白噪音和焚香味道交错,听与嗅觉的界限被打破,居住空间于人的奥义将秘而不宣。“活在当下”的畅快,便能触发内心本真的感受。
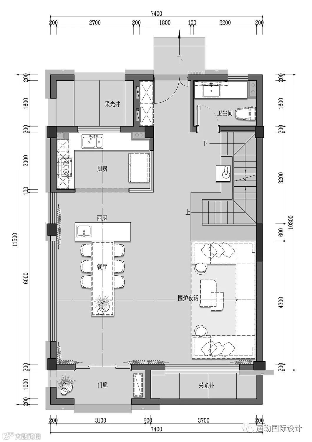
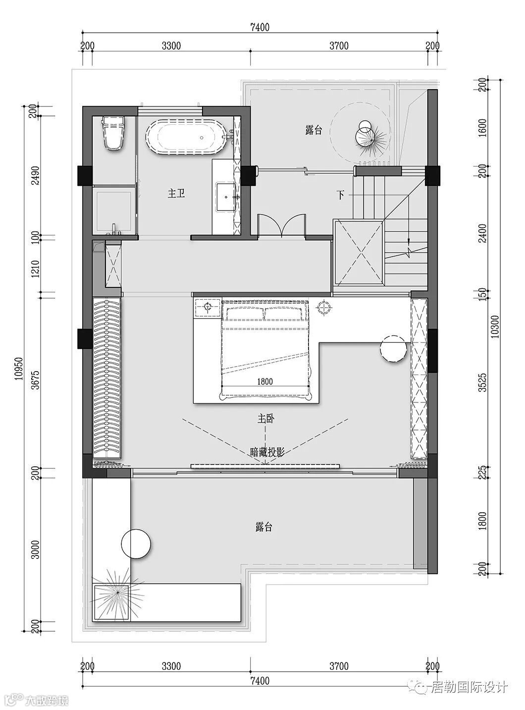
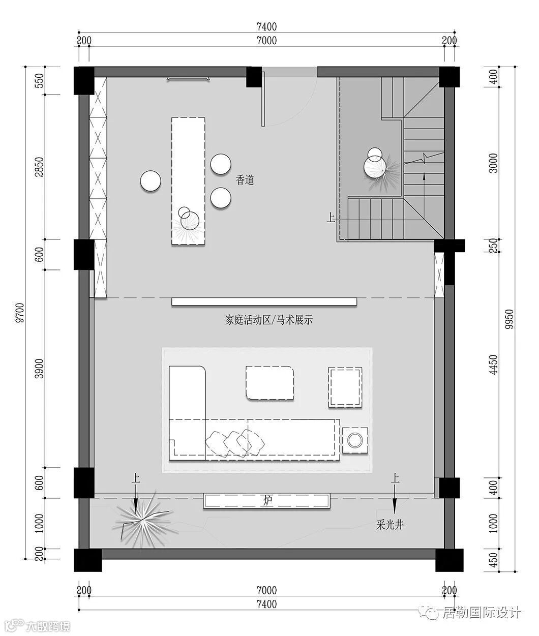
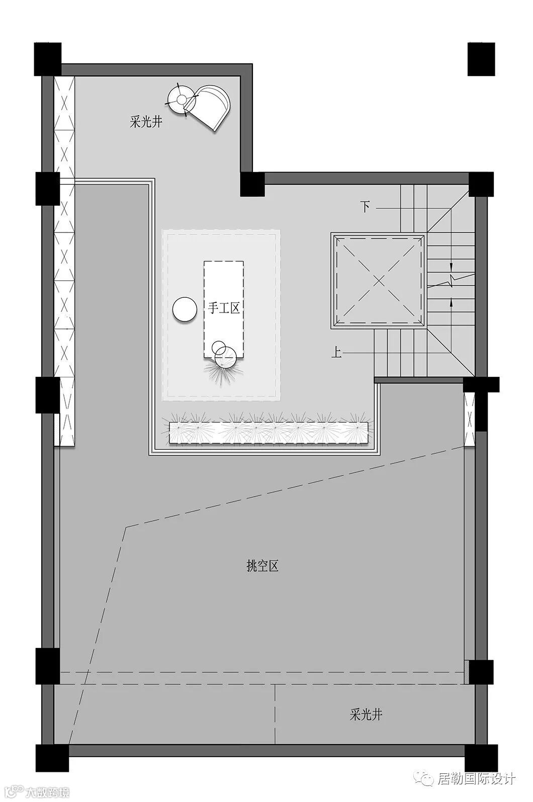
平面图

一层平面图

二层平面图

三层平面图

地下一层平面图

夹层平面图


