本案是一套932㎡的超大独栋别墅,坐落在北京昌平区,分为四层空间。地上三层是私人活动空间,而地下一层则是公共娱乐空间,私密和娱乐性十足。
▼犹如森林公园一般的庭院
从入户大门,进入庭院之中,可以看到,处处都是茂密的草坪,围墙下还种植了许多大树,随风摇曳。



▼入户大门,气派古典
推开别墅的大门,第一眼就是古色古香的玄关空间,一组青松+太湖石雕塑组合的迎客玄关造景,瞬间提升了入户的气派之感。

▼客餐厅设计,开放式布局
一层的客餐厅空间,利用了开放式的布局,让原本就旷阔的空间,显得更为自然开阔。




▼茶室设计,禅意悠然
而步入茶室空间,可见禅意之雅。角落之中,布置了枯山水元素,再搭配半透明的禅式门帘,自成一派风雅。



▼厨房设计,中西结合
厨房空间的设计,以中西结合为主,一组西式岛台作为操作台,被设置在外边,而右侧的小房间,就是中式厨房。


▼餐厅设计,复古之调
步入餐厅空间之中,映入眼帘的是一股复古风之美,复古之绿+圆餐桌的形式,打造了餐厅之中的天伦之乐。


▼地下一层,私密空间
而地下一层,则是富豪私密的空间,这里可以会客,可以品酒,可以聚会,处处都是高级之感。






▼卫浴空间,高级典雅
而卫浴空间的设计,在空间上就媲美普通人的卧房,超大的空间,让人都察觉不到,原来这里只是一个卫生间而已。


▼卧室设计,经典奢华
卧室空间被设置在二层空间,在设计上更是以雍容华贵之美,打造了经典奢华的日常,即便元素不多,却依旧让人感受到满满的高级感。





▼儿童房设计
粉色之调的儿童房,是专门为女儿设计的梦幻小空间。




▼梦幻的儿童区
在这处阁楼上,天花板上的星光和星云,显得特别梦幻,这是属于孩童的小小世界,太让人羡慕了。


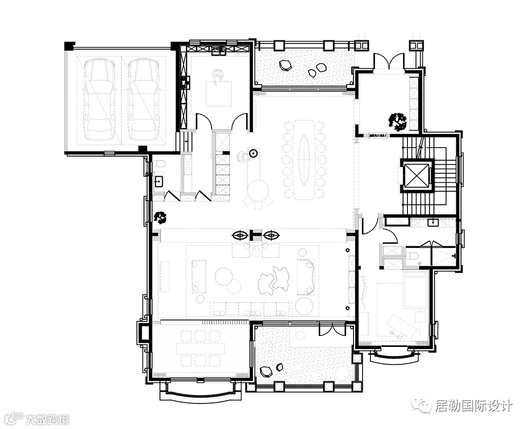
▼设计图纸
负一层平面设计图

一层平面设计图

二层平面设计图

三层平面设计图
-END-







