如浓稠的墨,如荒野的夜空,神秘低调的黑曜石,即使受强光照耀,也毫不骄纵,仍然保留着一股坐看风云的稳重且高贵的雍容气度。现陈列于纽约大都会艺术博物馆的一条黄金与黑曜石制成的项链,被认为制作于公元前1810年至公元前1700年的埃及,惹人遐想。

设计师受神秘的黑曜石启迪,将之与运筹帷幄的高净值商务人士联系起来。位于全国宜居城市珠海西湖湿地的保利天和“屿墅”群组中,黑曜石别墅为面积很大的一个。为突出其无与伦比的体量,设计师深度挖掘居住者的生活追求及品位所在,借黑曜石的品质感充分显示空间的尺度和稳重,为居住者打造高端酒店、会所式度假湖居。
保利九洲天和别墅
【Basement】
...

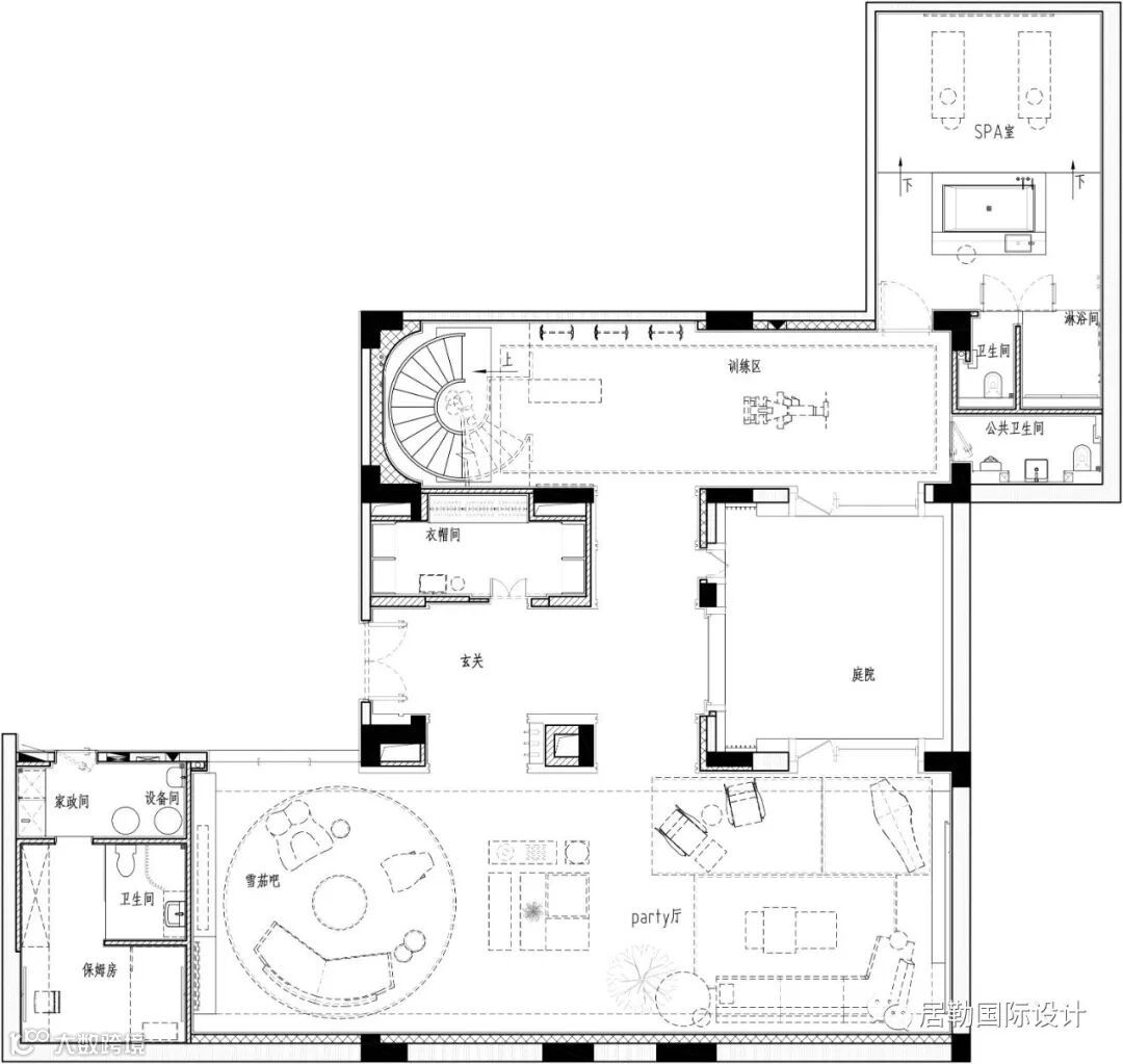
地下室平面图
地下室作为整个别墅的很大特色,兼具了各项休闲度假的居家功能,体现出名副其实的奢华内涵。整个地下空间充满艺术、时尚气息,其本身就是一则精雕细琢的艺术品。

会客厅分为雪茄区和Party区。Party区采用黑灰金红四色的搭配,采用不同的纹路来丰富整个空间的视觉。高低错落、造型别致的家具布置,连同兼具Mini吧的微型景观区,大可广邀好友,畅意派对。



雪茄区中,艺术设计感极强的家具或聚拢或分散,呈现适合密友轻松交谈的舒适氛围。



运动训练区已经成为豪宅类豪宅的新型常驻标配。黑曜石别墅的运动训练区十分宽敞,以黑金色调包裹,透露出别样的力量感。


旋转楼梯改为钢结构以便塑造出更为轻盈的造型。参照跳水运动员跳水的姿态而创作的原创艺术作品《上善若水》分天地两部分,借旋转楼梯彼此呼应,遥遥相连。“天水”与“地水”的结合,平衡阴阳,包罗万象。



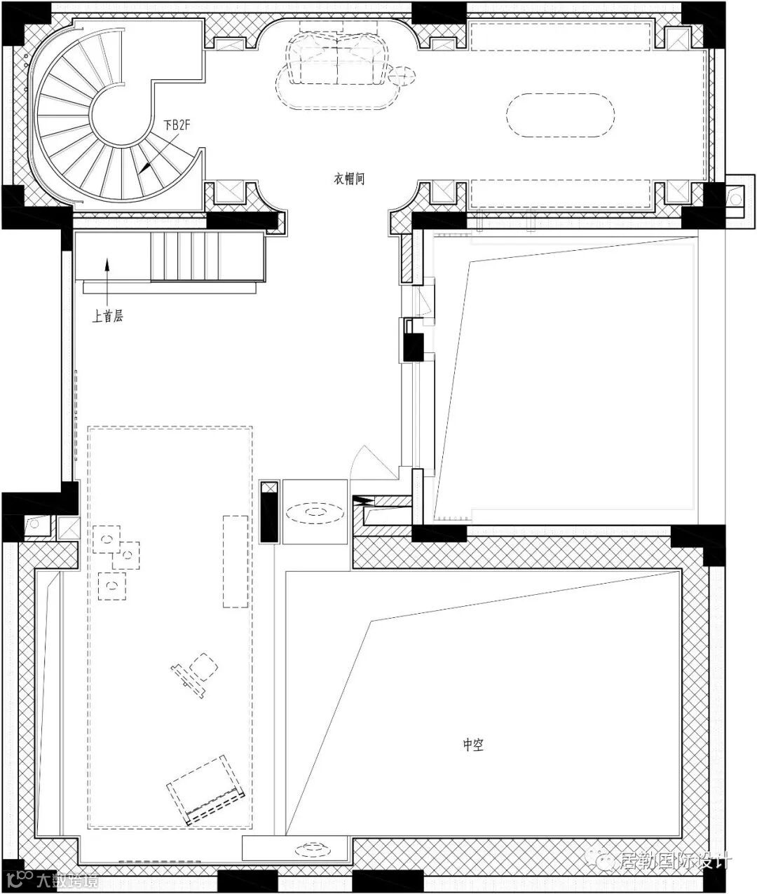
夹层专属于女主人的瑰丽幻想,保留金色为主色调,采用专卖店、艺术画廊的灯光布置的思路,与其他空间形成鲜明的对比,以强调其自身的独特性,从而呈现出一个散发着高贵和奢华的艺术空间。

夹层平面图



绘画作品《洋流》离楼梯间很近,其上蓝色繁杂的波纹象征海洋。流水汇聚,海纳百川。粼粼波光象征着大海的波澜壮阔,更象征着生命的力量和艺术。


【First Floor】
...

首层平面图
楼梯间由格纹覆盖,黑色的衬托下宛如定制西装上细密的针脚。置于玻璃隔档后的艺术陈设装置,捕捉水滴将落的瞬间,雕塑的双手虔诚合捧,凝固并升华那一刻的张力,虚实结合的设计颇有几分神秘感,寓意静水流深,宁和致远。



首层客厅、餐厅均运用自带独特金属光泽的黑曜石定义及衬托空间奢华气质。复合回环的动线组合,力图在动静分离的空间之中创造丰富的交互和呼应,真正实现一步一景、借景入户的豪宅级居住体验。
空间各处隐藏式灯位设计令照明起到烘托氛围的作用。采用酒店布灯方式重点照明,引导视线停留在装饰元素上,从而营造富有情调氛围的暗调体验,烘托高贵神秘的特性。



中西厨的结合体现了高净值人士的休闲度假的期许。餐厅结合中西厨,适用于多种使用场景,满足主人随心所欲为家人朋友烹调美食的需求。



【Second Floor】
...

二层平面图
宽敞的主卧拥有横跨两个开间的尺度。现代化大都会风格之下,空间多采用笔直锐利的线条,呈现出一种简洁又不落俗套的干练气质。



若即若离的隔断配合丰富而精准的照明手法,在点线面之间创造出千变万化的功能场景,更在无言中诉说着主人的个性和追求。


主卫中,设计打破陈规,将淋浴间与卫生间置于整个主卫的中央,覆以大理石作背景墙,又加黄铜金属位塑造框架,创造出趣味性与时尚性兼具回环动线和视觉焦点。围绕“中岛”结构,再整合步入式衣帽间、洗漱台和浴缸区,令整个主卫突破固有的形制,焕发出全新的空间气质。


儿童房在类似的“黑曜石”质感基础上,以黄、绿诠释宁静、动感的氛围,贴合两个孩子截然不同的性格。




设计大胆融入休闲度假、艺术运动的理念,综合呈大都会风格下空间设计的张力,彰显都市新贵神秘、高贵、锐利、干练的一面。赋予生活空间与品位空间不同的情趣,配以高级灰的主色调及皮革、石材等材料再现高端人士的生活场景。围绕大面积沉着,局部闪耀的设计思路,黑曜石别墅兼具低调、神秘和充满格调的品质细节,充分显示空间和主人的稳重和高贵。
那些与都市同步发展起来的新贵们,以一份深邃含蓄游走在时代的前端,避锋芒又保有自身的格调,凭石寄意,神秘奢华如同石头中的脉络,丝丝渗入生活的日常。







欢迎关注居勒集团旗下微信公众号







