搜索
首页
大数快讯
大数活动
服务超市
文章专题
出海平台
流量密码
出海蓝图
产业赛道
物流仓储
跨境支付
选品策略
实操手册
报告
跨企查
百科
导航
知识体系
工具箱
更多
找货源
跨境招聘
DeepSeek
首页
>
在平衡中赋予变化,在留白中抒绘美学
>
0
0
在平衡中赋予变化,在留白中抒绘美学
居勒国际
2020-07-14
1
导读:在平衡中赋予变化,在留白中抒绘美学
阳光城隆恩丽景湾坐落于有着“世界陶瓷之都”美誉的福建德化,德化以瓷闻名,千年间由兴到盛,至今传承未断,人文底蕴延绵不绝。作为阳光城品质焕新的“丽景系”,丽景湾
近邻
在建的国际陶瓷艺术城、万达广场等优越配套,致力于以匠心与品质追求,打造德化人居新标杆,启幕城市至臻地脉之上的人居新时代。
方案手绘图
效果图
01
解构建筑
——与自然、文化相连
外观
建筑师路易·康曾言:“设计是一种因地制宜的选择行为,空间之美即建筑的真正意义。”瓷,作为建筑与室内的构思之源,在形与相、物与象的重构中融入环境,在镜面般水景的倒映下,建筑室内的生活场景一一浮现,构建起清简而悠远的外观视像。
前厅
设计师将古建瓷窑艺术化解构,简化攫取其中的历史文化元素与形制,纳入设计元素之中,传达的是一种古今相协、简繁共映的艺术情境平衡。红砖作为一个个艺术单元,以单元重复的形式,营造密实或孔洞,垒就建筑的韵律感与形式美,意简而境深。
02
引入光影
——让空间拥有完整意境
沙盘区
设计师深信自然是绝妙的表演者,将自然之形信手拈来,在色彩更迭、渐变、交叠的艺术演绎中,引入光影的点缀,形构出空间的完整意境,构建空间介于物质与精神之间的深层奥义。在虚实之间,在空气、光影和非物质性的元素融汇下,空间呈现艺术价值与商业价值的精妙平衡。
洽谈区
光与影的视觉、形式、明暗等关系,赋予建筑、室内空间以曼妙多变的可能性,意境纷然。无论是对自然的描摹,抑或是对人文的探索,均赋予观者抽离物质之外的潜在体验,清逸成趣。
水吧
水吧临窗而设,透过清透玻璃和纯白窗纱,与户外自然相接,意境空灵而清雅。以
大理
石体块组合的水吧台,肌理中自带流动的艺术张力,在几何灯饰与自然光的双重点染下,营造出一种心自旁灵的精神意境,契合自然的美好。
03
器物艺术
——由器到艺的美学重叠
VIP室
设计师用具有
时间
性和空间性的元素来创造自然的场景,从器物的层面升华至艺术的境界,为之注入灵动的气息,让场域别具节奏感、层序性,诗意沁然,静宁美好。
洗手间
在阳光城隆恩丽景湾一案中,以解构建筑的深度蕴涵、包容万象的自然美学、游刃自如的生活哲学,渗透在空间的每一个细节之中,在平衡中赋予变化,在留白中抒绘美学,营造艺术与精神共生共融的灵妙意境,仿佛自然的诗意从建筑内部生长而出,具有强烈的感染力。
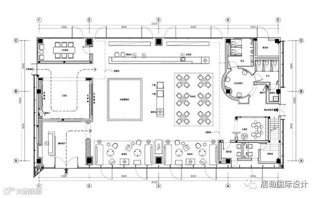
一层平面图
欢迎关注居勒集团旗下微信公众号
【声明】内容源于网络
0
0
居勒国际
提供国际原创设计师作品、最新时尚家居信息、国内外优秀设计案例分享及各类国际一线材料品牌、软装元素
内容
402
粉丝
0
关注
在线咨询
居勒国际
提供国际原创设计师作品、最新时尚家居信息、国内外优秀设计案例分享及各类国际一线材料品牌、软装元素
总阅读
90
粉丝
0
内容
402
在线咨询
关注