
来源:新微设计(land-2013)
· 顶层复式设计
无论世界哪座城市
豪宅的发展,都成为先进居住理念发展进化的表现
从曾经的郊区大别墅,到城市大平层
豪宅型制也在一步步迭代新生
顶层复式 得天独厚的开阔视野
开启了另一种竞逐的生活方式

谈及顶层复式户型,大多人爱恨交加,爱它的独特户型、价格优势,恨它的暴晒难散热以及积水问题,解决这些问题需要在设计上要扬长避短,发挥它的最大优势,翻看优秀的设计案例我们不难发现,他们都有以下共同点:
发挥挑高优势,营造恢宏大气之感。同时也可以将挑高墙面进行个性化设计
善用艺术化楼梯,打造空间亮点
抛弃复杂装饰,简化视觉要素,营造出高级格调感
巧用大面积玻璃窗,增大采光通风效果
下面我们通过5个不错的顶层复式案例一起学习下~
01.
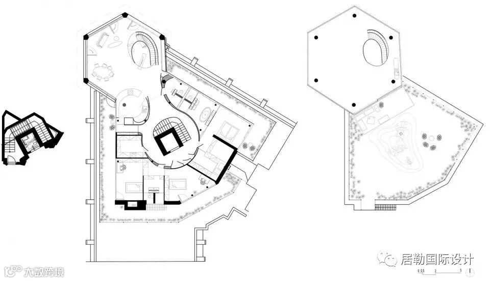
2400m²超奢顶层复式设计

Jaffa Penthouse位于以色列4000多年古城雅法的顶层复式项目,其所属项目Jaffa Hotel & Residences由Ramy Gill、John Pawson、Pitsou kedem、Baranowitz Goldberg等著名设计师联手合作打造,由纽约地产商RFR Holding投资。

△建筑外立面
顶层复式的设计主要由两位极简主义大师John Pawson、Pitsou kedem及Baranowitz Goldberg联手操刀,John Pawson负责建筑设计,后两者负责室内设计。

△4000多年历史的雅法古城

设计灵感源自于地中海朴质的自然环境及特拉维夫白城的包豪斯建筑,建筑及室内设计极力表现出朴质、自然与奢华,这也是当代奢宅最明显的气质。

△大理石造型墙设计草图
设计师为了回应雅法古城悠久的历史,延续建筑设计的格调,在室内设计部分以当地石材打造的艺术造型墙为亮点之一,呈现奢宅不可或缺的艺术性。

整个顶层复式共2400m²,其中室内面积约1400m²,屋顶花园1000m²。共设有5个完整的卧室套房,另外还有双餐厅、健身房、书房、空中楼台等空间。该顶层复式的市场售价大约6000万美金。

△客厅
Pitsou kedem、John Pawson 两人均是以白色极简设计的当代建筑师,而Pitsou kedem更是世界上最著名的豪宅设计师之一,至今,由他操刀过的极简豪宅已超过300个。

△石材拼接艺术
极简的建筑、朴质的木地板、古朴的艺术石墙、简约的家具,呈现当代极简主义最朴质的奢华本质。

△餐厅

△早餐厅

△厨房
该顶层复式采用了双餐厅的设计,厨房品牌是德国著名的Bulthaup,卫浴则是意大利顶级品牌Boffi,产品设计出自设计大师Piero Lissoni之手。

△起居室

△书房

△休闲室
主人房套间堪称世界最美的卧室设计,配有奢华的大阳台,地中海最美日落就在窗外,这是一种何等的享受,绝对的视觉盛宴。

△主卧

△主卫

△洗手间
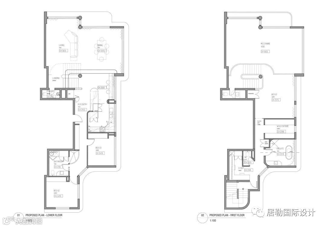
捷克顶楼公寓设计




△起居室

△顶层视野

△开阔的玻璃墙面引入城市全景


△轴测分解图

△围绕着电梯和入口楼梯的钢制隔断


△剖面图


△储物墙细节

△浴室


△从露台望向卧室

△屋顶花园

△平面图

△剖面图

△地暖系统示意图(左) 通风示意图(右)


进入走廊的另一侧,走道上空无一物的布局让人心生平静。从走道至客厅,设计师都最大限度的发挥了极简的设计理念,让居住者在这个生活空间里摒除杂念,用心感受。

浴室中放置一个独立浴缸在可俯瞰海浪的宽大窗户旁,而另一个浴室里,沐浴间则用玻璃砖嵌入,与大厅的设计巧妙的联动在一起。

芝加哥顶层公寓

这套芝加哥顶层公寓是专为两名艺术收藏家的家,由 Wheeler Kearns 建筑师事务所与 Symbiotic Living 的 Sharlene Young 合作完成。面积为 590㎡,包含了客厅、餐厅、家庭房、起居室、主卧、次卧、儿童房和两个办公室。

设计的独到之处是对空间动线的仔细考量以及高级材质的运用,力求纯粹、精致又能烘托出空间的气度与雅致。

艺术家还希望家中拥有大量的展示空间,让每一件藏品能以最佳姿态出现在人们眼前,同时还要有能举办多达 75 人的慈善活动空间。


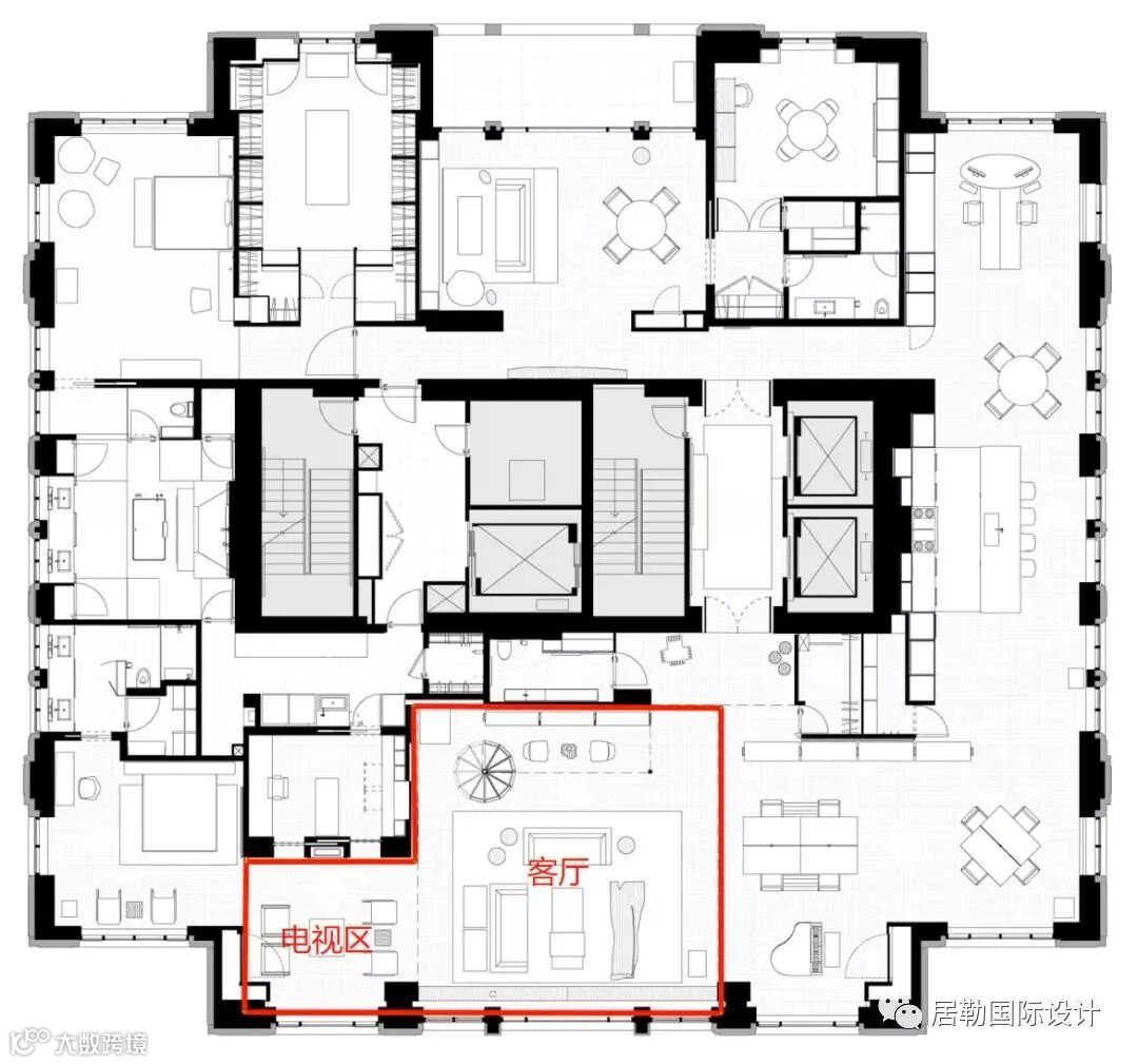
客厅有别于大部分顶层公寓设计,没有奢华气派的土豪范,也没有耀眼绚烂的色调,而是走起了更有韵味的工业风设计。

公寓原本是双层格局,但为了营造更开阔的视觉观感,设计师在客厅处打通了上下层,形成一个楼高达 6.7 米的大厅,营造出宽敞明亮的环境效果。


收藏家丰富的艺术品中也包括了许多中世纪的家具,其中有 George Nakashima 长椅,Harry Bertoia 的雕塑和 Paul Evans 的家具等作品。

在客厅的沙发后方设有一个阅读区,大型的定制书架附带专用螺旋楼梯,远观朴实,近看精美。

书架旁边利用丰富的艺术收藏品来打破墙面的单调,再辅以工业风细节、胡桃木地板和柔和的大地色彩,整个空间充满艺术气息。

旁边的电视区,相比于客厅的开阔,这里给人的感觉则是布局更加紧凑有温度。

壁炉上方的挂画内隐藏着一个内嵌的小电视,这一巧妙设计充满趣味性,格外引人注目

餐厅与厨房中每一件家具都是特别定制的,为室内增添了非凡质感。



办公区的设计比较简单,天然造型的木质办公桌,搭配小方格木地板,上下呼应,画面和谐,呈现出另一种奢华气质。




主卧的旁边是一个相当大的衣帽间,开放式的衣柜储物功能强大,能够存放更多衣物,中间还有一个首饰柜,顶部用一盏前卫的吊灯装饰,更显腔调。

家庭套房是一个单独的活动室,一家人可在这观看电影进行互动。电视柜以红色作为背景,打破单调之余又提升了质感,隔板上摆放着的是屋主收藏的娃娃,做装饰点缀之余又恰到好处的展现了别样的空间艺术性。




手法自然的将窗景接壤于室内,并使窗景得到最大限度的利用。在浓墨重彩的地方反其道而行,使用漫不经心的方式,更能营造出一个轻松有温度的环境气场。


客厅通过高挑的设计来接连不同的功能空间,使整个两层的空间是流畅灵动的。大量的运用开放式的空间构建法则,通过线条、立面、材质、色彩的雕琢,用意识形态和自然的动线设计来完成空间的区隔。









一个很不错的设计号
↓↓↓








