搜索
首页
大数快讯
大数活动
服务超市
文章专题
出海平台
流量密码
出海蓝图
产业赛道
物流仓储
跨境支付
选品策略
实操手册
报告
跨企查
百科
导航
知识体系
工具箱
更多
找货源
跨境招聘
DeepSeek
首页
>
3DMstudio.eu | 343㎡两层私宅,高级品味
>
0
0
3DMstudio.eu | 343㎡两层私宅,高级品味
居勒国际
2021-08-26
1
高级质感
3DMstudio.eu新作,面积311㎡两层住宅,原木色和浅灰色混合搭配,温暖柔和的视觉,符合房主的自然简单的需求。
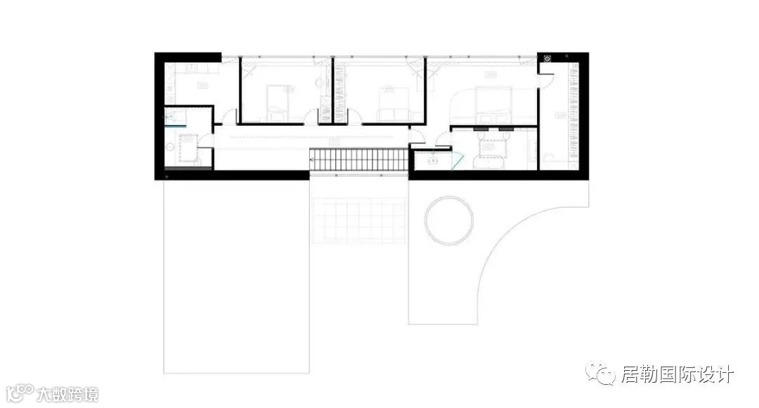
平面图
▽
温润的木质饱有细腻的纹路,低饱和度的色彩搭配,间以跳色加以调和,柔软与刚硬交错糅合,在光线的映照下呈现出自然美观的光泽,现代的简约与克制在这方寸之间缓缓展现。
内容策划 / 米兰设计之旅
原创内容,公众号请按规定转载
(文章发布24小时后才能转载,必须在文章开头添加本公众号名片),
不支持其他平台任何形式的转载。商务合作:余小姐13535331549
一个很不错的设计号
↓↓↓
【声明】内容源于网络
0
0
居勒国际
提供国际原创设计师作品、最新时尚家居信息、国内外优秀设计案例分享及各类国际一线材料品牌、软装元素
内容
402
粉丝
0
关注
在线咨询
居勒国际
提供国际原创设计师作品、最新时尚家居信息、国内外优秀设计案例分享及各类国际一线材料品牌、软装元素
总阅读
90
粉丝
0
内容
402
在线咨询
关注