搜索
首页
大数快讯
大数活动
服务超市
文章专题
出海平台
流量密码
出海蓝图
产业赛道
物流仓储
跨境支付
选品策略
实操手册
报告
跨企查
百科
导航
知识体系
工具箱
更多
找货源
跨境招聘
DeepSeek
首页
>
北欧风格,有格调的设计!
>
0
0
北欧风格,有格调的设计!
居勒国际
2021-10-15
2
自然舒适
Taras Belik新作,一套北欧风格的
私人住宅
,以简洁手法打造自然、质朴典雅的空间,既艺术又有格调并带有明显的设计气质。
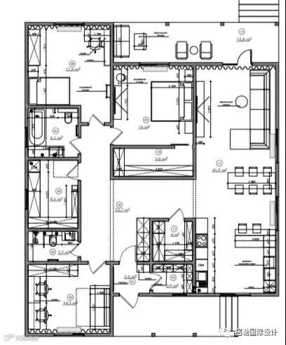
平面图
▽
设计师采用了自然轻巧的配色,结合质朴的材料,让整个设计具有脱俗的品位。
内容策划 / 米兰设计之旅
原创内容,
公众号必须按规定转载
:文章发布24小时后才能转载,一定要在文章开头添加本公众号名片,并注明“本文转自米兰设计之旅(ID:Milano04)”,
不支持其他平台任何形式的转载。
商务合作:余小姐13535331549
一个很不错的设计号
↓↓↓
【声明】内容源于网络
0
0
居勒国际
提供国际原创设计师作品、最新时尚家居信息、国内外优秀设计案例分享及各类国际一线材料品牌、软装元素
内容
402
粉丝
0
关注
在线咨询
居勒国际
提供国际原创设计师作品、最新时尚家居信息、国内外优秀设计案例分享及各类国际一线材料品牌、软装元素
总阅读
90
粉丝
0
内容
402
在线咨询
关注