提示:点击上方"北京紫名都装饰"↑更多惊喜等着你......

对爱书的人来说,
家意味着什么?
一个舒适的看书空间,
一个可以到处安放藏书的空间。


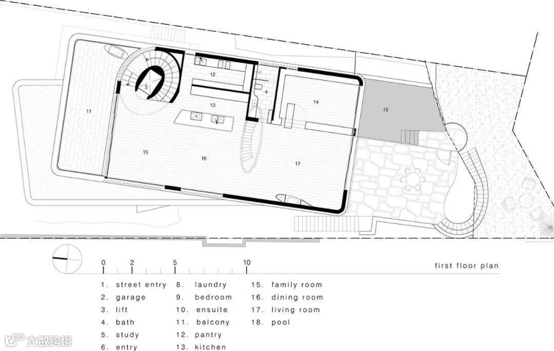
这栋位于悉尼北海岸的别墅是意大利设计师Luigi Rosselli为一个爱书的商人和他的妻子设计,陡峭的悬崖地形和沉积物构成岩石的地形让建筑师选择设计书屋顶层与道路的高度,向下挖掘地面,获得车库和地下走廊。
建筑的维多利亚式别墅的形象面临着澳大利亚人的新生活方式,他们选择住在这里享受非凡的自然环境,丰富的植被和俯瞰海洋。


建筑结构就像一堆书随便放在桌子上一样,地面上的每一层都是错开的,并且与景观的位置不同,提供了一系列的富有生机的视角。
别墅的主要空间有面向大海的客厅和游泳池,有四间卧室一个书房,一个家庭影院和洗衣房。


Luigi Rosselli了解这个地方的记忆,并通过其建筑,通过不断引用历史悠久的木结构,玻璃阳台,建筑和自然之间的交融,将它带到此时此刻。
现场浇注的水泥具有圆形边缘并保留了模板木材的纹理,试图保留翻新时的“矛盾”,与建筑周围郁郁葱葱的栽培的植物呼应。带壁炉的客厅和Robyn Cosgrove丝绸地毯“包裹着”周围的家具。美国橡木木地板平衡了客厅材料的质感:坚硬的混凝土,柔软的'S'曲线窗帘和木材书架。





图书馆,书架的概念,对于顾客的生活至关重要,建筑师将书架和书房空间结构可视化为与“土壤”不同层次相一致的层次叠加。
在壁炉对面,通过一个可移动的书柜,人们可以进入书房,书架形成了这个房间的墙壁。蜂窝状亚克力书架会在夜间发光,帮助寻找所需的书籍。






餐厅和厨房非常宽敞,可以容纳另一间面向景观的客厅和阳台。客户在开放而通风的观景台上喝茶。厨房的材料延续了建筑的选材,橱柜的表面仿佛是从地面长出,同时建筑师还选取了光滑的白色镀漆表面形成强烈的对比。
黄铜楼梯也是厨房和起居室之间的微妙分隔,同时也是厨房的屏风。在背景中,有Carlo Columbo和Catellani + Smith Lederam的灯具设计,和Poliform 的 Clipper桌子。




从椭圆形的楼梯拾阶而上,马上就被自然光吸引,一边是粗糙的异形混凝土芯,一边是光滑的石膏,另一边是喷漆墙。这个空间的定制的高弧形门引向卧室和浴室。实现复杂形状和细节的精细让空间更加出彩。








-end-
扫码关注我们

