提示:点击上方"北京紫名都装饰"↑更多惊喜等着你......
看看这6个案例
设计师的脑细胞都是这么被消灭的
设计方法
设计师经常能收到朋友的邀请
帮忙做个设计
觉得设计就是简单地画张图
……
1
一个平淡无奇的健身房
如何变得炫酷有型

设计师将房间里的卫生间
作为空间的核
▽

以核为中心改变进门方向
人的动线得到重新组织
▽

通过曲面将空间柔化
变得动感十足
▽

模型分析
曲面墙的错落有致
空间的功能性得到延展
▽


切割的弧形木工板
作为曲面墙的龙骨
▽

施作过程
▽

房间进门的角度的调整
带来的视觉变化
▽

金属曲面墙
深蓝色喷涂
穿插的灯具
▽


卫生间外面增加了饮水器
▽

卫生间墙面采用
明装金属板铺贴
用一张钢板做成
洗手盆的台面
▽


改造后
这么炫酷带感
▽


2
一室一厅的公寓房
变成极简风大套房


一室一厅的格局
卧室将餐厅的采光和视野
完全遮挡
▽

改造后的平面
拆掉房间的隔墙
让视野最大化
▽

卫生间采用玻璃做隔墙
私密性成了关键
▽


卫生间正对餐厅部分进行遮挡
墙面有极简风格的装饰隔板
▽

衣柜门成了厕所门
▽

侧面玻璃运用电磨砂玻璃
起到了视线的阻隔的作用
▽

轻巧的隔板需要
在墙体里做钢板预埋
▽

超简约的家里
每一处装饰都点到为止
▽




卧室没有隔墙
用一块磨砂渐变玻璃做背景
▽







3
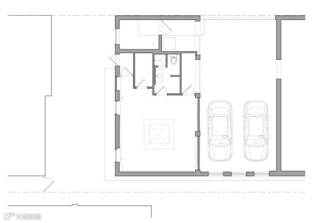
车库边的办公房
变成了工业风的Studio

原来无感的办公室
▽

原建筑平面
▽

用玻璃隔墙替代
车库的墙体
拓宽了办公室的视野
▽



通过模型仔细研究
家具的摆放方式
▽

办公隔断采用
两种规格的金属孔板
出现特殊的视觉效果
▽

施工过程
▽

刻意暴露了砖墙面
和屋顶的木结构
让空间调性发生极大变化
▽


黑色工业风的studio
▽

家具的布置经过巧思
▽


双层金属孔板隔断的视觉效果
▽

设计让平淡无奇的空间
变得这么帅气
▽



4
设计师要画分析图
单身公寓

作为一个单身公寓
屋主喜欢开放式家居环境
▽分析图
设计师通过玻璃的反射
让平面布局让空间显得更宽敞
▽立面图

▽改造前

拆除了原有的房间隔墙
取而代之的是玻璃隔墙
▽完工后

一进门的视觉
玻璃隔墙反射了室外的景色
让豁然开朗的感觉加倍


完工后线条简洁的室内环境
从空间到细部每一处都干净利落


▽卧室施工照片

设计师设计了一个特别的大衣柜
头顶不到天花下不沾地的视觉效果
下部用钢结构作支撑
上部用木房固定于顶上

完工后的效果
不仅只有简洁虚空的感觉
天花顶面与柱面形成一个完整立体构成

▽卫生间施工照片

通过抬高地坪与卧室的地面做区隔
设定一个小小的坡度让滴水不至于留在外面
开放式的卫生间即使远离窗户的浴室
也能看到外面的景色

5
设计师要做模型
扩建的家

当2个孩子出生后
原来的家已经显得太小了
改造的关键是扩建后的家
让进入地下室的动线发生了变化
▽平面图

从客厅通往花园的楼梯
太过狭小而且坡度偏陡
经常让顽皮的小朋友摔倒
▽纸板楼梯模型

先用纸板构思简单形体
确定哪种是最合理的
▽剖立面图
设计加大了整个楼梯平台
这个平台作为连结院子与室内的灰度空间
▽木质楼梯模型

挑空的平台还有一个用处就是
增加了一个从院子进入地下室的流线
▽木质楼梯模型


用杉木板作为楼梯踏步和扶手的材质
用统一的材质更显得整体大气

▽施工前后的比对及过程

6
设计师要做实样
办公室的走廊

科技公司办公室太过老旧
想在入口和走廊处增加一种前卫感
让办公室焕然一新

公司成立于2000年
并且位于大楼的20楼
设计师巧妙地利用这两个数字的巧合

用什么材料表达数字的概念呢
通过实践排除了钢管的发光字

双层金属孔板又太过于昂贵
也放弃了这个方案

单层木质孔板价格可以接受
确定了打孔的大小适合发光字的显示

灯光藏在孔板后面
这样组成的墙面
比之前有了大大的视觉改善

利用两组墙面的递进关系
20和00两个数字组合为2000
看似简简单单的办公室走廊改造
确实没有说的这么轻松容易

所以千万别对你的设计师朋友说
“帮忙做个设计”



