提示:点击上方"北京紫名都装饰"↑更多惊喜等着你......
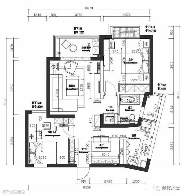
▲户型图
▲客厅毕业照
▲餐厅毕业照
▲主卧毕业照
▲清新的客厅一角
▲色彩斑斓的客厅

▲白色防盗门

▲鞋柜

▲打通客厅和阳台

▲木地板一直铺到阳台

▲遮起窗纱

▲沙发

▲金属材质的边几脚和吊灯杆

▲金属材质的装饰画框和花盆

▲水泥盆和量天尺
舍不得银子的童鞋们,还有琴叶榕、龟背竹、虎皮兰等你来宠幸~

▲琴叶榕(左)、龟背竹(中)、白虎皮(右)

▲厨房和餐厅毕业照

▲从厨房看向餐厅

▲卡座

▲浴缸和马桶、洗衣集中布置
不管在别人眼中,北欧风是质朴还是装逼,家就应该我喜欢我做主,因为疲惫和迷茫时,家是最后的避难所。
有撕逼的闲功夫,还不如插一束鲜花照亮家里,也照亮心情。



