提示:点击上方"北京紫名都装饰"↑更多惊喜等着你.....

并不是所有的人都喜欢蜂蜜色。
对颜色的偏好是很主观和难以说清的事,温暖的蜂蜜色可能是很多人的选择,就像很多人偏爱傍晚温暖的夕阳,但也有人喜欢家里更亮些,就像喜欢过了早上、接近正午的太阳光。

我更偏爱MCM柜子这种温暖的我们称之为蜂蜜色的颜色

但这种充满了原木色自然色调的空间也令人心生向往
这次我们的案例拆解,依然是解剖一间位于瑞典斯德哥尔摩的公寓,这间公寓除了方正舒适的格局,最让我赞叹的就是色彩的选择以及整体装修思路的克制。
色彩是以原木色为主(不是更温暖的蜂蜜色而是更明亮素净的原木色),跟很多日式传统公寓用满木色不同,这间北欧风格的公寓展现的是原木色+白色,点缀以灰色黑色,整个公寓没有过多的矫饰,展现出的是一种自内而外的风格统一,展现的是设计者的克制和自信。
方正圆满的格局
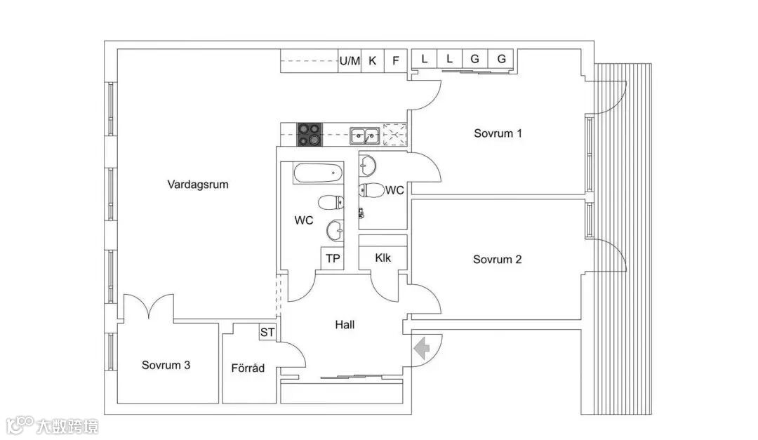
每次看国外的户型图都想问,我们国家的房屋设计师在干什么。看这间套内面积102平米(按中国建筑面积算大概120多平米)的公寓,真让人觉得格局合理,动线方便,一个三四口人人家的日常生活之需全能满足,感觉再大的面积都是浪费了。

户型图
客厅有大落地窗,两个卧室外边有小阳台,门口不大的门厅能直接通到公寓里大多数房间。从门厅可以进入卫生间,也可以进入客厅。厨房是开放式的,厨房餐厅和客厅连在一起,典型的LDK结构(在日语中,客厅Living room、餐厅Dining room和厨房Kitchen所构成的一体空间,被称为LDK)。而客厅通过一个宽敞的、上边带玻璃的双开门跟一个小卧室(兼书房)连接,让人觉得这个小卧室跟客厅隔得并不坚决,算是一种半开放的格局。总体上,带双开门的小卧室、客厅、餐厅、厨房共处于一个开放空间内,构成了这间公寓的核心区(戳这里看我们的核心区概念)。

客厅有落地窗,但层高并不高

原木色的双开门,上边还有个透气的窗,让客厅和小卧室(书房)呈现了一种半开放格局
两个大卧室位于公寓的另一侧,一间是主卧,带有卫生间;一间是次卧,用做儿童房。两间卧室都带有阳台,不是很宽敞的阳台,而是国外那种小窄条阳台,能摆上一个小桌和两把椅子的那种。

主卧,白色拖地亚麻窗帘,有圣洁的美

儿童房,壁纸和宜家(Ikea)的窗帘布,增添了不少童趣

开放式阳台空间不大,却能满足亲近自然的愿望

黄昏或清晨,坐在这里,想想都觉得很美好
原木色
直观地看,这间公寓的色彩重点是原木色。但设计者没有像很多公寓那样滥用原木(色),而是通过原木色跟白色、灰色乃至黑色恰当的搭配,展示了高超、克制的配色技巧。乍一看你可能觉得这个色彩平庸,但细看下来,其实是高手作品。
■ 原木色双开门上的白色门框
我是极其喜欢双开门的,但之前推荐的多数是简欧风格的双开门,这种贴皮木门见到的机会不多。双开门宽,敞开的时候更容易把两个空间联合在一起,让空间显得半开放。
在配色上,这个双开门的亮点不是原木色,而是上边的玻璃窗。下边的门是原木色,上边窗框外圈是原木色,里圈白色,配色精彩。

其实以前国内也有很多这种门框上面开孔装玻璃的设计,通风透气也增加采光
■ 白色橱柜的外侧跟上柜下柜之间
看这个厨房橱柜的颜色搭配,即知是高手所为。如果你自己定过橱柜,就知道,在国内的橱柜供应商,很少有人给这么配色的,原因简单——麻烦。白色现在国内都能做,价格适中的是白色的哑光或者亮光亚克力材质(戳这里看我们的),麻烦的地方在于,台面用的原木色,上柜和下柜之间用原木色,橱柜外侧朝向餐厅的那一面也是原木色。
橱柜外侧的原木色国内可以做,大概用贴皮材质即可,但要保证跟台面、上柜下柜之间墙面的颜色一致,且保证材料的耐用性,很难。

舒心的色彩搭配

橱柜的侧面其实用白色也可,但用木色更出彩,精致就体现在细节处

亚麻的餐巾厨房里必不可少,洗完碗盘、杯子用亚麻巾擦干是一种讲究的生活方式
■ 卫生间的镜框、浴室柜和茶几的桌腿
在确定了总体的原木色调之后,整个公寓并未陷入完全原木色的单调,而是原木色+白+灰+黑。但设计者在几个地方做了色彩上的呼应,这是巧思。
比如卫生间的镜框、浴室柜和茶几的桌腿,踢脚线、伊姆斯的木腿颜色等等。这是个有系统配色思路的设计,不是随意为之。

主卫生间的浴室柜是原木色

每一处用色都有巧思,却不做作
亮点
说完了装修的基础:结构和色彩安排,再点评一些小亮点。
■ 挂画
选挂画说起来容易,其实很难。选古典的,还是现代的?浓墨重彩的,还是线条画。这间公寓在客厅、小卧室(书房)还有主卧都挂了画。为了配合整体克制的色彩,客厅区域用了白色线条画,卧室配了小幅色块画。

地毯已经提亮了空间,黑白木,再加一抹绿色,色彩刚刚好

小色块挂画+灰白色的床品+绿色靠垫,如沐春风般舒服
■白色亚麻桌布
很多时候,一块亚麻桌布能拯救一张桌子。

桌布可以拯救桌子,地毯可以拯救地面,沙发布可以拯救沙发,床品可以拯救床
■ 卫生间铺砖
这间公寓的卫生间铺砖,也有可圈可点之处。墙面的砖用20×20mm的白色方砖,地砖用10×10mm。但地砖是灰色和白色搭,而且是无规则混搭,最终效果很动人。

地面瓷砖的乱拼法很有启发,不按常理出牌,也会有意想不到的效果,要敢想敢为
■ 挂墙式柜子
我们去一个伽罗的用户家回访,一个柜子给我留下深刻印象,挂墙的电视柜,HAY的,一万多一个。问她为什么,她说不喜欢带腿的柜子,喜欢挂墙的,清清爽爽。
这间公寓的也有一个这样的柜子,看图片的话做工精湛材质不简单,看起来就很好用,但想来也不会便宜。
就是原木色双开门旁边那个白色的挂墙式柜子

机织地毯的色彩柔和,质感一般但胜在色彩
其实亮点还有很多,比如挂墙式马桶,比如无主灯结构。但总体上这些我们过去多有涉及,也就不在这里细说了。
这间公寓属于乍一看不那么出彩,但细细琢磨是高手所为的作品。我们重点讲了格局跟色彩,但其实整个家居布置中的巧思,是更值得我们学习的。


