
(1)电气系统图









(2)系统图符号识别

1)总配电箱尺寸




2)总配电箱内电气原件
3)进线电缆


常见电缆表示方法:

铠装电缆表示方法:

常见的敷设表示方法:


4)进线开关
5)总断路器
6)设计指标

7)支路线管及配电箱


(3)分配电箱系统图


1)配电箱尺寸


2)设计指标


3)进线开关
4)出线开关
5)WL1回路信息
6)WL2回路信息


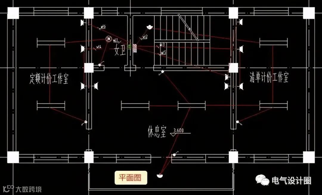
(4)照明平面图的识读
1)确定回路的组成














2)识图基础原理











3)确定线路的走向及根数


控制线走向:










本公司专业从事并具备以下资质:建筑工程,电力工程,市政公用工程,通信工程总承包及建筑智能化、装饰装修、幕墙工程、消防设施工程、钢结构工程专业设计与施工,工程咨询,能源合同管理,新能源技术开发、设计及施工,项目管理及电子、电气成套设备销售、研发等,电力行业(送变电工程),新能源工程,环保工程,建筑智能化工程,建筑装饰装修工程咨询、设计、施工等。

本着“诚信、务实、高效、创新”的经营理念,江苏欣佰建设工程有限公司&电力设计院&电气设备制造公司(欣佰集团)面向全国寻找战略合作伙伴,共拓市场,欢迎来电垂询!
咨询电话:400﹣000﹣2220转3191或转6006
本文来源:网络
(申明:“欣佰集团”所推送文章,我们都注明来源,部分文章内容未及时与原作者联系。若涉及版权问题,请联系我们,谢谢)

