软件需求和设计逻辑来自北京市建筑设计研究院股份有限公司第四建筑设计院给排水工程师李大伟、张亦凝、张诗睿,特此致谢!
类似的,在给排水专业喷淋平面设计中,我们同样也有一套工具和流程,能够提高设计的自动化程度,高效又精准地完成喷淋平面图,并确保设计的合规性和安全性。
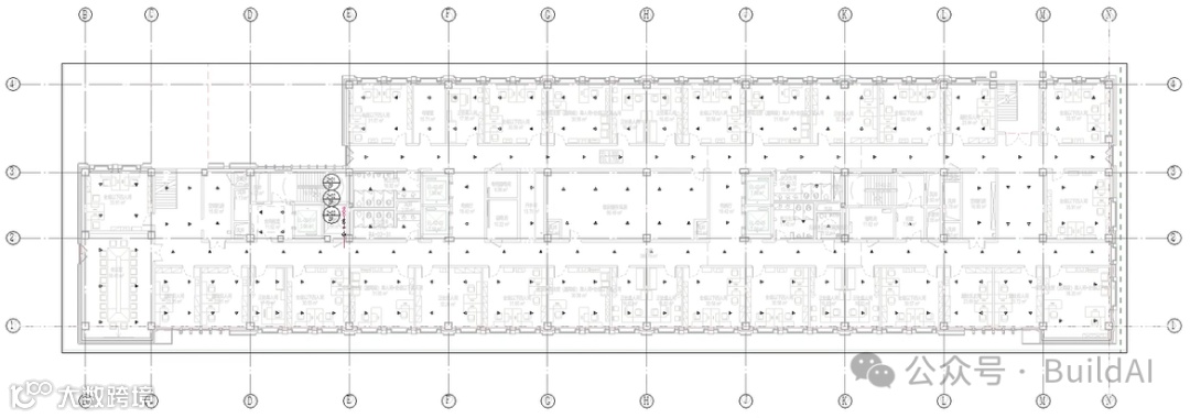
第一步:基于建筑房间功能和几何信息自动放置喷头。软件可以识别建筑模型中的房间名称,自动排除不布置喷淋的房间。基于项目危险等级设置和模型中的房间吊顶信息,自动在有吊顶的房间放置下喷喷头,在无吊顶的房间放置上喷喷头。


第二步:根据规范要求,自动核查喷头的间距和距墙距离,自动补放喷头。


核查喷头前

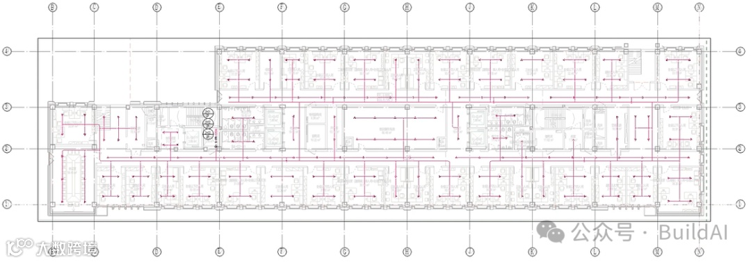
核查喷头后
第三步:自动创建支管,将各个房间的喷头连接到主管上。




借助于参数化设计、机器学习等计算机技术,给排水专业喷淋系统的设计工作正在向着自动化和智能化的方向发展,智能生成式设计也许在不久的未来就会实现。