点击上方 【蓝字】 关注我们
项目背景
我国是历史悠久的文明古国,在漫长的岁月里,中华民族创造了种类丰富、底蕴深厚、风格独特的历史建筑。这些不同时代的历史建筑是我国重要的文化遗产,蕴含着特有的精神价值、思维方式以及想象力,传递了丰富的历史信息,是各民族智慧的结晶,也是人类文明的瑰宝。然而,随着时代变迁,历史建筑或褪去了颜色,或结构发生了改变,再加上不可抗拒的自然因素,导致现存的历史建筑受到破坏乃至毁灭,因此,开展历史建筑的数字化保护工作刻不容缓。
三维激光扫描技术采用非接触式测量方式,在不损伤古建筑物的条件下,快速采集古建筑外部表面的精确数据(三维坐标、反射率和纹理等),实时生成大量连续且密集的点,构成历史建筑的外表结构(数字表面模型)。其扫描测量作业安全、准确,速度快,也是传统测量无法比拟的。
项目介绍
本文以某批次历史建筑测绘建档为例。根据项目要求,需要对该历史建筑做全面测绘,制作平面图,立面图,剖面图,大样图等,提出修缮意见并归档入库。
项目实施
数据采集
根据现场情况制定合理的外业测绘方案,使用三维激光扫描仪和无人机倾斜摄影技术获取项目区域被测物的整体外形信息,同时对现场进行拍照,采集被测古建筑的真实影像。
图2 点云模型
图3 航拍照片
图4 真实影像
数据处理、制作平面、立面、剖面、大样图图纸
利用点云数据处理软件,对采集到的点云数据进行配准、去噪、取样等工作,得到清晰且完整的点云数据。根据处理好的点云数据制作图纸,得到平面图、立面图、剖面图、大样图。
以下是此批次历史建筑的项目成果,包括点云数据和图纸,大致分为寺、庙、桥及坊四类。
历史建筑——寺类
点云数据
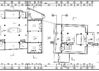
平面成果
立面成果1
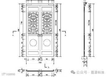
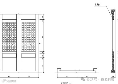
大样成果1
立面成果2
大样成果2
历史建筑——庙类
点云数据
平面成果
立面成果1
剖面成果1
大样成果1
立面成果2
剖面成果2
大样成果1
历史建筑——桥类
点云数据
平面成果
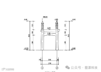
立面成果
剖面成果
历史建筑——牌坊类
点云数据
平面成果
立面成果1
立面成果2
建档成册、数据入库
按照要求,将现场采集的信息、测量的结果、绘制的图纸等成果整理,形成完整、规范的报告,并对被测物挂牌,最后将信息归档入库。
图5 测绘报告
总结
本项目利用三维激光扫描仪对历史建筑进行全面扫描,快速获取了历史建筑的完整、密集的点云数据,便于准确反映建筑物的整体形变情况。三维激光扫描仪可以对待测历史建筑物进行全方位的、各角度的、内外全面的、无接触式的数据采集,不接触历史建筑本体,对其伤害性小,更有利于保护历史建筑。利用三维激光扫描仪对历史建筑周期性观测,可以制订关于对其保护的可行性技术方案,进而对历史建筑的保护提供数据支撑。随着三维激光技术的不断发展,三维激光扫描仪的自动化程度越来越高,其扫描采集速度越来越快,点云数据精度也不断提高,会更普遍地应用到历史建筑等文化遗产保护中。
北京图源科技有限公司




业务咨询:17600206377
公司官网:http://www.mapcore.com.cn/
公司邮箱:yuanyuan@mapcore.com.cn
公司地址:北京市海淀区黑泉路宝盛广场D座8001


