
▲ 玄关区将原来对着大门的洗手间门利用隔断处理解决了结构问题

▲ 小小玄关融合了鞋柜、换鞋凳、衣帽钩、镜子等所有功能,文艺小清新调

▲ 虽然只有2米9的层高,卧室位置设计了上下分层,上面睡觉,下面是衣柜和梳妆台,楼梯下的空间也是储物,利用率极致提升

▲ 用吧台做为餐厨区和客厅的隔断,一物多用是小户型的精髓

▲ 原本的阳台设计成座榻,扩大了客厅的空间,同时也满足了收纳功能

▲ 位于上方的卧室

▲ 从上往下看到结构调整后的整个空间并没有非常拥挤

▲ 开放式餐厨空间也让小面积视觉更宽敞

▲ 吧台小景

▲ 整体都是白色调,有视觉张力,局部用彩色点缀

▲ 隔断背后的空间正好放下冰箱

▲ 卫生间采用绿色的瓷砖,小空间也有层次感

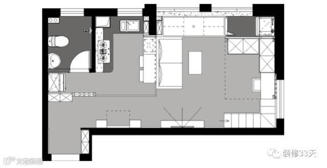
▲ 平面布置图
设计 | 武汉三伏装饰


