

这个建筑是关于“影子”的。这是一家叫“Ninja Black”的酒店。该酒店位于京都市中心,就在京都御所西侧,周围有着房屋、小商店、公寓楼和酒店。京都典型的一块9米宽35米深的土地上建一家5层高有21个房间的小酒店。
This architecture is about “shadow”. It’s a hotel named “Ninja Black”.The site is located in the city center of Kyoto, just west of the Kyoto Imperial Palace, in an area populated with houses, small shops, apartment buildings, and hotels. We planned a small hotel of five floors with 21 rooms, on a plot of land typical in Kyoto, nine meters wide by 35 meters deep.



因此,这家酒店的“影子”设计理念诞生了:神秘、朦胧、寂静,却又不失强烈的存在感。
立面的阴影多于实体,设计的目的是让人联想到忍者可能藏身于任何地方。整个立面覆盖着日本式的“koushi”百叶窗。
第一层、第二层和顶层也增加了屋檐,但正面的强烈印象来自于Koushi。整个立面实际上由两层Koushi构成,每层都有一个交替的V形图案,相互偏移半个跨度,以加深阴影感。
Thus, this hotel’s design concept of “shadow” was born: mysterious, shadowy, and silent, yet with a strong presence. The facade, with more shadow than substance, is designed to evoke the idea that a ninja could be hiding anywhere. The entire facade is covered by “koushi”, Japanese style louvers. Eaves are also added above the first, second, and top floors, but the strong impression of the facade comes from the koushi. The entire facade is actually made with two layers of koushi, each with an alternating V-shape pattern, offset from each other by half a span, to deepen the sense of shadow.


每个百叶窗的一面都涂成棕色,另一面涂成黑色,这样当你从东面走进酒店时,立面看起来是棕色的,但是当你到达时,棕色逐渐消失,整个建筑看起来是黑色的。室内设计是围绕“黑暗”的概念,尽可能多地设计为现代酒店。游客在这家酒店体验忍者的把戏。
Each individual louver is painted brown on one side, and black on the face and the other side, such that when approaching the hotel from the east, the facade appears to be brown, but as you arrive, the brown fades and the whole building appears to be black. The interior is designed around the concept of “darkness”, as much as can be practically done for a modern hotel. Visitors experience tricks of ninja in this hotel.






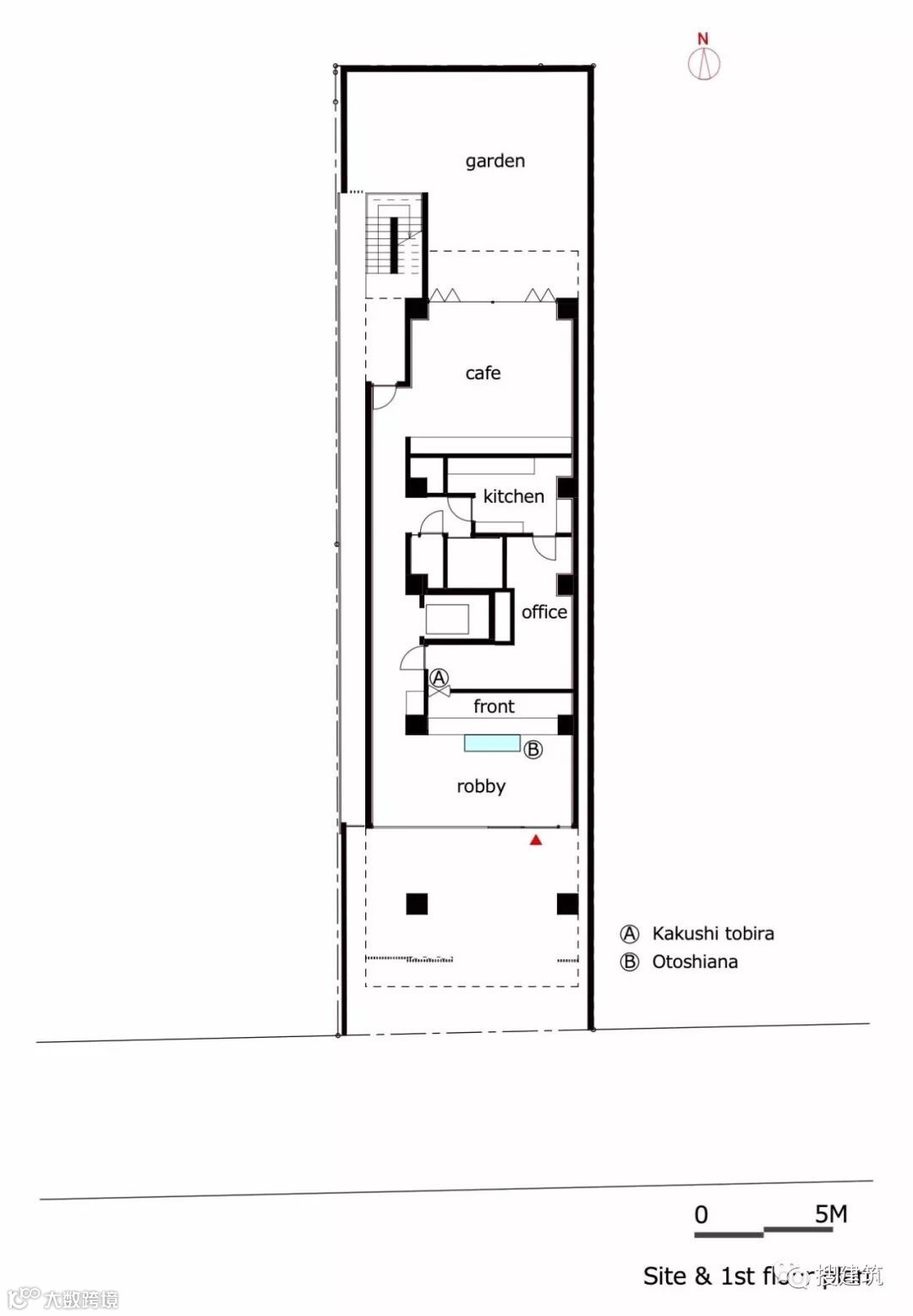
例如,就在前台大厅的地板上,放着一个“otoshiana”,这是一个深坑,底部有50个尖刺。当然,它被厚厚的玻璃覆盖,因此成为地板的一部分,但还是当顾客在准备入住时看到这个会感到很惊讶。
For example, the floor of the lobby, right at the front desk, holds an “otoshiana”, a deep pit with 50 sharpened spikes at the bottom. Of course, it’s covered with thick glass so that it becomes part of the flooring, but the customer will be surprised as they come across it as they prepare to check-in.

当顾客走近前台时,他们看不到任何员工……眼前只有一堵金箔墙。突然,一个忍者从“kakushi tobira”出现了,这是一扇无形的旋转门,它打开后迅速融入墙壁,就像忍者(前台工作人员)无声地出现一样。“Shuriken”被装饰地贴在旅馆的墙上。忍者剪影的“Damashie”(视错觉照片)不时会突然投射到一楼主要通道的墙上。酒店工作人员打扮成忍者。在这家旅馆里,你一定会觉得自己也是“忍者”。
As the customer approaches the front desk, they see no staff… just a solid wall of gold leaf. But suddenly, a ninja appears via a “kakushi tobira”, an invisible swinging door that opens and melts back into the wall as quickly as the ninja (front-desk staff) silently materializes. “Shuriken” (throwing stars) are stuck ornamentally on the walls in the hotel.“Damashie” (optical-illusion pictures) of ninja silhouettes are, from time to time, suddenly projected onto the wall of the main first-floor passage way. Hotel staff is dressed as ninja. You will certainly feel “ninja” in this hotel.















场地平面图

一楼平面图

二楼平面图

南立面

剖面图

你花了 分 秒 来阅读
点个“好看”再走吧!☟

