新昌县,在绍兴市管辖区,位于浙江省东部。现列入沿海经济开放地区,属上海经济区域,随着宁波国际性“东方大港”的建成和对外开放,新昌区域优势更为显著。
作为经济发展的闪耀之星,新昌拥有众多高新技术企业蓬勃发展,它是中国重要的医药化工、制冷配件产业基地。
传统产业数字化转型浪潮中,新昌构建起独具特色的现代化产业体系。其优越的创新创业环境,吸引大量人才汇聚。
这里是以『汽车』为主题的一站式商业服务综合体,是繁华都市中的『活力港湾』,我们致力打造多元功能于一体的开放式空间,一起解锁极致消费体验。项目总建面约9.5万平方米,总投资约6亿元。按照“立足新昌、服务绍兴、嵊州、面向浙江”的发展理念,着力打造以新能源汽车为主题,辅之以数字新消费、新生活街区、办公、酒店等高端服务业的多功能新兴城市商业中心。项目将打造成为新昌、嵊州“新消费”地标,为新能源汽车产业的发展注入新的活力,构建“人·车·生活”全新生活方式和消费体验。
新昌新能源汽车城位于绍兴市新昌县七星街道莱盛路1号(泰坦大道与莱盛路交叉口),上接高铁新城,下承新昌城区,地处新昌嵊州两地交界处,临近嵊州新昌站,1小时直抵杭甬双机场,毗邻上三高速,靠近新昌南岩新区及嵊州城南商圈。周边3公里内覆盖10+上市名企,55个住宅小区,15栋写字楼,辐射超10万消费人群,客群丰沛。
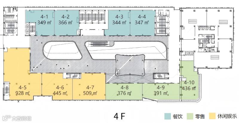
娱乐休闲区位于新能源汽车城的L3-L4层,是一个集美食、休闲、娱乐于一体的综合性空间,规划核心主力店定调该楼层的主题,引入国内外知名品牌,涵盖机车文化、时尚零售、餐饮美食、娱乐潮玩、亲子空间、教育培训、运动健身、酒吧等多元化业态。
3F、4F聚焦“多元业态+场景创新”,可布局沉浸式电竞馆、汽车主题游乐城、限时快闪店等潮玩体验,覆盖亲子互动与青年社交。通过“全时段+全龄段”业态融合,覆盖家庭欢聚、青年潮玩、商务社交,打造独特的“活力引擎”,让每一次停留都成为城市心跳的鼓点。
无论是热衷极速竞技的电竞玩家、追求亲子互动的家庭客群,还是酷爱潮流文化的时尚先锋,都能在新昌新能源汽车城找到与灵魂共振的娱乐主场。以空间为舞台,以体验为剧本,让每一次欢笑与碰撞都成为城市活力的加油站。
新昌新能源汽车城潮玩休闲业态,诚邀潮玩休闲娱乐产业合作伙伴入驻。我们期待与您携手,共同打造这座集汽车、美食、休闲、娱乐于一体的汽车主题综合体。我们将根据您的品牌定位与市场需求,提供定制化的合作方案与专项政策支持,一起解锁极致消费体验、打造多元业态活力商圈!
让我们携手并进,以潮流激发活力,以创意定义体验,共同开启新昌潮玩商业的新纪元,在这里,每一处空间都是年轻能量的释放场,让每一份热爱都成为对年轻文化的澎湃礼赞!

