光伏电站
近日,河北唐山市住房和城乡建设局印发了《唐山市农村住房建设图集》,指导农村的别墅设计,其中可以看到很多设计图纸都在屋顶上安排了光伏电站。可见户用光伏电站在农村的普及,政府部门发布的设计图纸都推荐安装。
光伏发电的好处多多,不仅能为村民省钱,还能赚钱,是一项稳赚不赔的投资,还具有隔热防水的效果,下面一起来看跟有光伏相关的设计图纸吧!(以光伏电站适合的屋顶形式为分类)
·坡屋顶·
唐山北部、中部部分地区较多坡屋顶,局部有平屋顶,立面以淡雅颜色瓷砖为主,院落布局方正,坐北朝南,一般对称,
南向开窗很大,采光好,外门在中间且很大,两侧布置厢房,院子内有菜地,或者果树等,屋顶有太阳能,多以红色、灰色坡屋顶为主,立面多用红砖,贴瓷砖或者水刷石。
斜坡屋顶装光伏电站较为美观,由于屋顶坡度较大,雨水易排除,且施工简单易维修。
·平屋顶地区·
唐山中部地区及南部沿海多以平屋顶为主,局部有红色、蓝色坡屋顶。立面多贴白色瓷砖,院落多布置厢房。
屋顶坡度小于5%(2.86度)系为平屋面,它省时省力,简单大方,可用作活动场地,作为晾晒场所,但平屋顶排水慢,易产生渗漏现象,同时到了夏季,屋子不是一般的热。
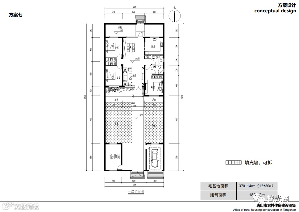
方案七:典型的平屋顶设计光伏电站,光伏阵列可以按最佳角度安装,从而获得最大发电量;平屋顶安装光伏电站最大的优点在于隔热降温,要知道安装一套光伏电站,可降温5~7度,效果非常明显。
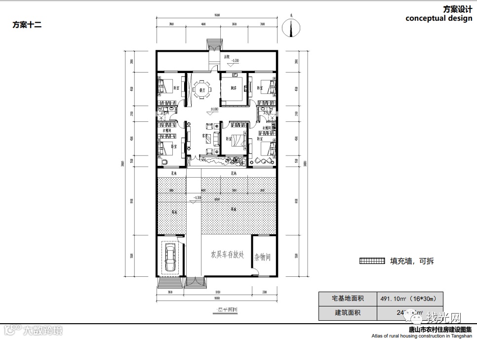
方案十二:传承了滦南地区平屋顶挑檐做法,采用水泥墩+光伏支架形式,为了保证发电量,还要根据不同地区的地理位置,结合实际情况,确定最佳倾角,为了保证前排组件不遮挡后排组件,两排组件之间要留有空间。
为什么光伏电站会出现在住建部指导农村住房的设计里呢?因为在农村,户用光伏电站已经非常普及了,而国家为实现碳中和目标不断推进绿色清洁能源的发展,政府部门也在积极推广建设光伏电站。
山东、河南、河北的农村几乎村村都装光伏,户户用清洁电力。原因很简单:
家庭光伏电站收益超10%
山东济南地区,如果安装一套10千瓦的光伏电站,花费3-4万元,年发电量可达1.25万度,年收益率可达17.02%,最快仅需要4.8年就可以收回成本。
高收益率吸引了众多老百姓争相安装光伏电站。光伏发电能赚钱的消息就这样一传十、十传百,老百姓都在自家屋顶上安装光伏电站了。
农村安装优势大,寿命长
绿色环保无污染、稳定收益、美观大方、隔热保温……
光伏电站的好处远远不止这些,特别是在农村,闲置的屋顶上安装了光伏电站,只要有阳光的日子,电站都在发电赚钱,即使是在家不出门,也能赚到一份稳定的零花钱,可以说是十分地划算了。
而且,光伏电站的使用寿命长达25-30年,比一般家里的冰箱、空调的使用寿命还要长,带来的收益绝对比你想象中的要多。
只要电站在发电,家里白天就能免费用电,而且用不完的直接并入国家电网出售,国家电网现在鼓励分布式光伏并入电网,并每月结算国家补贴和卖电收益,及时结算把款项打入银行卡。


