近年来,吉安市青原区突出党建引领,激活乡村振兴“红色引擎”,位于吉安市青原区新圩镇马塘村接续成立光伏光电合作社、新锋水稻专业合作社等农业专业合作社,将马塘水酒、糯谷和黑木耳种植等产业链子元素拧成一股绳,在抱团发展中走出党建引领高质量发展新路子,促进村级集体经济提质,实现了产业发展良性循环。
振兴学院全景
马塘乡村振兴学院承载着乡村的历史和文脉,是保护文化遗产、弘扬中华优秀传统文化、唤起“乡愁”、振兴乡村的重要平台。推进乡村振兴馆及乡村体验建设,可以很好地促进文化与旅游的反馈,促进文化与旅游的共同繁荣。
乡村振兴馆以文字、图片相结合,集党建引领、乡村振兴、创新发展、文明新风、愿景规划等于一体。全馆共由五大篇章构成,集中映衬在党领导下马塘村发展变化的概貌。

乡村振兴馆平面图



根据马塘村现状旅游资源,发展乡村旅游,推进旅游扶贫,逐步探索出一条从“扶贫”到“富民”,从“农家乐”到“乡村旅游”并向“美丽乡村生活”华丽转身的乡村旅游共享发展之路。

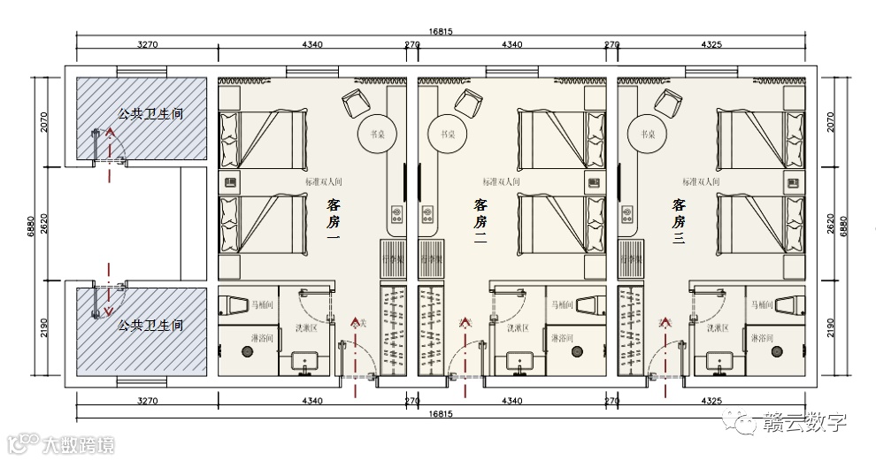
接待区平面图


关于赣云数字
江西鑫祥投资发展有限公司创立于2014年,致力于项目投资,为数字化经济产业提供“资本+运营”的矩阵式服务。基于多年数字科技版块的投资运营,公司于2021年投资成立江西赣云数字科技有限公司(简称赣云数字),重点围绕“数字展陈、数字文旅、数字城市”等领域,聚焦数字城市发展新需求,专注顶层规划设计,运用数字科技,为城市生态创造出美和智慧的全新体验。
赣云数字拥有创意策划、科技研发、设计施工、运营管理等服务团队,在多地设有分支机构和联络处。以展馆规划设计为起点,以文化科技融合创新为使命,积极响应“科技强国”与“文化兴国”战略,为文博馆、企业馆、产业馆、科普馆、城市展示、红色主旋律、文旅IP开发、特色小镇、乡村振兴等领域及数字多媒体研发做出了研究与实践。

秉承“创意+科技+服务”的融合发展理念,赣云数字以多媒体、数字图像、3D动画、移动互联网、智能控制等高新技术为支撑,通过文化创意设计与高新数字科技的有机结合,为各行各业客户提供综合的数字视觉创意和展览展示解决方案。
随着公司战略规划的发展,赣云数字与中国移动、中国联通、中国电信、华为、海康威视、数字江西等建立战略合作关系,并与中科院及多所高校长期保持合作关系。未来,赣云数字将继续为客户提供专业、优质的服务,树立“创意+科技+服务”行业的新标杆!