超低能耗建筑
根据《近零能耗建筑技术标准》GB/T51350-2019的定义,超低能耗建筑是近零能耗建筑的初级表现形式,是指适应气候特征和场地条件,通过被动式建筑设计最大幅度降低建筑供暖、空调、照明需求,通过主动技术措施最大幅度提高能源设备与系统效率,充分利用可再生能源,以最少的能源消耗提供舒适室内环境,且其室内环境参数和能效指标符合本标准规定的建筑。
1
项目概况
项目地块位于鄞州区中河街道,东、南至用地红线,西至科技支路,北至规划堇山东路。地块内2#楼按照超低能耗建筑的要求进行设计和建设,为办公建筑,建成后主要功能为办公用房、检测用房、会议室、员工活动等。超低能耗总建筑面积6490.90平方米。
2
亮点一:
建筑围护结构精细化提升
1.围护结构热工性能提高
建筑外墙主要为铝板干挂外墙,主要保温采用岩棉板,局部无机轻集料保温板,平均传热系数到0.40W/(m²·K)。屋面主要为倒置式屋面,局部种植屋面,主要采用挤塑聚苯板保温,平均传热系数0.21W/(m²·K)。外窗采用断热铝合金型材5+12(19)A+5+12(19)A+5Low-E,配合中置可调节遮阳百叶,既保证了自然采光,又有效控制了太阳辐射得热,传热系数1.80W/(m2·K),气密性提高到8级,可见光透射比0.60。
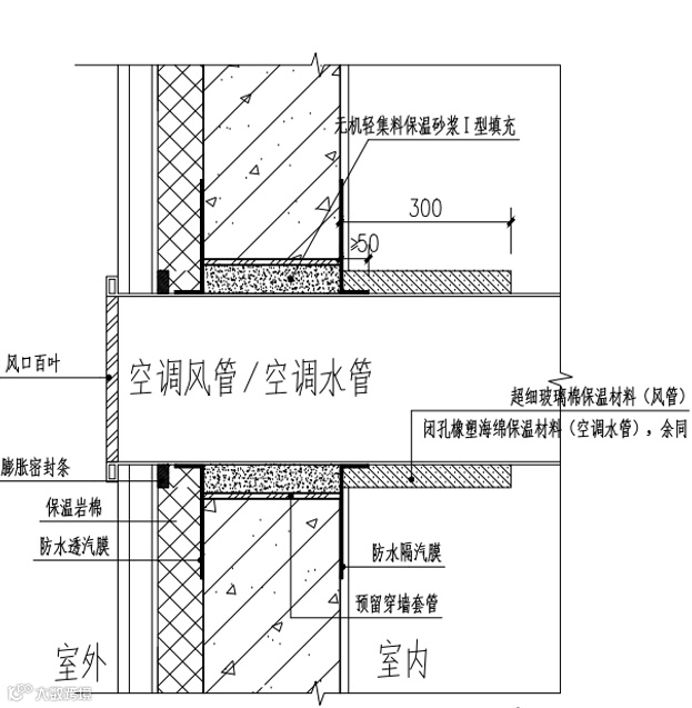
2.气密性处理措施
在建筑外围护结构气密性处理方面,外门窗气密性不低于8级。门窗洞口的四周缝隙作气密性处理,室内侧使用防水隔气膜,室外侧使用防水透气膜,并采用保温板或保温砂浆覆盖窗框,各类管道穿透气密层及外墙时,贯穿处预留穿墙套管,并进行气密性处理。
3.热桥处理方面
屋面女儿墙等突出屋面的结构体,保温层与屋面、墙面保温层连续,并且女儿墙屋顶设置了金属盖板提高其耐久性。金属盖板与结构连接部位设置断热螺栓避免热桥。
岩棉板保温层采用错缝粘结方式连接。保温层采用锚栓处,用断热锚栓固定,并采用隔热垫块封堵,减少热桥。
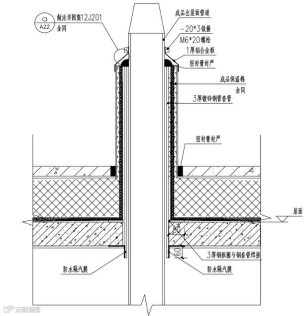
出屋面管道预留洞口大于管道外径100mm,设置套管进行保护,套管与管道之间填充成品保温棉,填充至管道顶。
图3 复杂节点内表面温度模拟计算
建筑中存在一些特殊复杂节点,例如檐口部位、架空楼板及设备平台部位等,构造较复杂,通过软件模拟分析节点,验算内表面温度满足设计要求。
3
亮点二:
高效机电设备与可再生能源应用
空调系统采用高效VRF多联机,机组APF≥4.5,结合全热回收型新风系统,热回收效率达到70%,在引入新鲜空气的同时,最大限度地回收排风中的能量。
2.LED光源+节能控制
照明系统全面采用LED光源,并通过智能感应控制实现精细化管理。公共区域采用“人来灯亮、人走灯灭”的自动控制策略,会议室设置多种照明场景模式,保证舒适度并降低照明能耗。
3.可再生能源应用
空气源热泵热水系统:食堂部分采用单台额定输入功率为2.59kW的空气源热泵,共一台。2#楼设置了装机容量约为74.93kWp的太阳能光伏系统,预计年发电量6万多kWh。
4
亮点三:
建筑智慧数字控制系统
——建筑的“智慧大脑”
对建筑的电、水、光伏发电等能源消耗进行实时监测和分项计量,为能源管理提供数据支撑。
2.环境质量监测系统
在主要功能房间设置监测点,实时监测CO₂、PM2.5、温湿度等参数,并自动联动新风系统,始终保持室内空气清新舒适。
3.楼宇自控系统
集成管理空调、照明、电梯等主要用能设备,实现“分散控制、集中管理”,确保各系统始终处于最优运行状态。
5
超低能耗建筑关键指标
建筑综合能耗值(不含可再生能源发电):66.95kWh/㎡·a,
建筑能耗综合值:41.00kWh/㎡·a,
建筑本体节能率:33.45%,
建筑综合节能率:59.25%,
可再生能源利用率:38.48%,
建筑能耗水平达到了夏热冬冷地区超低能耗公共建筑要求,结合可再生能源应用,为探索城市低碳可持续发展之路贡献了新的实践案例。

