01
设计背景
镇海西门农贸市场改造提升工程是镇海区为改善老城区居民生活的重点民生工程。镇海西门农贸市场位于宁波市镇海区招宝山街道,大西门路北侧,龙洋路以西,龙洋路3弄以南;由1996年建成的框架砼部分(东区)和2014年扩建的轻钢结构部分(西区)组成;东区地上一层为西门菜场,二层以上为三幢多层住宅;西区为单层建筑,屋顶为轻钢结构;菜场周边大都为上世纪90年代建成的住宅小区,因此西门菜场承载了老城区几代人记忆,生活气息极其浓厚;镇海西门农贸市场改造提升工程是是镇海区重点更新项目,旨在改善老城区居民的购“菜”体验,保留附近居民购“菜”的便利性;同时,积极主动提升老百姓的日常生活条件,下大力度改善消防设施,保障老百姓的人身安全,适当融入智能化生活理念,向五星级菜场标准看齐,整体改善、提升街区活力。

02
现状分析
1、现状菜场由东区、西区两部分组成;东区为1996年建成的框架结构,西区为2014年扩建的轻钢屋顶建筑;现状建筑外立面老旧,外墙及屋顶部位存在多处渗漏。


2、建筑内装修陈旧,灯光昏暗,无自动喷淋灭火系统、无有效的通风排烟和制冷制热设施,已无法契合当下老百姓的生活品质和大众审美层级,无法充分满足周边老百姓对美好生活的追求。


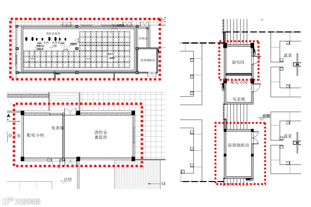
03
改造策略
◆消防设施完善
老菜场的消防安全问题一直是居民和商户心中的 “揪心事”。彼时,部分区域的消防设施早已超出使用年限,灭火器压力不足、消防栓生锈堵塞的情况时有发生,一旦发生火情,根本无法及时发挥作用;且原菜场未配备专业消防供水系统和指挥中枢,火情发生时极易陷入 “无水可用、无人统筹” 的被动局面。针对这些 “老大难” 问题,本次改造进行了全方位、针对性的破解,从 “基础保障” 到 “智能防控” 构建起完整消防体系。首先,在核心消防设施上实现 “从无到有、从旧到新” 的突破:因地制宜的增设了不锈钢消防水箱以及配套的消防水泵房,配备消火栓给水泵、自动喷淋给水泵、消火栓增压稳压设置以及喷淋增加稳压设备等消防设施,可在火情发生时快速启动,为整个市场的消防管网提供稳定高压供水,彻底解决了以往消防栓水压不足的问题;同时,根据市场通风结构,新增了防排烟机房,配备高效排烟风机和防火阀,一旦发生火灾,可快速排出市场内的烟雾和有毒气体,减少人员窒息风险,为疏散通道创造清晰视野;还单独规划建设了消控室,作为整个市场消防系统的 “指挥中心”,室内配备火灾报警控制器、消防联动设备、视频监控大屏等,24 小时安排专人值守,可实时接收各区域消防设备的信号,一旦发现火情,能立即启动报警、联动排烟、关闭防火门等一系列应急措施,实现 “发现 - 处置 - 救援” 的快速响应。

◆更新后效果展示(效果图仅为示意)




04
结语
老菜场焕新生,烟火气里藏幸福!老城区菜市场的改造,不仅改变了市场的环境,更提升了居民的生活品质。改造后,这里依旧充满了熟悉的烟火气,但多了几分整洁、舒适和安心。提着菜篮子的居民们脸上洋溢着笑容,摊主们也因为更好的经营环境而干劲十足。
未来,这些改造后的菜市场还会不断优化服务,根据居民的需求调整业态,让 “菜篮子” 工程更接地气、更有温度。相信在不久的将来,老城区的菜市场会成为城市里一道亮丽的风景线,既保留着老城区的记忆,又焕发着新的活力,为居民们的幸福生活添砖加瓦!

