2025年11月28日,中国古迹遗址保护协会(ICOMOS China)2025年度会员代表大会在四川都江堰召开。作为会议边会之一,中国古迹遗址保护协会数字遗产专业委员会(以下简称“专委会”)召集了“因地制宜——文化遗产数字创新”边会暨数字遗产专委会2025年年会。专委会委员和近百名文化遗产相关领域的专家学者汇聚一堂,围绕数字文化遗产领域的创新实践与典型案例展开深入研讨,共同探索因地制宜地推动文化遗产高质量发展的数字创新路径。
专委会委员、清华大学美术学院教授,文物学会遗产传播专委会副主任张烈在会上作题为《遗址类博物馆的展示要点和创新实践》的学术报告。
遗址类博物馆的展示要点和创新实践
大家好!很荣幸有机会和大家交流探讨遗址类博物馆的展示要点和创新实践。我来自设计学领域,可能和其他老师的研究背景有所不同,我就从设计学的视角,从三个方面展开分享:一是对遗址类博物馆叙事特点的认识,二是结合刚完成的洛阳汉魏故城遗址博物馆项目分享实践经验,三是介绍数字体验在遗址博物馆中的特色应用。
首先,我们来聊聊遗址类博物馆的叙事特点。这类博物馆最核心的特质就是在地性,历史就沉淀在脚下这片土地上,观众置身于此,能直观感受到历史真实带来的心灵震撼,沉浸在岁月变迁的独特氛围中,生出对时光流转的沧桑感慨。基于这一核心特质,遗址博物馆在设计叙事上有三个显著特点。
1
更强的专题性、趣味性
第一个特点是能构建探索感十足的专属故事。它不像综合类博物馆那样涵盖诸多主题,遗址给了我们一个非常有价值、有故事的可以聚焦的点,其专题性和趣味性比一般的博物馆更强。我们不仅要讲述遗址过去的面貌,还要呈现它是如何被发现、后人又如何通过各种研究去探究其背后的故事,通过这些内容充分调动观众的好奇心。
2
更聚焦、更立体地表达
第二个特点是能对历史进行更丰满更立体的塑造。因为聚焦性强,我们可以从多维度展开表达:时间线索上,梳理遗址的成因、鼎盛时期的风貌、后续的演变及对后世的影响;空间线索上,解读遗址的地理选址、形制构造、布局特点,以及为何能诞生在此地;文明线索上,挖掘遗址在政治、军事、科技、文化、思想和生活方式等方面所展现出来的独特特征。
3
历史地位、价值、意义的确立
第三个也是最重要的特点,是能够聚焦价值叙事。遗址的核心价值阐释是展示的关键,我们同样可以从三条线索发力:时间上,突出其对后世的深远影响;空间上,呈现与相近时期国内外其他遗址的对比或关联,并可能展现其在空间上往其他地区的扩散和影响;文明上,对比该遗址与其他遗址、甚至其他国家文明在各领域的异同,清晰确立其历史地位和意义价值。
接下来,我重点分享洛阳汉魏故城遗址博物馆这个项目案例。我们为这座博物馆构建了三大体系,努力实现遗址独有的在地性与多元化艺术阐释的融合、文博陈列的严谨性与文创演艺的体验性的融合,以及线上+线下、文博+文旅+文创的融合。
1
空间叙事与建筑呼应
空间格局与遗址同构
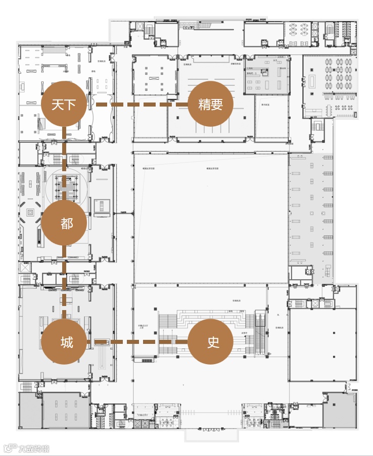
在叙事脉络上,我们突破了传统博物馆单一的时间线索,构建了从“史——城——都——天下——精要”的独特叙事体系。
序厅通过沉浸式演绎铺垫历史脉络,阐述“天中”理想;第一展厅“天下河洛,大都惟中”聚焦“城”的物理属性与科技属性,剖析遗址格局,展现“择中立极”的营建思想;第二展厅“汉魏经典,魂脉融合”围绕“都”的核心,结合文物解读凸显民族融合的特质,这一时期正是中国多元一体的多民族国家形成的关键阶段,我们通过穿汉服、胡服及两者融合服饰的陶俑,拓跋氏等姓氏的演变,还有全国各地人士汇聚而来留下的呈现不同姓名籍贯等的实物实证,直观呈现这一特点;第三展厅“千秋创举,世界大同”立足“天下”视角,展现洛阳作为当时东方世界的中心以及丝绸之路的起点,在科技、文化、艺术等各领域的所取得的卓越成就,以及在中西方文明互鉴和交流中的重要地位;最后通过精品厅和数字厅提炼“精要”,浓缩汉魏文化艺术的核心内涵。
2
文物陈列+体验创新
在设计理念上,我们在展览空间中不断强化空间中的中轴线的感觉,凸显“建中立极”的营建哲学,让核心价值观从艺术表达和现场体验中全方位呈现。同时,我们采用重点文物精品陈列、特色文物集群陈列、核心文物剧场(故事)化阐释等多样化陈列方式,根据汉魏洛阳的文物资源和特色,结合展陈叙事,采取针对性的、多样化的文物陈列方式,凸显文物特色和文化价值。
此外,将雕塑、场景与多媒体多种艺术与科技手段结合,构建自由交错,虚实交融,明暗交织的视觉空间,从而衍生强烈的视觉效果和感染力。
同时结合科技与数字创意,打造艺术+科技+人文的创新体验,营造知识与空间无限延伸的文博文旅文创元宇宙。
3
展演融合、活化创新
秉持“博物馆既是流动的空间剧场”的理念,从博物馆大厅开始贯穿各个展厅,提炼洛阳汉魏重点内容形成共九幕分布式专题展演区。
结合高度抽象凝练的场景表达与先进的多媒体手段的应用,呈现法天象地、考古复原、择中立极、四方之则、石经皇皇、帝王视学、丝路汇通、人间百态、后世遗响九段重点精彩内容,实现艺术、科技与人文体验的深度融合。
该项目的另一大创新在于委托我们进行整体运营,我们从文化激活与商业营造的双重逻辑出发,系统梳理了诸多具有消费潜力的文化内容,致力于构建“灵魂可沉浸、场景可触摸、业态能消费、时空能延展”的融合体验。具体实践中,我们设计了涵盖观汉仪、赏大秀、着汉服、品古食、习工艺的系列沉浸活动,并在馆内设置多个交互打卡点,提供石经拓印、汉魏科技等体验。同时,推出特色餐饮与主题文创,并联合《中国诗词大会》开发汉魏诗词VR,让观众身临其境感受都城风骨;未来还将携手专业机构打造汉服品牌,并借“故事商店”培育社群空间。此外,运营大遗址摆渡车串联博物馆与遗址区,并计划创排以曹操为主题的数字化情景剧,以弥补当地三国实物叙事之不足,完整呈现遗址的故事脉络。
最后,我再分享几个数字体验在遗址博物馆中应用的其他案例。
1
隋唐洛阳城应天门遗址博物馆
第一个是隋唐洛阳城应天门遗址博物馆。隋唐洛阳城应天门遗址博物馆在几年的时间里,从一片废墟蜕变为网红景点,2023年游客量达到358万,在洛阳所有景点中名列前茅。我们在遗址核心区域用3D影像再现隋唐都城风貌,还打造了全球首创的国风音乐机器人科技舞台剧,让击鼓、弹箜篌、吹笛子的机器人同台演出,创造未来科技与传统文化深度融合的独特体验,同时结合建筑开展投影秀,讲述洛阳的历史文化积淀。
2
熊家冢国家遗址公园遗址博物馆
第二个是熊家冢国家遗址公园遗址博物馆。熊家冢国家遗址公园遗址博物馆是一座传统遗址博物馆,我们用半透明的钢丝网雕塑搭配遗址现场,既不给遗址带来视觉干扰,又增添故事性和观赏性。在一片完整的车马坑遗址上空,我们布置了大型纱幕透明影像,和遗址现场结合仿佛让遗址活了起来,生动呈现古代军事体系和宏大的车马军阵场面。
3
瑞州府衙
第三个是瑞州府衙。瑞州府衙作为古建重建项目,我们挖掘中国传统官德思想的核心理念,在中轴三大殿打造了三个数字体验项目,分别以“家国千年”展现为官之道的核心价值、“瑞州千年”展现地方历史的变迁和当代发展,“府衙千年”展现遗址的千年沧桑及重建过程。
4
景德镇御窑遗址博物馆
第四个是景德镇御窑遗址博物馆。景德镇御窑遗址博物馆是我们践行遗址活化的重要典范。我们联合御窑博物馆、源流运动团队共同打造的“青花秘境”系列,将遗址、博物馆与周边历史社区及老民窑有机融合,构建出一个深厚的文化场域。在这一项目中,精细的展陈与新媒体、公共艺术、音乐舞蹈及线上小程序等多重媒介深度融合,创造出类似“艺术总汇”的沉浸体验。这场名为“青花秘境——御窑遗址元宇宙沉浸式探索之旅”的实践,通过整体性的场域规划与多元叙事,有效激活了御窑遗址的当代价值。
以上就是我关于遗址类博物馆展示要点和创新实践的全部分享,谢谢大家!
中国古迹遗址保护协会数字遗产专委会 | 秘书处
ICOMOS-CHINA Scientific Committee of Cultural Heritage Conservation by Digitalization | Secretariat
李浚 杜寇 习熠飞
邮箱:lijun@thid.cn;dukou@thid.cn;xiyifei@thid.cn
电话:15010082521 18074104213

