
在于2019.05.24开馆的武义新文化地标——武义博物馆新馆的展陈设计中,我们借助3D打印、数字建模等高科技手段设计并制作了7个艺术品场景模型,(武义博物馆艺术品设计案例丨场景模型),本文重点介绍元代建筑延福寺的制作过程。

延福寺为重檐歇山顶建筑,下檐系明天顺年间修理时添加。元代遗存部分面宽,进深各为三间,平面呈方形,沿袭了唐宋小殿方形平面的形制。屋面使用圆椽而非飞椽,歇山缝梁架不施斗拱。构架设置和制作手法均为江南木构遗存中最早的实例。檐柱间不施普柏枋而用重楣,沿袭了宋构保国寺的手法,为元代遗物中所罕见,而弓形劄牵则为明清建筑中弓形单步梁的先声。檐柱3间作升起和侧脚,上檐柱皆作梭形,其曲线柔和,比例俊秀,是元代建筑中极为少见的梭柱实例。(资料)

现场照片


梁架结构资料
在查阅资料、深入地研究延福寺大殿的结构后,我们运用三维数字技术,建模,并请教相关专家学者,对模型进行了多次地考证与校验,为保证其准确性,团队利用公司优势条件,3D打印了延福寺模型。

3D打印完美落成

3D打印细化处理局部大图

延福寺大殿剖面图、正立面图

工厂斗栱加工半成品

上檐、下檐斗栱制作完成

阑额、乳栿和柱子开榫卯搭接

下檐斗拱、乳栿和椽子搭接

上檐斗拱、乳栿与枋的搭接

上檐斗拱、三椽栿、劄牵与柱子搭接

额、柱、栿、枋、槫开榫卯相互咬合搭接

转角起翘、举折与收山做法表现

柱、梁、栿、枋、椽、槫、脊与瓦等封顶成果



编辑:Nanna
资料整理:李真
不忘初心
根植传统文化
善用3D技术
致力文化遗产的留存与传承
业务洽谈:
「展陈空间设计」小陈先生:15167121233
「展览策划」叶女士:15968805046
「媒体视觉艺术」韩先生:15088602543
「艺术品场景模型」大陈先生:13516876885
「效果图设计制作」潘先生:15868809011
●你被良渚博物院的黑科技刷屏了吗?
●「良渚古城」宫殿建筑
创立于2006年,秉承“根植传统文化,擅用3D技术”的原则,为满足遗产数字化的多元需求,与专业的文化遗产研究机构、文博文创行业紧密合作,采用国际领先的系统与设备、影视特效等数字处理技术,提供数字采集、存储、展示,以及其它传播应用等服务。
公司官网:http://yeren.cn/
投稿、建议、商务合作:
E-mail: yeren3d@163.com、510328601@qq.com
Tel:0571-8848 5181






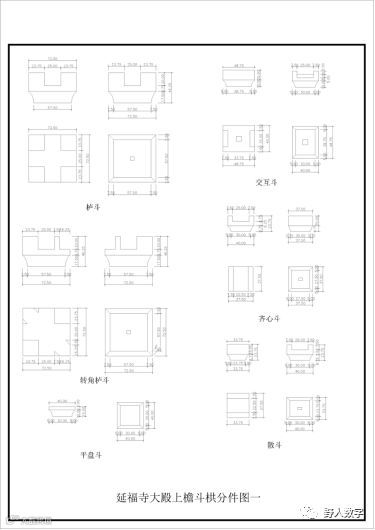
大殿上檐斗拱分件图

大殿窗扇