
点击上方“BIM酷族”支持我们,坚持行动,让想法变成现实!质疑很难消失,唯有努力!
每日一族 I 导读
接触的项目中有这样的一组幕墙,具有如下特点:
1、转角后立面为倾斜面;


2、幕墙龙骨组合成菱形,菱形明框区域由四块不同形状玻璃面板组成。

3、玻璃面板为超白夹胶采釉钢化玻璃,彩釉图案如上所示为渐变色。
4、龙骨布置相对复杂

在Revit使用常规方法恐难以解决。在项目中创建幕墙,通过调整幕墙网格的U、V网格实现幕墙的分割,直接添加竖挺比较简单,那么这种方法建立的竖挺轮廓只能是单闭合环轮廓,向本项目中的多闭合环轮廓,在项目样板中使用竖挺轮廓中很难实现。例如下图:


其中竖挺跟图纸样式是不符的(图纸中竖挺的内部结构体现不出来),那么我们就可以用族来解决绘制多闭合单元竖挺。
每日一族 I 一种公制体量幕墙
族样板:概念体量—公制体量
族类别:建筑—体量

族:体量族三维视图
体量族中竖挺,其实由装饰扣盖、扣座及玻璃面板组成,这些均由自适应常规模型创建。为载入项目进行工程量统计的需要,均设置相关参数。
1、装饰扣盖



2、扣座

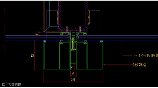
3、 TP8+1.52SGP+TP8钢化夹胶彩釉超白玻璃,其中玻璃又分为四边形及三角形两种自适应族。

以上构件组合后,局部三维视图

为展示彩釉填充图案的需要,对玻璃材质进行了设置;

在体量族中整体效果如下图所示:

每日一族 I 族参数
由于本族各构件均为嵌套族共享,就本族而言出系统给定的族参数外没有自行设定的相关族参数。
每日一族 I 族测试
载入项目,通过统计常规模型相关参数,并得到本项目相关材料用量。

喜欢我们就关注,转发,获得本族!公众号留言“夹胶玻璃“获得本自适应族。
识别二维码,关注我们
点一下你会更好看耶


