
点击上方“BIM酷族”支持我们,坚持行动,让想法变成现实!质疑很难消失,唯有努力!
每日一族 I 导读
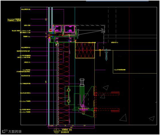
此族为某项目幕墙层间构造幕墙单元版块的立柱系统,该单元版块包括了横梁、立柱、幕墙嵌板、衬板、层间防火岩棉等。


从节点平面来看幕墙为单元式幕墙。

幕墙在平面上布置有一定角度。
今天,小编就来分享该幕墙的层间构造项目及相关构件族
每日一族 I 一种单元式幕墙立柱系统
族样板:基于线的公制常规
族类别:建筑—常规模型

族:参照标高楼层平面视图

族:前立面视图

族:右立面视图

族:三维视图
横梁也可以采用基于线的公制常规模型来创建,这种方法创建的模型只能用于直线横梁部分,转弯处不能自动闭合。也可以采用基于公制结构框架 - 梁和支撑来创建,这种方法创建的模型族既可以用于直线横梁部分,也可以用于曲线横梁部分,并且转弯处会自动闭合。如下图 :

幕墙嵌板采用公制幕墙嵌板来创建,如下图:

每日一族 I 族参数
立柱系统组参数。组成立柱的系统的各杆件均采用拉伸创建,分别创建材质,为后期通过材质提取获得相关信息做好准备。

每日一族 I 族测试
将立柱系统族同横梁、嵌板族在项目中进行组装,形成单块嵌板的幕墙项目。成组后,成为一片单元式幕墙版块。
通过材质提取获得立柱系统组成构件的名称及长度。


喜欢我们就请关注,并转发。
识别二维码,关注我们


