
关注BIM酷族,呈现更多精彩!

坚持行动,让想法变成现实!质疑很难消失,唯有努力!
每日一族 I 导读
装饰保温一体板具有防水防开裂、防火、耐久性强的特点,有效的解决了传统外墙保温系统渗漏、脱落的质量问题,有力的保障了工程质量及工程安全。装饰效果极佳,避免了设计的不合理产生的系统性功能问题,同时大大提高了施工生产效率,就单项分项工程而言,缩短近40%的工期。近年来,深受市场青睐。
在服务的项目中就广泛的采用了石材保温一体板。其面板为10mm花岗岩石材,底板25mm厚岩棉保温板。岩棉保温板表观密度120kg/m³,导热系数为0.048(m ²·K),燃烧等级B1级

图1:某项目外立面大样图
本项目要求进行施工图深化,并提石材保温一体板面板材料计划,以供采购订货。考虑到工程实际,我们对本项目创建了BIM模型,通过Revit明细表统计功能提取幕墙嵌板明细。

图2:Revit模型局部大样
首先采用建筑墙创建幕墙,并依据设计图纸完成幕墙网格设置。然后依据安装节点大样分别创建幕墙嵌板,如下图所示。
图3:本项目所使用的幕墙嵌板构件族共11个

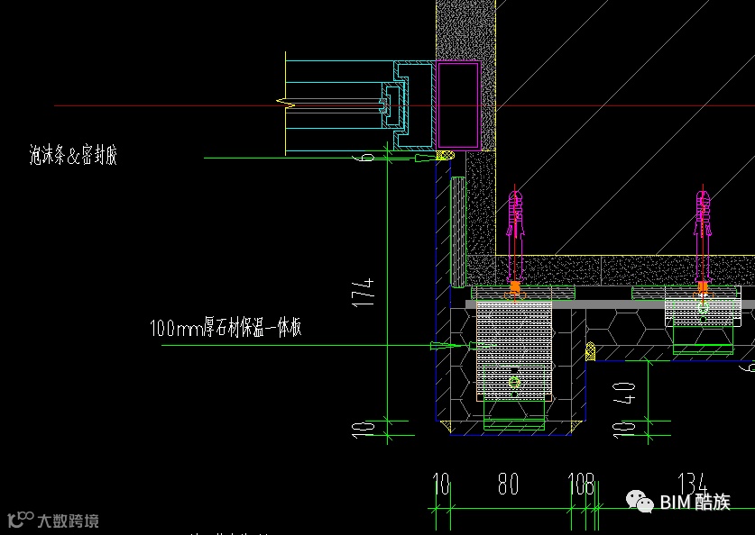
今天我们分享一款窗侧套口线条的嵌板族(上图下排右二),其安装节点如下图所示:套口线条较平面突出50mm,另一侧收口至铝合金窗框。

图4:窗口装饰套线安装节点
上图设计中阳角未作海棠角处理,考虑到装饰效果。在构件族中采用的海棠角,如何会增加材料造价。依据甲方批复的意见执行。
每日一族 I 一种用作窗口装饰套线的幕墙嵌板
采用公制幕墙嵌板族样板文件创建的构件,可以自适应填充幕墙网格,形成幕墙。常规幕墙嵌板均为矩形平面嵌板。但实际工程中,设计师根据建筑外立面效果的需要,常设计出异形及不规则形状的嵌板。如本项目中所设计的窗套装饰线条。
创建拉伸形体分别为线条外立面石材,两侧石材及保温板。 由于幕墙嵌板给定的参照平面与幕墙网格线对应。因此,基于设计安装节点大样,拉伸形体轮廓控制参照平面及族样板中的参照平面(下图红色所示)如下图所示。如此可以确保嵌板在填充网格位置的准确。左侧设定套口收口至窗框的尺寸参数,以满足不同类型洞口收口的需求。
在创建拉伸形体时,注意石材拼接阳角处作5mm海棠角处理。

图5:族参照标高楼层平面视图

图6:族三维视图
在参数设定时,除尺寸标注之外。根据工程工程量统计的需要,需增加面积参数。我们知道嵌板自动适应网格,并读取嵌板宽度、高度以及面积,如下图所示。
但是我们发现,Revit中该构件实例参数给出宽度和高度为网格实际尺寸,经测试如果幕墙加入内部竖挺和横挺后,嵌板宽度和高度会自动依据挺的尺寸缩尺。实例参数中的面积为该构件投影面积,即:宽度*高度=0.22*0.8889=0.196㎡。

图7:项目中幕墙嵌板相关参数
该面积并不是实际的工程量,因此需要增加两侧石材展开面积。因此我们需要在参数中增加“两侧展开面积”的计算参数。

图7:增加共享参数两侧展开面积
这里有个比较尴尬的问题,参数嵌板高度需要在嵌板载入项目后,根据网格实际尺寸,再次输入。如下图需要在嵌板高度中,输入高度的值:1200

图8:给实例参数嵌板高度赋值
然后Revit自动计算出展开面积的工程量。

图9:工程量计算
通过明细表导出该嵌板的工程量,如下图所示。该嵌板是由两个面积组成,明细表只能单独统计出来,再通过计算值将面积合并。

图10:工程量计算

图11:在项目中给嵌板示例参数赋值
通过Revit明细表功能统计嵌板规格及工程量。例如本示例项目中仅有4条窗套口线条,明细表及模型表现如下图所示。


图11:示例项目明细表及模型表现

