
点击上方“BIM酷族”支持我们,坚持行动,让想法变成现实!质疑很难消失,唯有努力!
每日一族 I 导读
济南市住建局自2020年6月22日发布《关于推行BIM版商品住宅使用说明书的通知》以来,陆续收到地产商拟竣工项目的房屋使用说明书的制作任务。在户型BIM模型的创建过程中,应充分熟悉建筑、结构及水电暖通施工图及过程变更资料,以准确的表达项目设计信息。
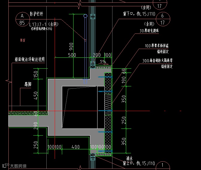
现拿某项目为例。在建筑设计图纸墙身大样(局部)如下图所示:

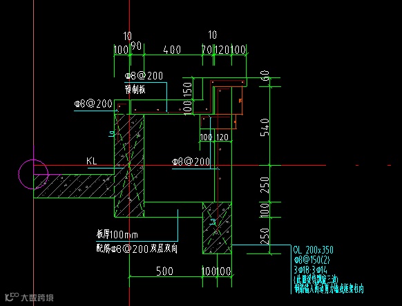
而在结构施工图中,更加明确了结构施工的详细构造,通过图中可以看出该户型飘窗窗台板采用了预制板。

鉴于其他户型飘窗窗台板构件较多,且尺寸变化多,特创建该构件族。
每日一族 I 一种预制板梁
考虑到构件使用实际,采用公制结构框架-梁和支撑
step1 依据框架梁的特性创建窗台板平板部分,将该板视为边梁,梁高等同窗台板厚度。

step2 通过放样命令创建上返梁及窗台板部分。


如此该板梁便创建完成。

step3 载入项目通过结构—梁便可根据实际情况进行该预制构件的放置。


房屋使用说明书对户型模型的创建提出了明确的规范要求及构件信息加载内容,因此在模型制作过程中,应准确的表达房屋构造及构件信息,以便顺利通过平台审核,并为小业主使用,通过平台获取所购房屋信息,方便装修、使用及维修。


识别二维码,关注我们


