[摘要]父亲节就要到了,作为曾经孩子的我们也已经长大了。或许常回家看看是给老爹最好的礼物,不过你要是送上这些“小玩意”,老爹们也一定会非常喜欢。
随身万能工具扣 展示啥都能修的男人魅力
每个孩子的第一偶像不是超级英雄就是他们的爸爸。几乎每一位老爹在有了孩子以后都会从零到有的学会无数技能,什么换尿布、做饭、修理一切东西、自制很多种类的玩具,总之动手能力MAX,然后顺理成章的成为孩子的偶像。不过,在孩子们外出求学和上班之后,父亲们基本上都“落寞”了,一身技能无处施展。

这时,送给父亲这套便携的万能工具扣WOKit 2.0,没准可以帮助父亲重拾以前的魅力。

各种尺寸的扳手、内梅花螺丝、钳子、开罐器、切刀、打火石等等,只有你想不到,没有它做不到的事情。WOKit 2.0采用了模块化的设计,提供了超过30种的替换工具和刀具,主体采用了挂钩的设计,可以轻易的固定在背包或钥匙链上,与钱包、钥匙一样成为你日常的一部分。

特别是锁扣扳手设计,可以非常容易的拆卸或关闭,并且各种组件、螺丝替换都能够轻易的安装卸载,使用起来非常顺手。
出去浪 记得带上烧烤架

送上这款烧烤架,顺便鼓励老爹多带妈妈出去走走,老爹一定会喜欢这个名叫Smart BBQ的烧烤架。采用了非常便携的轻量化设计,质量很好,高耐火材料制作能轻易的折叠起来,可以像野营椅一样背在身后,这样就算在开始烤肉之前选个好地,也不会费力就能带走。

Smart BBQ的收纳也非常容易,就像打开一样简单,任何人都可以在数十秒之内将Smart BBQ重新恢复到背包状态。烧烤完毕后冷却的速度也要比普通的材料更快,因此不会不小心烫伤。

怎么样,有了Smart BBQ,让你的老爹带着老妈或者组织朋友出门聚餐BBQ,是不是很美?
送这个“神秘”大礼 让父母玩遍中国
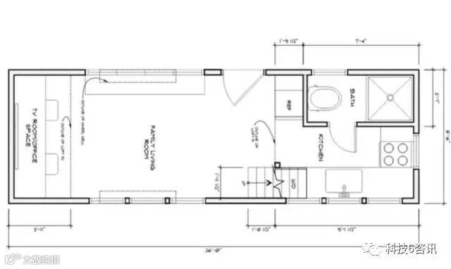
这不是黑科技,是一份大礼,请酌情考虑。一款由美国俄勒冈州设计公司Covo Tiny House Company打造了一套Covo Mio小屋外观看,它就是一套移动房屋Covo Mio底部为超8米长的双轴拖车,平面布局灰常紧凑。

设有带沙发的办公室/客厅2.1米长早餐吧可以用于日常办公连接厨房配有不锈钢炉灶和烤箱,同时还有个小浴室,是卫生间、亦是淋浴,小屋面积仅有30平米。

小木屋有两种配置,入门级版本有冰箱、炉灶和洗衣机等基本设备高端配置有更多设备。
智能门锁、蓝牙音响系统、LED恒温器、50英寸电视、桌子等都说是智能移动房屋智能手机控制的照明、智能门锁这里的家具全都可由智能手机控制。也包括其他的智能设备,比如AmazonEcho,还搭载智能助手 Alexa,通过简单的语音指令,可以完成很多日常琐事。

小屋采用阁楼设计二楼可用做储藏室,还有一间双人床卧室,外墙以窗户居多,能为小屋提供充足的自然光线以及电力。

让老爹开着房车,带着夫人出去玩,什么都不让他们操心,这也许是父亲节最棒的礼物了。
不要让身体限制出去逛逛的心
父亲年岁大了,腿脚不好了。你可以送上这个礼物——电动轮椅....让老爹就算一个人也能满世界去逛逛。当然,老爹腿脚好的时候别瞎送了……

这款电动轮椅名叫Scewo,通过硬质橡胶材质的履带来实现移动和上下楼梯等目的。此外,它能够为使用者提供一个更好的视角,在下楼梯的时候看到脚下的情况,不至于出现意外。

Scewo使用起来非常敏捷,就像开车一样,甚至在狭小的空间也能自由移动。同时,Scewo还可以帮助我们消除生活中的任何障碍,丝毫不费力的乘坐交通工具,无论是公交车还是火车。上楼梯、进入餐厅,在Scewo面前这些都不是障碍。

关于平衡控制的一个最大挑战就是如何通过一个操纵杆完成,而这也是这款轮椅最独特的地方,所有的操作都只需要上肢驱动就能完成。
送礼物真的是各种各种,什么都有,这些装备同样也能让老爹玩的很开心。但是我相信最好的礼物一定是常回家看看。
我们正走在创新、创造的路上,中国制造即将走向中国创造!
科学技术是第一生产力,希望未来中国能出现更多的智能制造,更多的“创新和超越”。
如有希望校企合作,技术升级改造 新品研发、申报高企,点击“阅读原文”即可填写提交科技需求表格!
一实科技要打造国内领先的“产学研互联网平台,激发科研院所的专家教授,与企业无缝对接,线上:供需发布,自由交流,精准匹配,线下:全程保姆式专业化服务,让研发成本更低,效率更高,实现科研价值,让科研人员尽享全球尊严!


