本视频为本文案例配套视频,详情请阅览全文。
前言
BIM提供了全新三维状态下可视化的设计方法、各个专业协同设计的数据共享平台、设计阶段进行方案优化的基础、项目参与各方的协同工作等,设计阶段的BIM应用无论设计从业者,还是拟运用BIM为设计从业人员提供技术咨询的BIMer都耳熟能详,理论上大大提高了设计效率。但是,从实际BIM应用来看,专业和BIM之间总是存在一定的壁垒。BIM和设计专业之间的融合,总是存在的一种不和谐。
本着实际需求,及实事求是的态度,我们同某污水处理专项工程设计院完成了一次合作。现将部分成果分享给大家。(部分涉及技术保密,不能完全分享,见谅!)
本项目设计院的需求很简单:
根据业主要求提供三维设计模型,以便检查验收污水处理工艺的合理性。
设计院在设计过程中及时发现,复杂工艺管道之间的碰撞,以便及时调整工艺管线走向。
为满足后期三维设计的要求,创建部分配套设备的族文件。
而作为配合服务的我们所需要做的就是建族、工艺模型组装、污水处理厂专业模型整合、碰撞检查、设备明细统计核查、设计效果及轻量化展示。从专业角度角,工艺是否合理、设备选型等,我们没有发言权,也只能服从专业设计人员的“指挥”,其指令一定是基于模型及报告,结合专业,所做的判断和决策。我们想,能做到这一点,目前阶段已经足够了。
一、Revit族创建
如果是普通的机电专业,不管好不好用,在BIM界已经有大量存在的族,但作为专业分项工程,有其特殊的设备、装置及仪表等,因此,需要单独创建族。
其中,暂且不提需要这些族能够复核验算污水处理是否满足技术要求,单单从设备就位、安装、调试、工作、维修空间复核;设备基础设计、预留预埋、预留管道等方面已经发挥了价值。以下是为此,单独创建的设备族。




当然,还有其他大量的族,比如:潜水搅拌机、收水槽、三相分离器、加药罐、加药装置、污泥自动处理机、曝气装置、生物填料及支架系统、液位计、PH计等,不再一一展示。
若专业设计人员有相关的工艺验算的技术,为族添加相关参数,我们相信族可以满足其层次的BIM应用要求。
二、污水处理厂建筑、结构及非工艺机电工程专业模型创建
任何装置都离不开单体建筑或构筑物,以上专业建模也是最基础的工作,根据后期应用不同,建模的精度和要求也不尽要求。作为本项目,完成LOD300的模型创建,已经可以满足工艺碰撞检查及空间检查的要求,但在非工艺机电工程的模型创建上,我们还是做的更加精细,就是考虑避免工艺管道与传统机电工程的碰撞,甚至一个阀门、开关等都准确的表达。至于单体工程的工程量、结构验算及配筋等似乎并不是客户的关切。

三、工艺系统模型创建
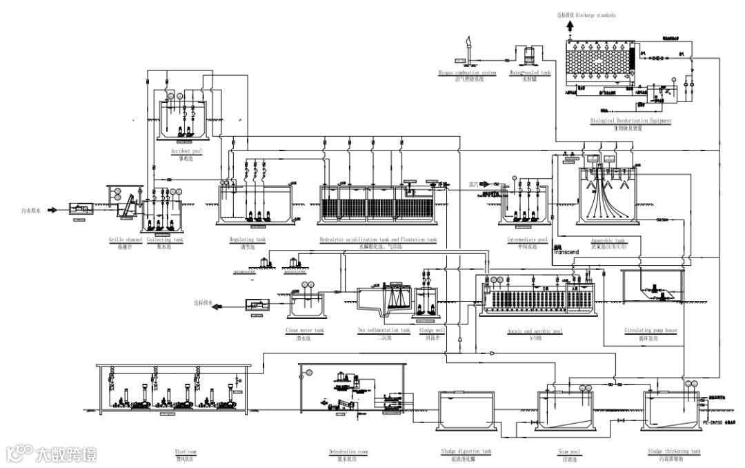
涉及到工艺管道,正如前言所讲,我们完全服从“指挥”,尊重专业设计意图。该工艺对我们而言是非常复杂。


正如BIM的可视特性发挥的作用,方案是调整过几稿的,论证过几次的,最终的工艺管道模型如下图所示。(根据用户要求有删减)
各专业模型创建完成,进行本项目的模型整合。

四、碰撞检查、工艺修改及综合优化
我们只列举一小部分内容,用以说明应用价值。




在这个设计中,污水处理更关注自身的专业。为建筑和结构提资资料不够详实,或者建筑结构专业不能理解提资技术要求,导致本工程的专业之间协调沟通了多次。最终成果,在建设单位的组织下,各专业通过BIM模型进行了系统的检查复核,最终确定了整个工程的施工图设计。设想,如果没有以上的沟通,导致的后期变更、返工,将给建设单位带来什么?
五、系统设备清单复核
专业的设备都是技术参数要求极高的,相对而言也是比较贵重的,也是建设单位、专业设计单位、施工承包单位非常关注的。清晰的设备明细、安装位置、技术参数等对后期设备进场验收、安装、调试、维保、资产管理都显得尤为重要。也是,各方正确诚信履行合同的保证。


六、效果及轻量化展示
实际运用BIM的过程中,展示是很多客户乐此不疲或不屑一顾的BIM应用。此处我们也不想就此展开评论,只阐述我们所做的。
展示无非就是这么几种:静态的平面效果图、基于一个点的720°全景或全息投影、基于固定路线的漫游、完全沉浸式虚拟现实(VR、AR、MR)、通过一定后期技术(AE、PR)处理的三维动画等。效果图(含渲染模型截图)就不多说了,BIM的出现一定程度上冲击着传统效果图市场。
无论哪种展示,就是让用户更方便直观的即时显示设计内容及调整后的设计变化。无论客户用什么样的硬件设备,PC或移动端。




总结与展望
BIM的价值已经勿用质疑。如何服务专业,为专业赋能增值才是正确的探索研究方向。从基础的应用做起,勿妄自菲薄,勿急功近利,勿夸夸其谈,踏踏实实做好那么几个应用,做静做透做系统,就足够了。在此基础上,再去拓展深入研究应用价值,此乃正途。
识别二维码,关注我们


