本视频为本文案例配套视频,详情请阅览全文。
前言
幕墙是由面板和支承结构体系组成的,可相对主体结构有一定位移能力或自身有一定变形能力、不承担主体结构所作用的建筑外围护结构或装饰性结构,是现代大型和高层建筑常用的带有装饰效果的轻质墙体。
通常,幕墙会根据镶嵌板分为:玻璃幕墙、金属板幕墙、非金属板幕墙,根嵌板类型及安装方式还可在进行详细分类。如下图所示:

其中,底色填充为绿色的为幕墙工程中常用的嵌板面材和安装方式。
本次给大家分享的案例工程,是某商业综合体工程,其建筑外立面幕墙形式多样,造型较为复杂,几乎囊括了所有类型的幕墙,且玻璃幕墙面板多采用彩釉中空玻璃,对幕墙外观粉色设计提出了更高的要求。



以下为本项目主入口处两种不同模型展示。

建筑外观的展示,多采用将Sketchup导入Lumion制作效果图、漫游及全景图的方法,进行建筑外观效果论证。


以下是本幕墙工程漫游视频
2、幕墙精细化模型创建及幕墙深化施工图审查
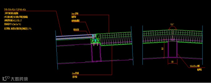
►本工程方案设计时圆弧采光顶,顶部采用收口节点不合理;后采用铝单板收口方案。



►局部建筑立面采用异形蜂窝铝板,横向分割腰线设计进深不够,导致蜂窝铝板异形凹进部分收口不严。出现较大漏缝。

►局部幕墙与结构衔接不当。

以及其他表达矛盾、不详之处,均在建模过程中予以核查统计。
3、幕墙精细化模型创建及招标清单审核
Revit族具有很强的灵活性,可参变,在族参数编辑时将确定的招标清单计算规则通过族参数公式编辑的方式内置到族文件中,通过明细表可以及时统计出相关工程的工程量。

上图为某造型铝单板单元构件族文件

上图为铝板包柱工程量复核。

通过族嵌入的材料分析公式,统计分析时每块铝板构件的材料用量

其他幕墙构件采用同样的方法进行构件族的创建,以满足模型算量的精细化要求。为此,我们形成了一定的构件族库,确保在其他工程中可以复用。

其中部分族已经在我们公众号中做了分享,可随时进行查阅学习。详情见本公众号Revit族中《每日一族》和《月度小结》专栏。我们还专门写了一篇推文介绍《案例分享 | 幕墙工程Revit模型在工程计量中的应用研究》
在实际算量过程中,对于异形的幕墙面,还会碰到采用Dynamo进行体量的应用。像下图所示的幕墙嵌板,非规则平面,计算表面积有一定的难度。



通过Dynamo选择图元,提取图元表面积,然后汇总分析,读入Excel表格中。得到该部位幕墙面积。


总结及展望
其他应用可随着工程的实际进展去发掘模型的应用价值。比如施工工艺模拟,专项施工方案论证,材料采购计划及工程系统管理等。只有精细化的模型和丰富的构件信息表达,才能去深入发掘BIM模型的应用价值。
识别二维码,关注我们


