项目概况:

该项目为机器人智能制造及食品加工项目,位于东莞市麻涌镇新沙工业园,总占地约32亩,总投资额近3亿,预计2020年底完成整体项目投资。项目将使用最前沿的智能技术,满足各种不同类型餐饮业态中智能设备及餐饮门店的食材供给需求。项目计划依托麻涌区位优势和丰富的农田资源,建设以“农业生产基地+机器人智能制造+食材供应链”经营模式,未来将作为东莞市重大项目推进,助力东莞市和麻涌镇智能制造业的发展,带动食品加工产业整体升级。
项目是由1#食品加工厂;2#综合楼;3#预留厂房;4#消防;生活水池及泵房;5#污水处理厂及锅炉房等单体工程组成。

项目实用BIM实施计划重点内容及区域
一、 1#厂房一层产线区域需要BIM管综设计
①首层下部排水管道点位众多,点位排水要求高,产线排水对排水工艺要求高,CAD平面及系统图没办法直观的看出排水管道的走向及要求;
②首层天花管道众多,其中包含消防专业:喷淋水管、消火栓、消防排烟、加压送风、消防动力桥架、空调专业:空调风机盘管、风柜机组、空调冷冻给水、回水、冷凝水、空调动力桥架、空调新风风管、空调风管、空调排风管、厨房排油烟管、厨房新风补风管、电气专业:天花照明、电气动力桥架、动力线槽、给排水专业:产线生产给水、产线生产排水、2 3 4层产线排水、 其余专业:锅炉蒸汽管道,纯净水管道、空气压缩气体管道、冰水系统管道、燃气管道、弱电线槽、天花吊顶、净化风柜;

二、1#与4#5#楼中间区域需要BIM管综设计:
①此处为室外通道区域,所有市政管道均汇集于此埋设于地下,受麻涌地质影响,后期可能出现地质沉降等地质问题,且设计图纸中各专业未标明管道标高,4#5#楼为半地下室建筑,对地面埋设深度存在较高的埋设风险,本次BIM管综设计需考虑麻涌地质沉降问题;
②1#与4#5#楼中间区域地下管道众多,其中包含给排水专业:市政进水,生产给水,生活给水,一号楼生产废水排水,一号楼污水排水,雨水排水,纯净水给水,冰水给水,电气专业:污水池动力直埋电缆,锅炉动力直埋电缆,消防动力电缆,生活水动力电缆,4#楼备用动力电缆,五号楼备用动力电缆,高压10kv进线电缆沟,高压出二号楼动力电缆,发电机房出线电缆,暖通专业:中央空调给水,消防专业:消防栓给水,喷淋给水,室外消火栓,弱电智能化专业:四五号楼弱电进线,污水专业:污水给水,污水进水,污水弱电,锅炉专业:锅炉蒸汽管道,锅炉排烟管道,锅炉动力桥架,锅炉事故通风,锅炉弱电进线;

三、1#与3#预留车间及2#综合楼间市政管线繁杂,穿插多。

项目实用BIM实施
本着务实实用、协同作业的原则对本项目BIM实施进行策划。
一、模型创建:
1#厂房:本项目建筑为4层,建筑高度24.7M,其中二层级以上为预留,因此本次实施仅对一层全专业模型进行详细创建。模型创建主要内容如下:
1、1#建筑包括建筑墙体,尤其洁净区及冷库区域墙体;门窗,关注消防救援窗位置;吊顶,根据生产区、冷库储藏区、公共走道确定的吊顶标高;楼地面预留排水沟、集水井、建筑地面做法等;
2、1#建筑,包括桩基承台、结构梁板柱、预留孔洞等。
3、1#机电系统全专业,按所提供的设备型号及施工图设计进行模型绘制,并包括末端及点位等;
2#综合楼:本单体工程6层,建筑高度23.7M。本项目仅对承台及基础进行详细创建,地上部分采用体量进行示意表达。
3#综合楼:预留厂房,暂不创建,采用场地预留;
4#消防、生活水池及泵房以及5#污水处理、锅炉房,仅对建筑、结构外轮廓表达,内部机电系统不创建。
市政管线:根据施工图设计进行准确的模型创建,包括系统路线、标高、位置及系统采用管线规格、附件做法及规格。
二、尽管项目体量小,但考虑到专业齐全、系统繁多等实际特点,以及项目BIM应用确切的要求,采用工作集方式实施专业间协同。确保了各专业的协同设计及成果的及时整合。

三、采用平台进行及时的沟通及协调
由于项目复杂,新型生产方式对产线布置、工艺设计处于多方案论证阶段,方案多次修改调整。为确保设计变更信息及时传递。本项目采用龙的协同平台进行远程协同。及时在线平台视频会议进行变更交底及BIM成果交底。

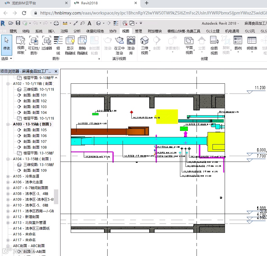
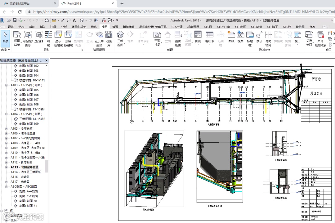
同时,通过龙的BIM云平台及时上传BIM应用成果,方便项目参建单位无需专业软件及高配置计算机设备,即可以在线即可打开模型,进行相关信息查询,并返回现场实际情况。大大方便了现场各专业单位及施工班组应用模型辅助施工。

如下图所示,在线即可查阅由管线综合后的模型生成的现场施工。这样可以有效应用软件的原生功能,有效的避免了轻量化模型带来的不可更改、信息丢失等问题。


项目实用BIM效果
本项目BIM应用简单务实,收到了良好的效果及业主好评。
1、采用龙的BIM云平台大大降低了BIM应用门槛,让业主的投入发挥了重大效益,避免降低了各专业间的协同能力。
2、及时发现问题。在实际工程中有些设想的方案是理想的,但是鉴于现场实际,根本无法实现,只能通过BIM模型的反复模拟论证与推演,以说服建设单位采用折中方案。
3、如此密集的工艺管线之间,碰撞是无法避免的,通过全方位的管线排布,提出最优的布置方案,既满足生产工艺的要求,又满足管道安装的可操作性与相对便捷。
4、优良的资源配置及工具选择,对项目的BIM实施具有重要的指导意义。不仅仅要选择具有专业技术能力的BIM服务团队,同时也要配置好的做的BIM实施平台。例如,本项目采用龙的BIM平台,无疑对建设单位的BIM实施,起到非常关键的作用。
5、通过本项目为后期同类厂房建设提出层高优化建议。通过优化生产工艺组织及设备选型,可有效降低层高,避免建设投资浪费。
识别二维码,关注我们


